NEU - ++Provisionsfrei++ Graz/Lend, sanierte 2 Zimmer mit Balkon & extra Küche möbliert

Wohnung zum Kauf in 8020 Graz - Kaufpreis: 199.900 € / Objektnummer: O2100167510
Ausstattung: Bad Möbliert Garage Parkplatz Abstellraum Zentralheizung Loggia WG geeignet
20260129_090246500_iOS
20260129_090025327_iOS
20260129_090029789_iOS
20260129_090033927_iOS
20260129_090038466_iOS
20260129_090043772_iOS
20260129_090048625_iOS
20260129_090055624_iOS
20260129_090104542_iOS
20260129_090112382_iOS
20260129_090117547_iOS
Zimmer 1
20260129_090122590_iOS
20260129_090132404_iOS
20260129_090134302_iOS
Zimmer 1
Zimmer 1
Zimmer 1
20260129_090240586_iOS
20260129_090252326_iOS
20260129_090257109_iOS
20260129_090301911_iOS
20260129_090307240_iOS
20260129_090318022_iOS
20260129_090401165_iOS
20260129_090406956_iOS
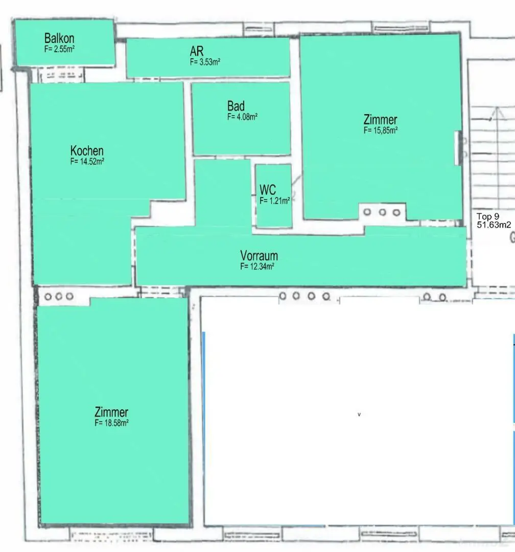
Grundriss Top 9

Preisinformationen

Kaufpreis:
199.900 €
Preisinfos:
Verhandlungsbasis
Provision:
provisionsfrei EUR inkl. 20% MwSt.

Fakten

Objektnummer:
O2100167510
Objekttyp:
Wohnung
Loggia:
1
Wohnfläche:
72,86 m²
Gesamtfläche:
72,86 m²
Zimmer:
2
Badezimmer:
1
Toilette:
1
Stockwerk:
3
Baujahr:
1964
Letzte Sanierung:
2025
Zustand:
Gepflegt
Verfügbarkeit:
Verfügbar

Beschreibung

Zum Verkauf steht eine Wohnung im 3. OG ohne Lift mit 2 extra Zimmern und Loggia. 

Wohnungsgröße von ca. 72,86 m2 mit Vorraum, extra WC, Bad mit Wanne, Küche möbliert (extra Raum) mit Zugang zur Loggia und Abstellraum, 2 großzügige extra Zimmer. 

Kaufpreis Wohnung inkl. Küche & Keller 204.900 € Verhandlungsbasis
++Provisionsfrei++ 

Nähere Unterlagen zur Wohnung erhalten Sie gerne auf schriftliche Anfrage.

Anfragen werden ausschließlich per Mail oder WhatsApp angenommen. Für einen Besichtigungstermin oder Fragen stehe Ich, Patrick Großschädl, BSc, Ihnen unter Whatsapp Whatsapp gerne zur Verfügung.

Unsere Auswahl an Anzeigen ist momentan sehr umfangreich und es ist uns nicht möglich, alle Angebote auf den verschiedenen Online-Plattformen zu präsentieren. Deshalb laden wir Sie herzlich ein, unsere Homepage www.papst-immo.at zu besuchen, um einen Überblick über unser gesamtes Angebot zu erhalten.
Beschreibung weiterlesen

Lage und Verkehrsanbindung

Willkommen in der pulsierenden Umgebung dieser Eigentumswohnung in Graz! Die ideale Lage bietet eine ausgezeichnete Anbindung an öffentliche Verkehrsmittel, die es Ihnen ermöglichen, die Innenstadt in kürzester Zeit zu erreichen. Genießen Sie die Leichtigkeit des urbanen Lebens mit einer Vielzahl von Bus- und Straßenbahnlinien in unmittelbarer Nähe, die es Ihnen ermöglichen, die Stadt bequem zu erkunden. Erleben Sie die Vorzüge des Stadtlebens und profitieren Sie von einer exzellenten Infrastruktur, die Ihnen alle Annehmlichkeiten des täglichen Bedarfs bietet.

Energieeffizienz

Endenergiebedarf:
95 kWh/(m²*a)
HWB:
95 kWh/(m²*a)
HWB Klasse:
C
Energieausweisart:
Energiebedarfs-ausweis

Grundriss

Patrick Großschädl

Patrick Großschädl

Papst Immobilien GmbH

Lade...

Fotomix

20260129_090246500_iOS 20260129_090025327_iOS 20260129_090029789_iOS 20260129_090033927_iOS 20260129_090038466_iOS 20260129_090043772_iOS 20260129_090048625_iOS 20260129_090055624_iOS 20260129_090104542_iOS 20260129_090112382_iOS 20260129_090117547_iOS Zimmer 1 20260129_090122590_iOS 20260129_090132404_iOS 20260129_090134302_iOS Zimmer 1 Zimmer 1 Zimmer 1 20260129_090240586_iOS 20260129_090252326_iOS 20260129_090257109_iOS 20260129_090301911_iOS 20260129_090307240_iOS 20260129_090318022_iOS 20260129_090401165_iOS 20260129_090406956_iOS