NEU - +Provisionsfrei+ Jakomini/Steyrergasse - Frisch saniert mit Blick auf Schlossberg - Ideal für Eigennutzer oder Anleger

Investment zum Kauf in 8010 Graz - Kaufpreis: 129.900 € / Objektnummer: O2200156699
Ausstattung: Boden Wohnküche / offene Küche Bad Fernwärme
IMG_0337
IMG_0336
IMG_0335
IMG_0340
IMG_0339
IMG_0338
IMG_0341
IMG_0342
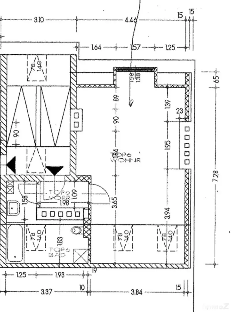
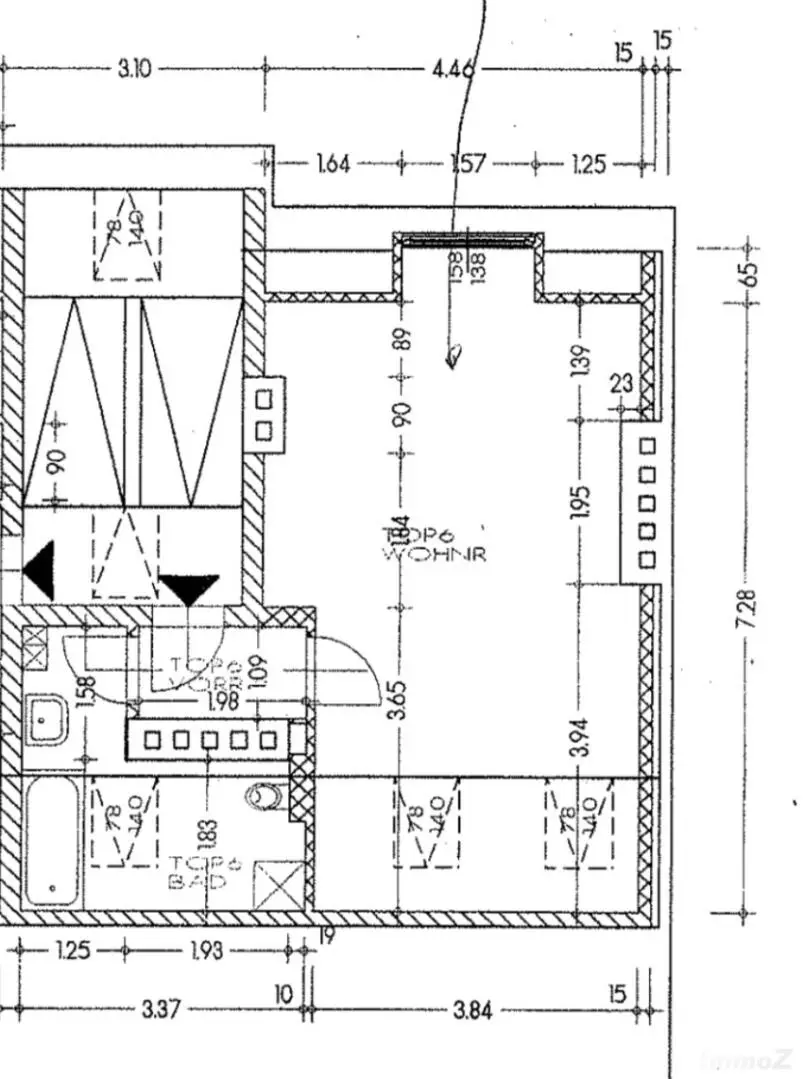
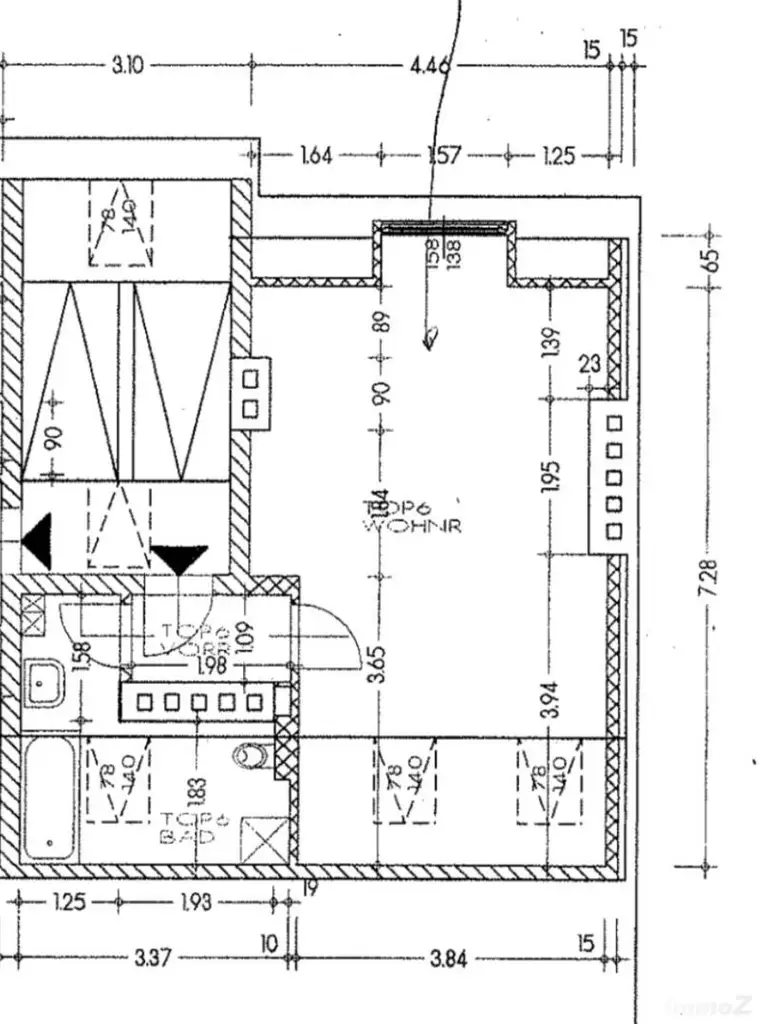
Grundriss Top 13

Preisinformationen

Kaufpreis:
129.900 €
Preisinfos:
Verhandlungsbasis
Provision:
provisionsfrei EUR inkl. 20% MwSt.

Fakten

Objektnummer:
O2200156699
Objekttyp:
Investment
Wohnfläche:
40,72 m²
Gesamtfläche:
40,72 m²
Zimmer:
1
Badezimmer:
1
Stockwerk:
4
Baujahr:
1905
Altbau:
Ja
Letzte Sanierung:
2025
Zustand:
Modernisiert
Verfügbarkeit:
Verfügbar

Beschreibung

Bezirk Jakomini, ideale Wohnung zur Eigennutzung oder als Anlage, frisch saniert!

Aufteilung: Vorraum, Bad mit WC, Wohn-Ess-Küche.

Kaufpreis: 129.900 .-
Verfügbar ab sofort
KEINE PROVISION

Gerne übermitteln wir Ihnen nähere Informationen, Grundriss sowie einen Videorundgang auf schriftliche Anfrage.

Anfragen werden ausschließlich per Mail oder WhatsApp angenommen. Für einen Besichtigungstermin oder Fragen stehe Ich, Patrick Großschädl, BSc, Ihnen unter Whatsapp Whatsapp gerne zur Verfügung.

Unsere Auswahl an Anzeigen ist momentan sehr umfangreich und es ist uns nicht möglich, alle Angebote auf den verschiedenen Online-Plattformen zu präsentieren. Deshalb laden wir Sie herzlich ein, unsere Homepage www.papst-immo.at zu besuchen, um einen Überblick über unser gesamtes Angebot zu erhalten.
Beschreibung weiterlesen

Energieeffizienz

Endenergiebedarf:
115,2 kWh/(m²*a)
HWB:
115,2 kWh/(m²*a)
HWB Klasse:
D
fGEE:
1,67
fGEE Klasse:
C
Energieausweisart:
Energiebedarfs-ausweis

Grundriss

Patrick Großschädl

Patrick Großschädl

Papst Immobilien GmbH

Anrufen
Lade...

Fotomix

IMG_0337 IMG_0336 IMG_0335 IMG_0340 IMG_0339 IMG_0338 IMG_0341 IMG_0342