NEU - Provisionsfrei: Klimatisiertes Dachgeschoss Maisonette Apartment mit 2 Balkonen in Bestlage von Grinzing!

Wohnung zur Miete in 1190 Wien - Gesamtmiete: 3.127,42 € / Objektnummer: 4124
Ausstattung: Barrierefrei Fahrstuhl Bad Klimaanlage Fahrradraum Fußbodenheizung Balkon

Preisinformationen

Gesamtmiete:
3.127,42 € / Monat
Betriebskosten netto:
405,31 € / Monat
Umsatzsteuer:
284,31 €
Kaution:
3 Bruttomonatsmieten
Provision:
Gemäß Erstauftraggeberprinzip bezahlt der Abgeber die Provision.

Fakten

Objektnummer:
4124
Objekttyp:
Wohnung
Balkon:
2
Balkonfläche:
11,41 m²
Keller Fläche:
3,16 m²
Wohnfläche:
121,89 m²
Nutzfläche:
121,89 m²
Zimmer:
3,5
Badezimmer:
2
Toilette:
2
Verfügbarkeit:
Verfügbar

Beschreibung

Zur Vermietung gelangt eine wunderschöne Dachgeschoss - Maisonette - Wohnung mit 2 Balkonen. Das großzügige sowie bestens ausgestattete Apartment befindet sich in einem modernen Luxus-Apartmenthaus in Grinzinger Grünruhelage nahe der beliebten Bellevuewiese sowie dem Cobenzl!

Wohnen auf höchstem Niveau in einer der prestigeträchtigsten Lagen von Wien Döbling!

Die auf den Fotos teilweise abgebildeten Möbel und Gegenstände sind nicht inkludiert.

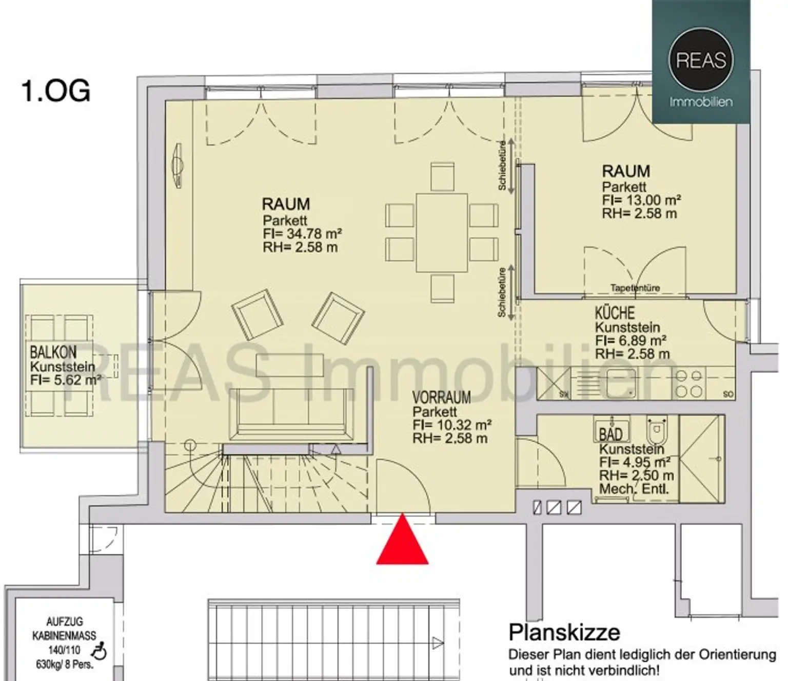
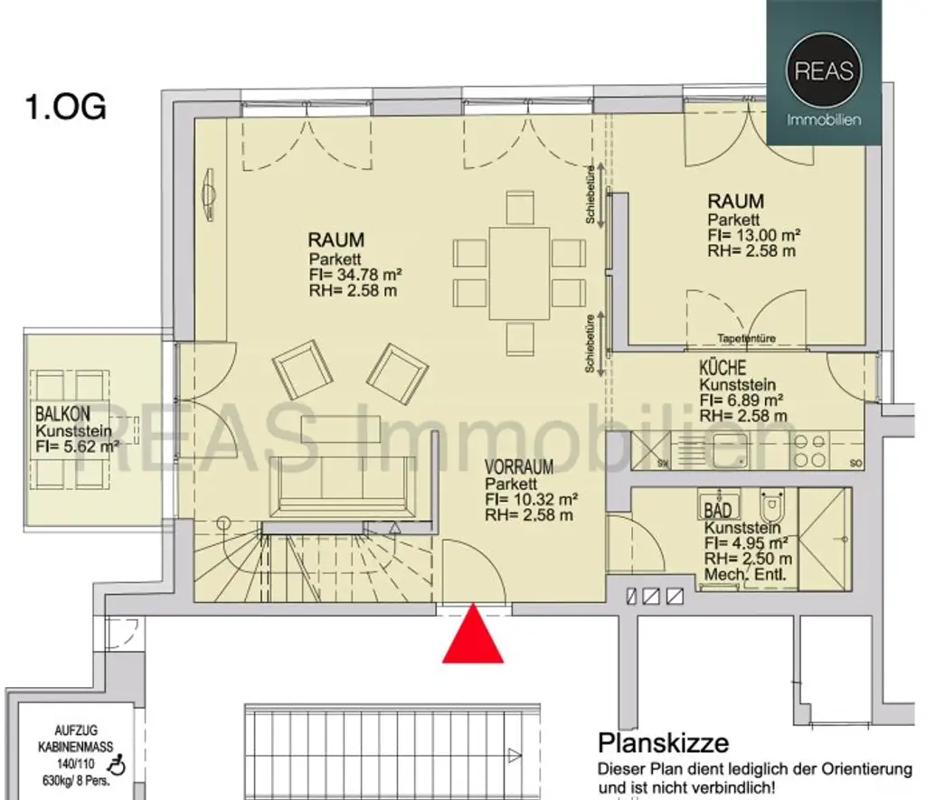
Das gegenständliche Maisonette Apartment verfügt über 2 Ebenen und weist die folgende Raumaufteilung auf:

Untere Ebene:

* 1 Entrée mit reichlich Platz für eine Garderobe
* 1 Duschbad mit WC, Waschbecken mit Spiegelschrank und Unterschrank, Dusche mit Glaswand und einem Handtuchheizkörpoer
* 1 Küche mit vollausgestatteter Luxus - Einbauküche inkl. aller Geräte und Granit-Arbeitsplatte sowie einem großen Fenster (Franz. Balkon)
* 1 Zimmer als Schlaf-, Gäste-, oder Esszimmer mit großem Fenster (Franz. Balkon) sowie großer Tapetentüre zur Küche. 
* 1 Großes Wohnzimmer
* 1 Balkon/Terrasse Süd-Westseitig

Obere Ebene:

* 1 Großes Zimmer als Wohn- oder Schlafzimmer mit beeindruckender Raumhöhe und Architektur
* 1 Badezimmer mit WC, Badewanne, Doppelwaschbecken samt Unterschrank, Spiegelschrank, Handtuchheizkörper, Waschmaschinenanschluss sowie einem Dachflächenfenster mit Blick in die Weinberge
* 1 Zimmer als Gäste-, Kinder,- oder Schrankzimmer
* 1 Balkon/Terrasse Süd-Westseitig
 
* 1 Einlagerungsraum im Keller (mit Lift erreichbar)
* 1 Fahrrad- und Kinderwagenabstellraum im Keller (mit Lift erreichbar)

Zur äußerst hochwertigen Ausstattung gehören unter anderem:

* Gegensprechanlage mit Bildschirm und Außenkamera
* Klimatisierung
* Sicherheits-Wohnungseingangstüre
* Maßgefertigte Holz-Alu-Fenster (3-fach Sonnenschutz und Wärmeschutzglas IPASOL-neutral, g-Wert 0,27 bis 0,33)
* Dachfenster sowie Beschattungen (elektrisch)
* Hochwertige Einbauküche mit allen Geräten (Kühlschrank/Tiefkühl, Backrohr, Herdplatte, Geschirrspülmaschine, Dunstabzug)
* Maßgefertigte Badezimmermöbel mit versenkbaren Spiegelkästen, Waschtischen mit Stauraum, diverse hochwertige Sanitärausstattungen
* Anschluss für Waschmaschine
* Maßgefertigte Holz-Innentüren mit erhöhtem Schallschutz
* Hochwertige Parkett- und Steinböden
* Glasspitzwand und Türe bei der Dusche
* Fußbodenheizung
* Energiesparende und umweltfreundliche Erdwärmeheizung!
* Sicherheitstüre
* 2 Süd-Westbalkone/Terrassen
* Uvm.

Nahversorgung:
Sämtliche Geschäfte des täglichen Bedarfs in der näheren Umgebung. Ein Billa sowie ein Spar Gourmet befinden sich ca. 3min. entfernt. Diverse Gastronomien in der näheren Umgebung.

Öffentliche Verkehrsmittel:
In wenigen Gehminuten erreicht man die Straßenbahnlinie 38, sowie die Buslinie 38A.

Individualverkehr:
Die wichtigsten Verkehrsachsen Wiens sind mit dem PKW schnell erreichbar. Der Wiener Gürtel ist über die Grinzinger Allee sowie die Billrothstraße gut erschlossen. Die Donauufer-Autobahn und die A22 erreicht man ebenfalls in wenigen Minuten. Das Stadtzentrum ist in ca. 15 Fahrminuten über die Lände entlang des Donaukanals erreichbar.

Miete exkl. Strom, Heizung sowie Warmwasser. Heizung mittels Erdwärmepumpe.

Betriebskosten Heizung derzeit: Brutto € 162,12 / Monat
Betriebskosten Warmwasser derzeit: Brutto € 92,64 / Monat

Befristete Vermietung: Dauer noch zu besprechen. Langfristige Mieter erwünscht.

Gerne stehen wir für Rückfragen oder Besichtigungen zur Verfügung!

Wir ersuchen Sie, bereits in Ihrer Anfrage Ihre vollständigen Kontaktdaten (Adresse, Mail, Telefon) anzugeben, damit wir Ihre Anfrage rascher bearbeiten können. Aufgrund der Nachweispflicht gegenüber dem Abgeber sind wir verpflichtet, vor Bekanntgabe der Adresse diese Daten aufzunehmen und ersuchen um Ihr Verständnis.

Der guten Ordnung halber halten wir fest, dass, sofern im Angebot nicht anders vermerkt, bei erfolgreichem Vertragsabschluss eine Provision anfällt, die den in der Immobilienmaklerverordnung BGBI. 262 und 297/1996 festgelegten Provisionssätzen entspricht. Diese Provisionspflicht besteht auch dann, wenn Sie die Ihnen überlassenen Informationen an Dritte weitergeben.

Einzelne Bilder oder Visualisierungen in den Vermarktungsunterlagen, Exposés oder Inseraten wurden unter Umständen digital, teilweise auch mithilfe von künstlicher Intelligenz (KI), bearbeitet und dienen ausschließlich der Veranschaulichung. Sie können vom tatsächlichen Zustand, der Ausstattung oder Ausführung der Immobilien abweichen. Verbindlich sind ausschließlich die Angaben im Kauf-/Mietangebot sowie bei Besichtigung vor Ort.

Sämtliche Ihnen hiermit übermittelte Angaben wurden uns, seitens des Abgebers bekannt gegeben. Eine Garantie auf Richtigkeit und Vollständigkeit können wir nicht übernehmen.

 

Noch nichts gefunden? Wir informieren Sie über geeignete Immobilienangebote noch vor allen anderen.
Legen Sie jetzt Ihren individuellen Suchagenten unter folgendem Link an. Wir schicken Ihnen passende Immobilien exklusiv vorab zu.
Suchagent anlegen [https://reas-realitaeten-asmus.service.immo/registrieren/de] - https://reas-realitaeten-asmus.service.immo/registrieren/de

Hinweis gemäß Energieausweisvorlagegesetz: Ein Energieausweis wurde vom Eigentümer bzw. Verkäufer, nach unserer Aufklärung über die generell geltende Vorlagepflicht, sowie Aufforderung zu seiner Erstellung noch nicht vorgelegt. Daher gilt zumindest eine dem Alter und der Art des Gebäudes entsprechende Gesamtenergieeffizienz als vereinbart. Wir übernehmen keinerlei Gewähr oder Haftung für die tatsächliche Energieeffizienz der angebotenen Immobilie.

Wir weisen darauf hin, dass zwischen dem Vermittler und dem zu vermittelnden Dritten ein familiäres oder wirtschaftliches Naheverhältnis besteht.

Der Immobilienmakler erklärt, dass er – entgegen dem in der Immobilienwirtschaft üblichen Geschäftsgebrauch des Doppelmaklers – einseitig nur für den Vermieter tätig ist.

Infrastruktur / Entfernungen

Gesundheit
Arzt <1.000m
Apotheke <1.500m
Klinik <2.500m
Krankenhaus <2.500m

Kinder & Schulen
Schule <1.000m
Kindergarten <1.000m
Universität <2.500m
Höhere Schule <2.500m

Nahversorgung
Supermarkt <1.500m
Bäckerei <1.500m
Einkaufszentrum <3.500m

Sonstige
Geldautomat <2.000m
Bank <1.500m
Post <1.500m
Polizei <2.000m

Verkehr
Bus <1.000m
U-Bahn <3.500m
Straßenbahn <1.500m
Bahnhof <2.500m
Autobahnanschluss <3.500m

Angaben Entfernung Luftlinie / Quelle: OpenStreetMap
Beschreibung weiterlesen

Lage und Verkehrsanbindung

Grinzing, Bellevuewiese, Cobenzl

Grinzing

Grundrisse

Lageplan

1190 Wien | Wien 19., Döbling

Lade...
REAS Immobilien

REAS Immobilien

REAS Realitäten Asmus GmbH

Lade...

Fotomix

Bild 1 Bild 2 Bild 3 Bild 4 Bild 5 Bild 6 Bild 7 Bild 8 Bild 9 Bild 10 Bild 11 Bild 12 Bild 13 Bild 14 Bild 15 Bild 16 Bild 17 Bild 18 Bild 19 Bild 20 Bild 21 Bild 22 Bild 23 Bild 24 Bild 25 Bild 26 Bild 27 Bild 28 Bild 29 Bild 30 Bild 31 Bild 32