NEU - PROVISIONSFREI Neu sanierte Altbau-Eigentumswohnung - 60 m² Wohnfläche

Wohnung zum Kauf in 1050 Wien - Kaufpreis: 379.000 € / Objektnummer: 10753
Ausstattung: Boden Fahrstuhl Bad Gäste-WC Kabel/Satelliten-TV Fahrradraum Abstellraum Fußbodenheizung WG geeignet

Preisinformationen

Kaufpreis:
379.000 €
Kaufpreis/m²
6.316,67 €

Fakten

Objektnummer:
10753
Objekttyp:
Wohnung
Keller Fläche:
3 m²
Wohnfläche:
60 m²
Nutzfläche:
60 m²
Gesamtfläche:
60 m²
Zimmer:
5
Badezimmer:
1
Toilette:
1
Stockwerk:
1
Baujahr:
1900
Altbau:
Ja
Letzte Sanierung:
2025
Zustand:
Vollsaniert
Verfügbarkeit:
Verfügbar

Beschreibung

PROVISIONSFREI

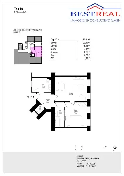
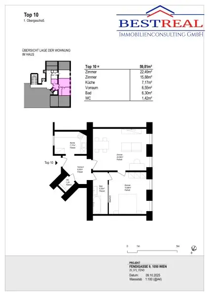
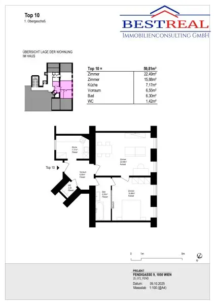
In der Fendigasse, 1050 Wien, steht eine neu sanierte Altbau-Eigentumswohnung zum Verkauf. 

Die Wohnung befindet sich im 1. Lift-Stock.

Die Wohnfläche beträgt ca. 60 m² Wohnfläche und hat eine Raumhöhe von ca. 3.2 m.

Die Wohnung wurde im Sommer generalsaniert und umgebaut. 

* 1 Badezimmer mit Badewanne + Dusche, Waschtisch mit Spiegelschrank
* 1 Wc-Raum mit Entlüftung + Kippfenster zum Lichthof
*  1 Vorraum
*  Zimmer 1 mit 3 Fenster zur Kohlgasse
*  Zimmer 2 mit 3 Fenster zur Kohlgasse
* 1 Küchenraum mit Fenster zum Hausgang, alle Anschlüße vorhanden

Heizung: neue moderne Fußbodenheizung, Vaillant E-Block Stromheizung, 2 Warmwasserspeicher. Versorgung mit Warmwasser und Heizung erfolgt ohne Gastherme, ohne Heizkörper, keine Thermen-Wartung notwendig.

Folgendes wurde erneuert:

* Parkettböden,
* Sicherheitsschlösser,
* Gegensprechanlagen,
* E-Kästen,
* Boden und Wand-Fliesen,
* alle Leitungen,
* PC- und TV-Anschlüsse,
* schalldichte Mehrschichtfenster,
* neue Eingangstüre mit Sicherheitsschloß 
* Türen und Beschläge
* Armaturen
* alle Wände / Räume neu ausgemalt,
* Decken-Beleuchtungen, 
* neues Kellerabteil
* hohe Räume

6 Fenster sind zur Kohlgasse, 1 Gangfenster.

Das LIFT-Haus ist hofseitig begrünt, mit einer Fahrradabstellfläche im Hof und im Stiegenhaus.

Lage:
nahe bei Fendigasse - Kreuzung Reinprechtsdorferstraße.
Geplante U2 -Station Reinprechtsdorferstraße.
Autobuslinien 12A und 14 A zur U4 Pilgramggasse

Für weitere Fragen steht Ihnen Herr Huemer unter 0664/230 52 42 oder office@bestreal.at gerne zur Verfügung.

Infrastruktur / Entfernungen

Gesundheit
Arzt 500m
Apotheke 500m
Klinik 1.000m
Krankenhaus 1.000m

Kinder & Schulen
Schule 500m
Kindergarten 500m
Universität 1.000m
Höhere Schule 1.000m

Nahversorgung
Supermarkt 500m
Bäckerei 500m
Einkaufszentrum 1.500m

Sonstige
Geldautomat 500m
Bank 500m
Post 500m
Polizei 1.000m

Verkehr
Bus 500m
U-Bahn 500m
Straßenbahn 500m
Bahnhof 500m
Autobahnanschluss 3.500m

Angaben Entfernung Luftlinie / Quelle: OpenStreetMap
Beschreibung weiterlesen

Lage und Verkehrsanbindung

1050 Wien Fendigasse, verkehrsberuhigte Einbahnstrasse

Reinprechtsdorfer Straße

Energieeffizienz

HWB:
96,85 kWh/(m²*a)
HWB Klasse:
C
Energieausweisart:
Energiebedarfs-ausweis

Grundriss

Lageplan

1050 Wien | Wien 5., Margareten

Lade...
Stephan Huemer

Stephan Huemer
GGF

BESTREAL® Immobilienconsulting GmbH

Anrufen
Lade...

Fotomix

Bild 1 Bild 2 Bild 3 Bild 4 Bild 5 Bild 6 Bild 7 Bild 8 Bild 9 Bild 10 Bild 11 Bild 12 Bild 13