NEU - Provisionsfrei Neubauwohnungen beim Freizeitparadies "alte Donau" 2-3 Zimmer; Freiflächen; Garagenstellplätze

Wohnung zum Kauf in 1220 Wien - Kaufpreis: 310.000 € / Objektnummer: 1939/163715
Ausstattung: Fahrstuhl Rollladen Fahrradraum Abstellraum Fußbodenheizung Balkon
20251028_130535
20251028_130520
20251028_130504
20251028_130552
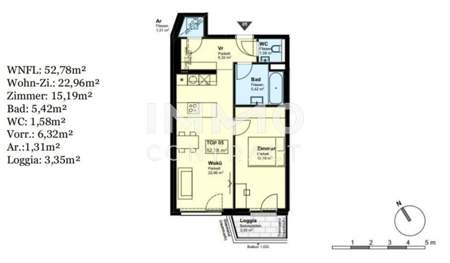
Top 5
Front Tag 2
20250510_140416
20250510_135529

Preisinformationen

Kaufpreis:
310.000 €
Kaufpreis/m²
5.652,81 €
Provision:
Provision bezahlt der Abgeber.

Fakten

Objektnummer:
1939/163715
Objekttyp:
Wohnung
Balkon:
1
Balkonfläche:
4,11 m²
Wohnfläche:
52,78 m²
Zimmer:
2
Baujahr:
2024
Zustand:
Erstbezug
Verfügbarkeit:
Verfügbar

Beschreibung

Wohnen beim Freizeitparadies „Alte Donau“
Nur 170 Meter von der alten Donau entfernt, entsteht ein neues Wohnbauprojekt auf Baurechtsgrund.
Mit einer Vielzahl an verschiedenen Grundrissen und Wohnungsgrößen ist für jeden Bedarf das passende Angebot dabei.
Die Fertigstellung erfolgt im Frühjahr 2025.
Das Projekt umfasst insgesamt 19 Wohneinheiten mit 2 bis 3 Zimmer, aufgeteilt auf 4 Ebenen, wovon jede einzelne über ausreichend Freiflächen verfügt. (Garten, Terrasse, Balkon oder Loggia)
Die Wohnungsgrößen belaufen sich auf 36m² bis 81m².
Ausstattung:
3- fach verglaste Kunststoff- Alufenster
Elektr. bedienbare Raffstores
Parkettböden in den Wohnräumen
Keramischer Fliesenboden (30x60cm) in Badezimmer und WC
Handtuchwärmer
Luftwärmepumpe inkl. Kühlfunktion durch Photovoltaik unterstützt
Fußbodenheizung

Ein Tiefgaragenplatz im Haus kann zusätzlich erworben werden. Kostenpunkt: 25.000.-
E- Lademöglichkeit vorbereitet
Jeder Wohnung ist ein Kellerabteil zugeordnet

Der Baurechtsvertrag mit dem Stift Klosterneuburg ist auf 99 Jahre abgeschlossen und läuft bis zum Jahr 2120.
Der monatliche Baurechtszins beläuft sich auf ca. 1,40.-/m² Nutzfläche.

Infrastruktur / Entfernungen

Gesundheit
Arzt <500m
Apotheke <500m
Klinik <2.500m
Krankenhaus <3.500m

Kinder & Schulen
Schule <500m
Kindergarten <1.000m
Universität <2.000m
Höhere Schule <1.500m

Nahversorgung
Supermarkt <500m
Bäckerei <500m
Einkaufszentrum <500m

Sonstige
Geldautomat <500m
Bank <500m
Post <500m
Polizei <1.000m

Verkehr
Bus <500m
U-Bahn <500m
Straßenbahn <500m
Bahnhof <500m
Autobahnanschluss <2.000m

Angaben Entfernung Luftlinie / Quelle: OpenStreetMap
Beschreibung weiterlesen

Lage und Verkehrsanbindung

Lage:
Das Projekt befindet sich nur 3 Gehminuten von der alten Donau entfernt.
Hier finden Sie ein umfangreiches Angebot an Freizeitaktivitäten sowie eine Vielzahl an kulinarischen Angeboten direkt am Wasser.
Öffentliche Verkehrsanbindung:
Linie U1 Station Donauzentrum, fußläufig in 10 Minuten erreichbar
Straßenbahnlinie 25
Buslinie 93 A

Energieeffizienz

HWB:
27,3 kWh/(m²*a)
HWB Klasse:
B
fGEE:
0,68
fGEE Klasse:
A+
Energieausweisart:
Energiebedarfs-ausweis
Gültig bis:
27.02.2032

Lageplan

1220 Wien | Wien 22., Donaustadt

Lade...
Martin Steininger

Martin Steininger
Immobilienfachberater

IMMOcontract Immobilien Vermittlung GmbH

Lade...

Fotomix

20251028_130535 20251028_130520 20251028_130504 20251028_130552 Top 5 Front Tag 2 20250510_140416 20250510_135529