NEU - Provisionsfrei: Schöne 72m² DG-Wohnung + 7m² Terrasse mit Einbauküche und Lift – 1140 Wien

Wohnung zur Miete in 1140 Wien - Gesamtmiete: 1.098,19 € / Objektnummer: 7811
Ausstattung: Barrierefrei Boden Fahrstuhl Bad Kabel/Satelliten-TV Garage Parkplatz Abstellraum Zentralheizung Terrasse WG geeignet

Preisinformationen

Gesamtmiete:
1.098,19 € / Monat
Betriebskosten netto:
157,83 € / Monat
Umsatzsteuer:
99,74 €
Kaution:
4.500,00 €
Provision:
Gemäß Erstauftraggeberprinzip bezahlt der Abgeber die Provision.

Fakten

Objektnummer:
7811
Objekttyp:
Wohnung
Terrasse:
1
Keller Fläche:
2 m²
Wohnfläche:
72 m²
Zimmer:
3
Badezimmer:
1
Toilette:
1
Stockwerk:
5
Baujahr:
2010
Neubau:
Ja
Zustand:
Neuwertig
Verfügbarkeit:
Verfügbar

Beschreibung

Moderne 72m² Dachwohnung mit 3 Zimmern, Einbauküche und Terrasse!

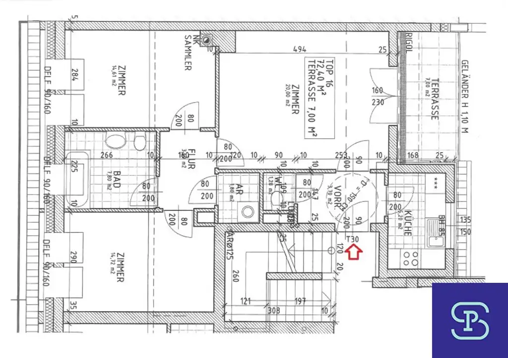
Diese schöne Wohnung mit tollem Fernblick befindet sich im Dachgeschoß (5. Liftstock) eines modernen Neubaus in der Moßbachergasse, nur wenige Schritte von der Hütteldorfer Straße entfernt. Die sonnige Wohnung ist ost- und westseitig ausgerichtet und besteht aus 3 Zimmern, Küche, Vorraum, Badezimmer, Flur, Abstellraum und WC und sowie 7m² Terrasse,.

Ausstattung: Einbauküche mit Geräten, Echtholz-Parkettböden, Hauszentralheizung, Badezimmer mit Badewanne, Waschmaschinenanschluss, Fenster mit Mehrfachverglasung und Beschattung, Lift, Sprechanlage, Kabel-TV u. Internet-Vorbereitung, Kellerabteil, Waschküche, große Gemeinschaftsdachterrasse zur Mitbenutzung,.

Optional kann im Haus ein Garagenplatz angemietet werden!

Schöne Wohnlage in einer wenig befahrenen Seitengasse mit guter Infrastruktur und öffentlicher Verkehrsanbindung durch die Straßenbahnlinie 49 und Autobus 47A mit Anbindung zur U3 und U4. 

Die Wohnung wird ab 1.6.2026 in befristeter Hauptmiete (5 Jahre+) vermietet.
Gesamtmiete inkl. Bk, Lift und 10% USt. € 1.098,20
(HMZ € 815,- + Bk € 157,83 + Lift € 24,62 + 10% USt. € 92,13 + Manip. € 1,-)
Kaution € 4.500,-

Kontakt: Anfragen bitte nur per Email-Anfragefunktion! Keine telefonische Terminvergabe!

Besuchen Sie für unsere weiteren Angebote bitte auch unsere Homepage: www.sitarz.at [http://www.sitarz.at] 

_Wichtige Information: Es handelt sich hier um ein unverbindliches und für Wohnungssuchende völlig kostenfreies Angebot! Wir bedanken uns für Ihre Anfrage, weisen jedoch darauf hin, dass durch Ihre Anfrage kein Anspruch auf eine Dienstleistung durch unser Unternehmen besteht. Wir ersuchen ausdrücklich um Verständnis, dass wir aufgrund überbordender Anfragen für Mietwohnungen nur dann antworten können, wenn für das angefragte Mietobjekt noch freie Besichtigungstermine verfügbar sind. Erhalten Sie keine Antwort, stehen für das angefragte Mietobjekt keine Besichtigungsmöglichkeiten mehr zur Verfügung, oder es liegen bereits ausreichend viele verbindliche Bewerbungen vor.  _

_Optional zur kostenlosen Variante, haben Wohnungssuchende gemäß aktuell geltender Gesetzesbestimmung (Bestellerprinzip) auch die Möglichkeit, ein Maklerunternehmen kostenpflichtig (2MM zuzügl. 20% Ust.) mit der Objektsuche zu beauftragen, um in Folge eine zu bezahlende, individuelle Dienstleistung zu erhalten, sofern vom Immobilienmakler ein den Suchkriterien entsprechendes Mietobjekt gefunden wird._

Wir weisen darauf hin, dass zwischen dem Vermittler und dem zu vermittelnden Dritten ein familiäres oder wirtschaftliches Naheverhältnis besteht.

Der Immobilienmakler erklärt, dass er – entgegen dem in der Immobilienwirtschaft üblichen Geschäftsgebrauch des Doppelmaklers – einseitig nur für den Vermieter tätig ist.

Infrastruktur / Entfernungen

Gesundheit
Arzt <500m
Apotheke <500m
Klinik <1.500m
Krankenhaus <500m

Kinder & Schulen
Schule <500m
Kindergarten <500m
Universität <2.000m
Höhere Schule <2.500m

Nahversorgung
Supermarkt <500m
Bäckerei <500m
Einkaufszentrum <2.500m

Sonstige
Geldautomat <500m
Bank <500m
Post <500m
Polizei <1.000m

Verkehr
Bus <500m
U-Bahn <1.000m
Straßenbahn <500m
Bahnhof <1.000m
Autobahnanschluss <5.000m

Angaben Entfernung Luftlinie / Quelle: OpenStreetMap
Beschreibung weiterlesen

Lage und Verkehrsanbindung

Moßbachergasse

Hütteldorfer Straße

Energieeffizienz

HWB:
62,7 kWh/(m²*a)
HWB Klasse:
C
fGEE:
1,11
fGEE Klasse:
C
Energieausweisart:
Energiebedarfs-ausweis
Gültig bis:
09.09.2032

Grundriss

Lageplan

1140 Wien | Wien 14., Penzing

Lade...
Anna Sitarz

Anna Sitarz

Sitarz & Partner Immobilien GmbH

Lade...

Fotomix

Terrasse Wohnzimmer Wohnzimmer Wohnzimmer Zimmer 2 Zimmer 2 Zimmer 3 Zimmer 3 Einbauküche Einbauküche Terrasse Terrasse Badezimmer Badezimmer Badezimmer Flur Flur WC Abstellraum Ausblick Gemeinschaftsterrasse Gemeinschaftsterrasse Gemeinschaftsterrasse