NEU - Provisionsfrei: Unbefristeter 47m² Altbau mit 2 Zimmern und Lift - 1100 Wien

Wohnung zur Miete in 1100 Wien - Gesamtmiete: 675,72 € / Objektnummer: 7809
Ausstattung: Boden Fahrstuhl Bad Kabel/Satelliten-TV Fahrradraum Etagenheizung

Preisinformationen

Gesamtmiete:
675,72 € / Monat
Betriebskosten netto:
123,29 € / Monat
Umsatzsteuer:
61,43 €
Kaution:
2.025,00 €
Provision:
Gemäß Erstauftraggeberprinzip bezahlt der Abgeber die Provision.

Fakten

Objektnummer:
7809
Objekttyp:
Wohnung
Keller Fläche:
2,5 m²
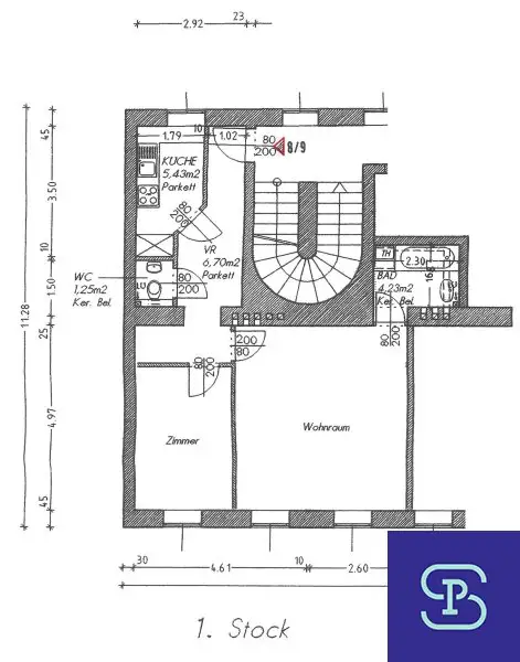
Wohnfläche:
47,42 m²
Zimmer:
2
Badezimmer:
1
Toilette:
1
Stockwerk:
1
Baujahr:
1918
Altbau:
Ja
Zustand:
Teilsaniert
Verfügbarkeit:
Verfügbar

Beschreibung

Unbefristete 47m² Hauptmiete mit 2 Zimmern und Lift!

Die angebotene Wohnung liegt im 1. Liftstock eines renovierten Altbaus im verkehrsberuhigten Teil der Quellenstraße (Nähe Absberggasse). Die helle Wohnung ist nord-ostseitig ausgerichtet und besteht aus 1 gr. Zimmer, 1 Kabinett, Vorraum, Küche (unmöbliert), Badezimmer und WC,. 

Aufgrund der Raumaufteilung nicht für WG geeignet! Bitte Plan und Fotos beachten! 

Ausstattung: Komplettrenovierung 2020 mit Gasetagenheizung, Kunststofffenster mit Mehrfachverglasung, Fliesenbad mit Wanne, Eichendekor-Dielenböden und Fliesenböden, WM-Anschluss, Kabel-TV u. Internet-Vorbereitung, Lift, Sprechanlage, Kellerabteil,.

Achtung: Die Wohnung wird ohne Einbauküche vermietet! Einmaliger Küchenzuschuss der Vermieterin € 300,-

Schöne, renovierte Wohnung in unbefristeter Hauptmiete. Zentrale Lage mit ausgezeichneter Infrastruktur durch zahlreiche Geschäfte in unmittelbarer Nähe. Sehr gute öffentliche Verkehrsanbindung durch Straßenbahnlinie 6, 11 und D sowie den Autobuslinien 68A, 68B und 14A mit Anbindung zu U1 und U3. 

Die Mietwohnung wird ab sofort in unbefristeter Hauptmiete vermietet!
Gesamtmiete inkl. Bk, Lift und 10% USt. € 675,72
(HMZ € 475,- + Bk € 123,29 + Lift € 16,- + 10% USt. € 61,43)
Kaution € 2.025,-

Kontakt: Anfragen bitte nur per Email-Anfragefunktion! Keine telefonische Terminvergabe!

Besuchen Sie für unsere weiteren Angebote bitte auch unsere Homepage: www.sitarz.at [http://www.sitarz.at] 

_Wichtige Information: Es handelt sich hier um ein unverbindliches und für Wohnungssuchende völlig kostenfreies Angebot! Wir bedanken uns für Ihre Anfrage, weisen jedoch darauf hin, dass durch Ihre Anfrage kein Anspruch auf eine Dienstleistung durch unser Unternehmen besteht. Wir ersuchen ausdrücklich um Verständnis, dass wir aufgrund überbordender Anfragen für Mietwohnungen nur dann antworten können, wenn für das angefragte Mietobjekt noch freie Besichtigungstermine verfügbar sind. Erhalten Sie keine Antwort, stehen für das angefragte Mietobjekt keine Besichtigungsmöglichkeiten mehr zur Verfügung, oder es liegen bereits ausreichend viele verbindliche Bewerbungen vor.  _

_Optional zur kostenlosen Variante, haben Wohnungssuchende gemäß aktuell geltender Gesetzesbestimmung (Bestellerprinzip) auch die Möglichkeit, ein Maklerunternehmen kostenpflichtig (2MM zuzügl. 20% Ust.) mit der Objektsuche zu beauftragen, um in Folge eine zu bezahlende, individuelle Dienstleistung zu erhalten, sofern vom Immobilienmakler ein den Suchkriterien entsprechendes Mietobjekt gefunden wird._

Der Immobilienmakler erklärt, dass er – entgegen dem in der Immobilienwirtschaft üblichen Geschäftsgebrauch des Doppelmaklers – einseitig nur für den Vermieter tätig ist.

Infrastruktur / Entfernungen

Gesundheit
Arzt <1.000m
Apotheke <500m
Klinik <1.000m
Krankenhaus <2.500m

Kinder & Schulen
Schule <500m
Kindergarten <500m
Universität <500m
Höhere Schule <2.000m

Nahversorgung
Supermarkt <500m
Bäckerei <500m
Einkaufszentrum <1.500m

Sonstige
Geldautomat <500m
Bank <500m
Post <500m
Polizei <1.500m

Verkehr
Bus <500m
U-Bahn <1.000m
Straßenbahn <500m
Bahnhof <1.000m
Autobahnanschluss <500m

Angaben Entfernung Luftlinie / Quelle: OpenStreetMap
Beschreibung weiterlesen

Lage und Verkehrsanbindung

Absberggasse

Energieeffizienz

HWB:
67,2 kWh/(m²*a)
HWB Klasse:
C
fGEE:
1,74
fGEE Klasse:
C
Energieausweisart:
Energiebedarfs-ausweis
Gültig bis:
21.11.2034

Grundriss

Lageplan

1100 Wien | Wien 10., Favoriten

Lade...
Sitarz & Partner Immobilien GmbH

Sitarz & Partner Immobilien GmbH
Office

Sitarz & Partner Immobilien GmbH

Lade...

Fotomix

Wohnzimmer Wohnzimmer Schlafzimmer Schlafzimmer Badezimmer Badezimmer Küche Küche Vorraum Vorraum Wohnzimmer