NEU - Provisionsfrei: Unbefristeter 72m² Altbau mit Lift Nähe Spittelberg - 1070 Wien

Wohnung zur Miete in 1070 Wien - Gesamtmiete: 1.435,50 € / Objektnummer: 7774
Ausstattung: Boden Wohnküche / offene Küche Bad Kabel/Satelliten-TV Fahrradraum Abstellraum Etagenheizung
Zimmer 1
Zimmer 1
Zimmer 1
Wohnküche
Wohnküche
Wohnküche
Kabinett
Kabinett
Kabinett
Badezimmer
Badezimmer
Vorraum
Vorraum
WC
Abstellraum

Preisinformationen

Gesamtmiete:
1.435,50 € / Monat
Betriebskosten netto:
136,00 € / Monat
Umsatzsteuer:
130,50 €
Kaution:
4.310,00 €
Provision:
Gemäß Erstauftraggeberprinzip bezahlt der Abgeber die Provision.

Fakten

Objektnummer:
7774
Objekttyp:
Wohnung
Keller Fläche:
2,1 m²
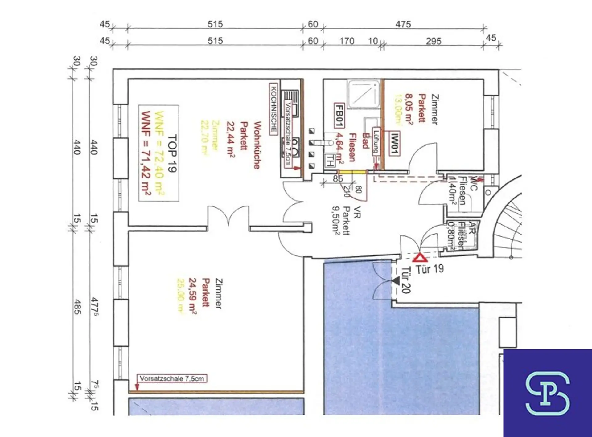
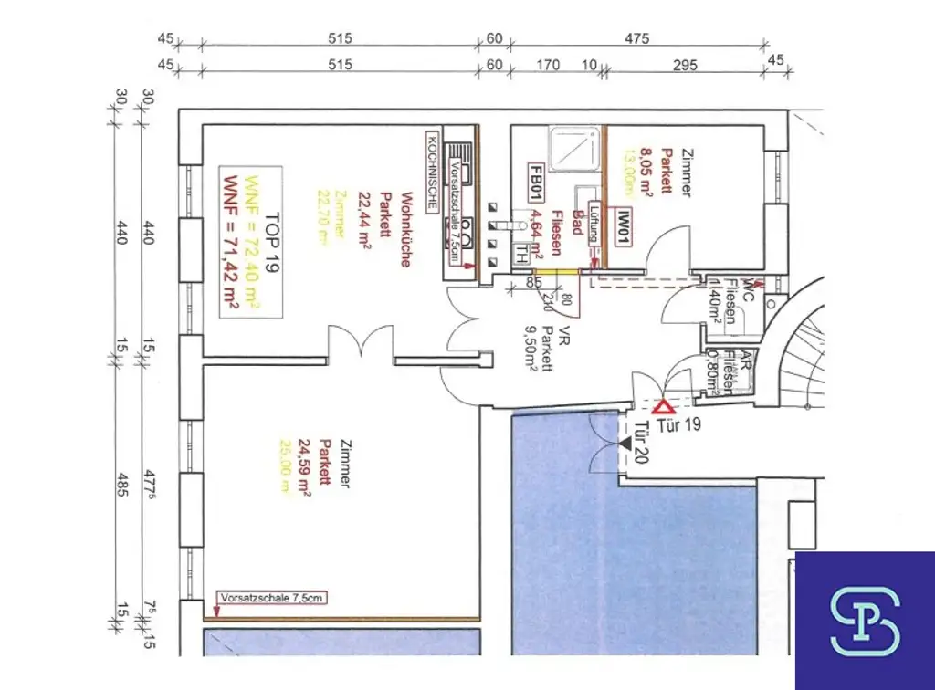
Wohnfläche:
71,58 m²
Zimmer:
3
Badezimmer:
1
Toilette:
1
Stockwerk:
3
Baujahr:
1918
Altbau:
Ja
Letzte Sanierung:
2026
Zustand:
Erstbezug
Verfügbarkeit:
Verfügbar

Beschreibung

Renovierter 72m² Altbau-Erstbezug beim Spittelberg! 

Diese soeben neu renovierte Wohnung befindet sich im 3. Liftstock eines renovierten Stilaltbaus in der Mechitaristengasse, einer kleinen Seitengasse der Neustiftgasse auf Höhe des Spittelbergs. Die Wohnung ist überwiegend südseitig ausgerichtet und besteht aus 1 Wohnküche (unmöbliert), 1 Zimmer, 1 Kabinett, zentralem Vorraum, Badezimmer, kl. Abstellraum und WC,.

Achtung: Diese Wohnung ist aufgrund der Raumaufteilung NICHT als Studenten-WG geeignet! 

Ausstattung: Erstbezug nach Renovierung mit Echtholzparkettböden, Gasetagenheizung, Fliesenbad mit verglaster Dusche und Doppelwaschbecken, Abstellraum mit WM-Anschluss, Lift, Telekabel- u. Internet-Vorbereitung, Sprechanlage, Kellerabteil,.

Diese Wohnung wird ohne Einbauküche vermietet! Einmaliger Zuschuss der Vermieterin € 300,-

Sonnige, unbefristete Wohnung mit Ausrichtung zur Neustiftgasse und zum Innenhof (Kabinett) in sehr guter, zentrumsnaher Lage in unmittelbarer Nähe zum Spittelberg, zum Volkstheater und Museumsquartier. Sehr gute Infrastruktur und mit zahlreichen Einkaufsmöglichkeiten, Lokalen und öffentlicher Verkehrsanbindung durch U2, U3, den Straßenbahnlinien 46, 49 sowie den Ringlinien 1, 2, 71, D und den Autobuslinien 13A und 48A. 

Die Wohnung wird ab sofort in unbefristeter Hauptmiete vermietet.
Gesamtmiete inkl. Bk, Lift und 10% USt. € 1.435,50
(HMZ € 1.145,- + Bk € 136,- + Lift € 24,- + 10% USt. € 130,50)
Kaution € 4.310,-

KONTAKT: Anfragen bitte nur per Email-Anfragefunktion! Keine telefonische Terminvergabe!

Besuchen Sie für unsere weiteren Angebote bitte auch unsere Homepage: www.sitarz.at [http://www.sitarz.at] 

_Wichtige Information: Es handelt sich hier um ein unverbindliches und für Wohnungssuchende völlig kostenfreies Angebot! Wir bedanken uns für Ihre Anfrage, weisen jedoch darauf hin, dass durch Ihre Anfrage kein Anspruch auf eine Dienstleistung durch unser Unternehmen besteht. Wir ersuchen ausdrücklich um Verständnis, dass wir aufgrund überbordender Anfragen für Mietwohnungen nur dann antworten können, wenn für das angefragte Mietobjekt noch freie Besichtigungstermine verfügbar sind. Erhalten Sie keine Antwort, stehen für das angefragte Mietobjekt keine Besichtigungsmöglichkeiten mehr zur Verfügung, oder es liegen bereits ausreichend viele verbindliche Bewerbungen vor.  _

_Optional zur kostenlosen Variante, haben Wohnungssuchende gemäß aktuell geltender Gesetzesbestimmung (Bestellerprinzip) auch die Möglichkeit, ein Maklerunternehmen kostenpflichtig (2MM zuzügl. 20% Ust.) mit der Objektsuche zu beauftragen, um in Folge eine zu bezahlende, individuelle Dienstleistung zu erhalten, sofern vom Immobilienmakler ein den Suchkriterien entsprechendes Mietobjekt gefunden wird._

 

Wir weisen darauf hin, dass zwischen dem Vermittler und dem zu vermittelnden Dritten ein familiäres oder wirtschaftliches Naheverhältnis besteht.

Der Immobilienmakler erklärt, dass er – entgegen dem in der Immobilienwirtschaft üblichen Geschäftsgebrauch des Doppelmaklers – einseitig nur für den Vermieter tätig ist.

Infrastruktur / Entfernungen

Gesundheit
Arzt <500m
Apotheke <500m
Klinik <1.000m
Krankenhaus <1.500m

Kinder & Schulen
Schule <500m
Kindergarten <1.000m
Universität <500m
Höhere Schule <1.000m

Nahversorgung
Supermarkt <500m
Bäckerei <500m
Einkaufszentrum <1.000m

Sonstige
Geldautomat <500m
Bank <500m
Post <500m
Polizei <500m

Verkehr
Bus <500m
U-Bahn <500m
Straßenbahn <500m
Bahnhof <500m
Autobahnanschluss <4.000m

Angaben Entfernung Luftlinie / Quelle: OpenStreetMap
Beschreibung weiterlesen

Lage und Verkehrsanbindung

Mechitaristengasse

Spittelberg

Energieeffizienz

HWB:
111,2 kWh/(m²*a)
HWB Klasse:
D
fGEE:
2,32
fGEE Klasse:
D
Energieausweisart:
Energiebedarfs-ausweis
Gültig bis:
04.11.2034

Grundriss

Lageplan

1070 Wien | Wien 7., Neubau

Lade...
Anna Sitarz

Anna Sitarz

Sitarz & Partner Immobilien GmbH

Lade...

Fotomix

Zimmer 1 Zimmer 1 Zimmer 1 Wohnküche Wohnküche Wohnküche Kabinett Kabinett Kabinett Badezimmer Badezimmer Vorraum Vorraum WC Abstellraum