NEU - Provisionsfreie Anlegerwohnungen für Käufer

Wohnung zum Kauf in 2301 Groß-Enzersdorf - Kaufpreis: 351.000 € / Objektnummer: 141/76784
Ausstattung: Abstellraum Balkon
4 innen
10 innen
11
5 innen
6 innen
8 innen
9A innen
KP_7 innen
Visual_2
Visual_4
Visual_3
Visual_1
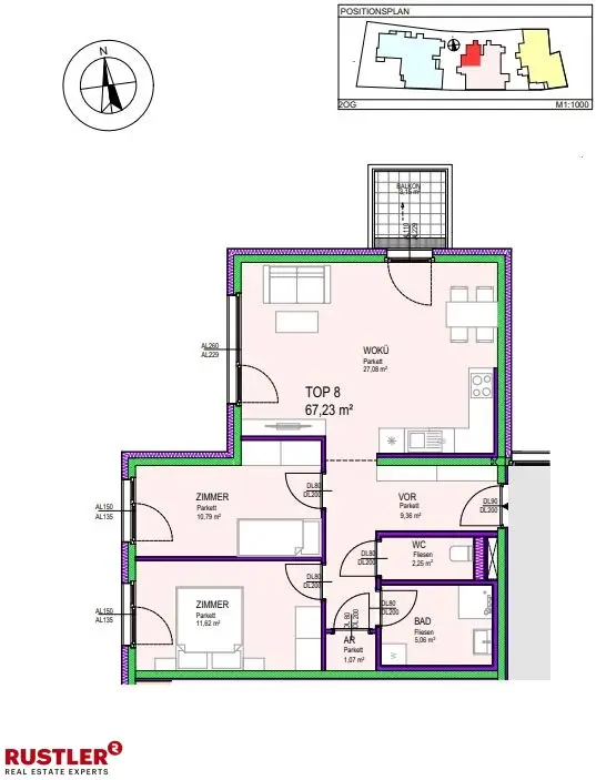
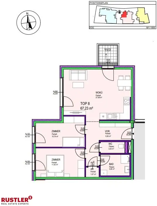
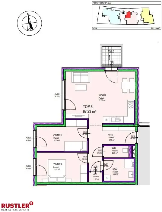
Top 8
Lageplan

Preisinformationen

Kaufpreis:
351.000 €
Kaufpreis/m²
5.220,88 €
Provision:
provisionsfrei

Fakten

Objektnummer:
141/76784
Objekttyp:
Wohnung
Balkon:
1
Wohnfläche:
67,23 m²
Zimmer:
3
Badezimmer:
1
Toilette:
1
Baujahr:
2026
Neubau:
Ja
Verfügbarkeit:
Verfügbar

Beschreibung

Am Rand des 22. Wiener Gemeindebezirks, in Groß-Enzersdorf, entsteht ein attraktives Neubauprojekt mit 37 freifinanzierten Anlegerwohnungen, 2 Geschäftslokalen und 80 Garagenstellplätzen – eine hervorragende Gelegenheit für Investoren, die auf nachhaltige Wertentwicklung und solide Vermietbarkeit setzen.

Das Projekt umfasst drei Bauteile und überzeugt durch seine strategische Lage: Die Nähe zur Wiener Stadtgrenze, die ausgezeichnete öffentliche Anbindung sowie das vielfältige Freizeitangebot machen diese Anlageimmobilien besonders interessant für langfristige Vermietung. Jede Wohneinheit verfügt über eine Freifläche – Balkon, Loggia, Terrasse oder Eigengarten – und bietet damit ein attraktives Wohnumfeld für
zukünftige Mieter.

Die zentrale Lage in Groß-Enzersdorf garantiert eine hohe Lebensqualität: Schulen, Kindergärten, Einkaufsmöglichkeiten sowie sportliche und kulturelle Angebote befinden sich in unmittelbarer Nähe. Die schnelle Erreichbarkeit der Wiener Innenstadt und des Naherholungsgebiets Lobau steigert zusätzlich die Attraktivität für Mietinteressenten.

Das Projekt auf einem Blick:

+ 37 Wohnungen, 3 Geschäftslokale und 80 Garagenplätze (KP € 18.500,-)
+ Von ca. 41 m² bis ca. 108 m²
+ Wohneinheiten mit 2 bis 4 Zimmern
+ Jede Wohneinheit mit Garten, Terrasse, Loggia oder Balkon


Geplante Fertigstellung: Frühjahr 2026


Zögern Sie nicht, sich noch heute einen persönlichen Besichtigungstermin zu sichern! Die Immobilie erfreut sich großer Nachfrage – nutzen Sie die Gelegenheit, sich selbst ein Bild zu machen und vereinbaren Sie jetzt Ihren Wunschtermin. Wir freuen uns darauf, Sie kennenzulernen!
Beschreibung weiterlesen

Grundrisse

Timo Kohlweiss

Timo Kohlweiss

Rustler Immobilientreuhand

Anrufen
Lade...

Fotomix

4 innen 10 innen 11 5 innen 6 innen 8 innen 9A innen KP_7 innen Visual_2 Visual_4 Visual_3 Visual_1