NEU - PROVISIONSFREIE Balkonwohnung in Gössendorf | 2-Zimmer | 2 Tiefgaragenplätze

Wohnung zur Miete in 8077 Gössendorf - Gesamtmiete: 616,00 € / Objektnummer: 5971/5051
Ausstattung: Barrierefrei Boden Tiefgarage Parkplatz Fernwärme Fußbodenheizung Balkon Garten

Preisinformationen

Gesamtmiete:
616,00 € / Monat
Nettomiete:
475,00 € / Monat
Betriebskosten netto:
85,00 € / Monat
Monatliche Kosten USt.:
56,00 €
Umsatzsteuer:
56,00 €
Provision:
Gemäß Erstauftraggeberprinzip bezahlt der Abgeber die Provision.

Fakten

Objektnummer:
5971/5051
Objekttyp:
Wohnung
Balkon:
1
Balkonfläche:
12 m²
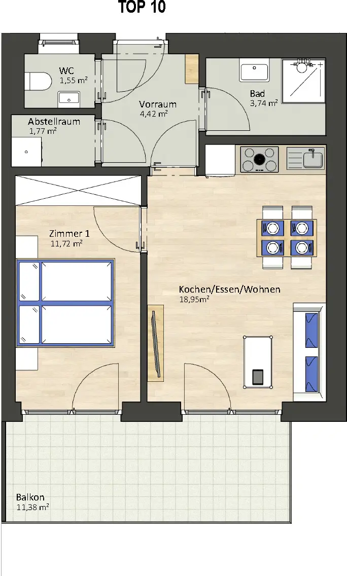
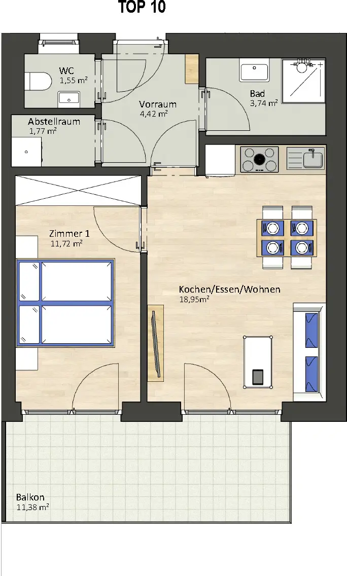
Wohnfläche:
43 m²
Gartenfläche:
35,96 m²
Zimmer:
2
Stockwerk:
1. Etage
Baujahr:
2019
Neubau:
Ja
Zustand:
Gepflegt
Verfügbarkeit:
Verfügbar

Beschreibung

Verfügbar: Ab sofort!

Bruttomiete inkl. BK, Heizung + 2 Tiefgaragenplätze: € 770,-

STROM EXTRA 

Besichtigungen unter: +43 664 500 92 10

Diese Wohnung befindet sich in einem Neubauprojekt in Gössendorf, welche durch besonders hochwertige Bauweise und Ausstattung besticht. 

Die 2-Zimmer-Wohnung verfügt über einen Vorraum, 1 Schlafzimmer, eine Wohnküche, ein Badezimmer, ein separates WC, einen Abstellraum, sowie über eine gemütliche großzügige Terrasse.

In der selben Straße, nur wenige Gehminuten entfernt, befinden sich Bildungseinrichtungen, wie Kindergarten und Volksschule. 

Besucherparkplätze sind in der Tiefgarage vorhanden. 

AUSSTATTUNG 

  • Raumhöhe von 2,85 m
  • doppelt beplankte Rigipswände
  • elektrische Raffstores, robuste WPC-Terrassendielen
  • Bodensteckdose für Kücheninsel
  • Einbauküche, Parkettböden, Fußbodenheizung, 
  • Terrasse und Eigengarrten
  • Kellerabteil
  • 2 Tiefgaragenplätze 
  • Fahrradabstellplätze

Weitere Informationen unter: +43 664 500 92 10

Der Immobilienmakler erklärt, dass er – entgegen dem in der Immobilienwirtschaft üblichen Geschäftsgebrauch des Doppelmaklers – einseitig nur für den Vermieter tätig ist.

Beschreibung weiterlesen

Lage und Verkehrsanbindung

GÖSSENDORF
GRAZ-UMGEBUNG
NAHE ZUR AUTOBAHN
ÄRZTE, GESCHÄFTE UND SCHULEN IN UNMITTELBARER NÄHE
BUSHALTESTELLEN IN DER NÄHE

Energieeffizienz

HWB:
36,4 kWh/(m²*a)
HWB Klasse:
B
fGEE:
0,71
fGEE Klasse:
A
Energieausweisart:
Energiebedarfs-ausweis
Gültig bis:
31.03.2025

Lageplan

8077 Gössendorf | Graz-Umgebung

Lade...
Hr. Trabi

Hr. Trabi

Immotura Consulting GmbH

Anrufen
Lade...

Fotomix

Bild 1 Bild 2 Bild 3