NEU - Provisionsfreies Penthouse, 3 Zimmer, große Terrasse, Klimatisierung und Raumbelüftung, Luftwärmepumpe, E-Parkplätze, Ruhelage in Graz

Wohnung zum Kauf in 8055 Graz-Puntigam - Kaufpreis: 552.447 € / Objektnummer: O2100168083
Ausstattung: Barrierefrei Boden Fahrstuhl Wohnküche / offene Küche Bad Tiefgarage Parkplatz Abstellraum
3D Grundriss Top 7
Terrasse Visualisierung
Schlafzimmer Pflanzen
Licht und Schatten ll
Küche 2
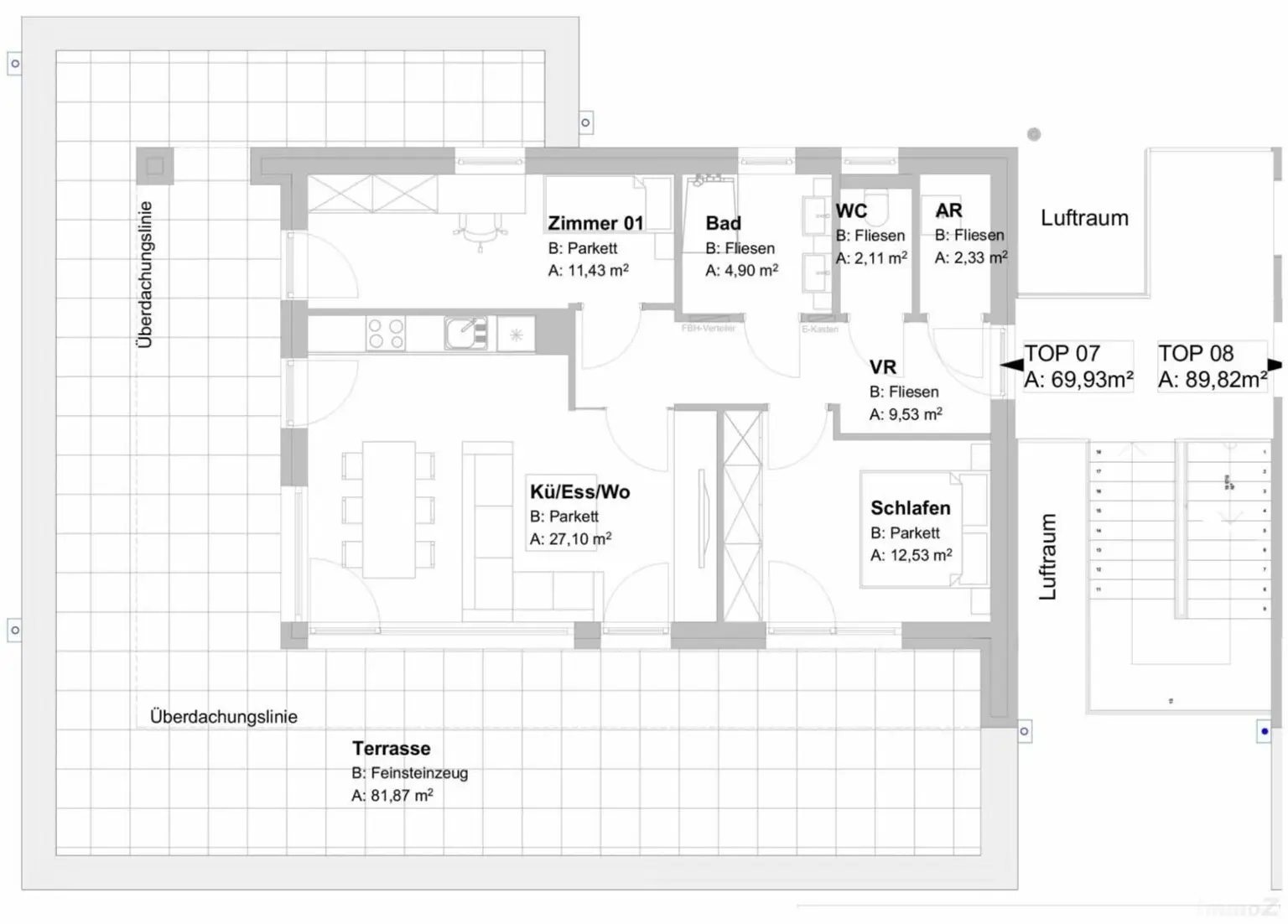
Grundriss Top 7
Ansicht

Preisinformationen

Kaufpreis:
552.447 €
Betriebskosten netto:
192,30 € / Monat
Provision:
provisionsfrei EUR

Fakten

Objektnummer:
O2100168083
Objekttyp:
Wohnung
Keller Fläche:
4 m²
Wohnfläche:
70 m²
Gesamtfläche:
70 m²
Zimmer:
3
Badezimmer:
1
Toilette:
1
Stockwerk:
2
Baujahr:
2026
Neubau:
Ja
Zustand:
Erstbezug
Verfügbarkeit:
Verfügbar

Beschreibung

Zum Verkauf steht eine besondere Penthouse Wohnung in der ruhigen Laubgasse nahe dem Erholungsgebiet an der Mur. Die kleine Anlage mit nur 8 Einheiten wird von der Baufirma Pfleger errichtet und zeichnet sich durch Ihre Ausrichtung nach Süden und die kleinstrukturierte Nachbarschaft aus.

Bezugstermin ist Sommer 2026

Die 3 Zimmer Wohnung mit ca. 70m² liegt im 2. Stock mit Lift. 2 Schlafzimmer, ein offener Wohn/Kochbereich, eine 82m² Südwest Terrasse, das 7,5m² Bad mit Walk-Inn Dusche sowie Doppelwaschbecken, ein extra WC mit Waschbecken und ein Abstellraum mit Waschmaschinenanschluss laden zum Verweilen ein. Die optionalen Parkplätze sind mit E-Ladegeräten und optionaler Photovoltaik ausgestattet. Die Materialien sind hochwertig und langlebig, die Fenster 3fach verglast und beschattet, die Glaselemente bieten eine großzügige Sicht ins Grün. Geheizt wird mittels Luftwärmepumpe und Fußbodenheizung.
Weitere Wohnungen von Gartenwohnung bis Penthouse verfügbar.

Alle Wohnungen sind auch im Anlegermodus erwerbbar.

Besichtigungen jederzeit möglich.
Beschreibung weiterlesen

Energieeffizienz

Endenergiebedarf:
39,2 kWh/(m²*a)
HWB:
39,2 kWh/(m²*a)
HWB Klasse:
B
fGEE:
0,73
fGEE Klasse:
A
Energieausweisart:
Energieverbrauchs-ausweis
Gültig bis:
31.03.2030

Lageplan

8055 Graz-Puntigam | Graz (Stadt)

Lade...
Clemens Fürst

Clemens Fürst
Leitung Geschäftsfeld Immobilien

Steindorff Immobilien GmbH

Lade...

Fotomix

3D Grundriss Top 7 Terrasse Visualisierung Schlafzimmer Pflanzen Licht und Schatten ll Küche 2 Grundriss Top 7 Ansicht