NEU - Q11 Leben in Simmering - schöne Balkonwohnung mit 4 Zimmern und Deckenkühlung!

Wohnung zur Miete in 1110 Wien - Gesamtmiete: 1.506,76 € / Objektnummer: 247/04816
Ausstattung: Fahrstuhl Fußbodenheizung Balkon
Balkon
Wohnraum III
1.Zimmer
Wohnraum I
Küche
Balkon I
3.Zimmer I
Wohnraum II
Badezimmer
2.Zimmer
Ausblick
Wohnraum
1.Zimmer I
2.Zimmer I
3.Zimmer
Vorraum
Stiegen 7 li 8,9,10
Plan
Lageplan

Preisinformationen

Gesamtmiete:
1.506,76 € / Monat
Nettomiete:
1.125,71 € / Monat
Betriebskosten netto:
244,07 € / Monat
Umsatzsteuer:
136,98 €
Preisinfos:
Abwicklung und Durchführung Mietvertrag: € 375,-
Kaution:
4.550,00 €

Fakten

Objektnummer:
247/04816
Objekttyp:
Wohnung
Balkon:
1
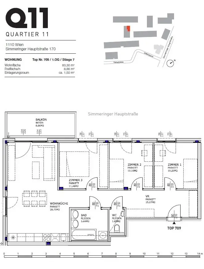
Wohnfläche:
83,3 m²
Zimmer:
4
Badezimmer:
1
Toilette:
1
Stockwerk:
1
Baujahr:
2017/Neubau
Neubau:
Ja
Verfügbarkeit:
Verfügbar

Beschreibung

In zentraler Lage von Simmering befindet sich Ihr neues Zuhause mit Blick ins Grüne! Das moderne und weitläufige Wohnbauprojekt besteht aus gesamt 12 Stiegen. Die gut gestalteten 1-4 Zimmerwohnungen verfügen alle über Freiflächen in Form von Balkonen, Loggien oder Terrassen und sind allesamt mit einer effizienten Deckenkühlung ausgestattet. Bitte beachten Sie, dass es sich bei den Bildern um Archivfotos einer baugleichen Wohnung im selben Gebäude handelt. Die Wohnung: Diese helle und moderne 4-Zimmer-Balkonwohnung mit einer Wohnfläche von ca. 83 m² und einer Freifläche von ca. 9 m² (nordostseitig) steht für Sie nach Vereinbarung zur Anmietung bereit. Im 1. Obergeschoss erwartet Sie die Immobilie mit einer hochwertigen Ausstattung und einer durchdachten Raumaufteilung. Die Highlights: Parkettböden / Isolierglasfenster / KlimaLoop® - Deckenkühlung / Außenliegende Jalousien (mechanisch) / Fernseh- und Internetanschlüsse (Magenta) Die Wohnhausanlage: Ebenerdig begehbare Kinderwagen- und Fahrradabstellräume / Waschküche / Spielplatz im Freien / Kellerabteil zu jeder Wohnung zugeordnet / Barrierefreier Zugang zur Wohnung (Aufzug) / Garage Infrastruktur: Die U-Bahn-Station "Simmering" (U3) sowie Straßenbahnen und Busse sind in wenigen Minuten zu Fuß erreichbar. Geschäfte des täglichen Bedarfs befinden sich in unmittelbarer Nähe (Simmeringer Hauptstraße). Das Einkaufszentrum Simmering ist per Straßenbahn in wenigen Minuten erreichbar und ergänzt das Einkaufsangebot. Die Kosten: Der monatliche Gesamtmietzins dieser Wohnung beläuft sich auf Euro 1.506,76 inklusive Betriebskosten und Umsatzsteuer. Akontozahlungen (z.B. Betriebskosten) können sich per Jahreswechsel ändern. Die Heiz- und Warmwasserversorgung erfolgt mittels Fußbodenheizung, ist im Mietpreis nicht inkludiert und wird Verbrauchsabhängig vorgeschrieben. Die Stellplätze in der hauseigenen Garage können optional angemietet werden. Per Telefon werden keine Termine vergeben! Wir bitten Sie, ausschließlich das Kontaktformular der Immobilienplattformen für Anfragen zu nutzen. Nach Erhalt unserer E-Mail antworten Sie bitte auf dieses E-Mail mit Ihrem Besichtigungswunsch. Wir möchten darauf hinweisen, dass unsere Antwort möglicherweise in Ihrem Spamordner landen könnte. Wir freuen uns auf Ihre Anfrage und einen gemeinsamen Besichtigungstermin!
Beschreibung weiterlesen

Lage und Verkehrsanbindung

U3 Station Simmering, Lorystraße

Energieeffizienz

HWB:
27,47 kWh/(m²*a)
HWB Klasse:
B
fGEE:
0,83
fGEE Klasse:
A

Grundrisse

Vivienne Spicak

Vivienne Spicak

IMV Immobilienmakler

Lade...

Fotomix

Balkon Wohnraum III 1.Zimmer Wohnraum I Küche Balkon I 3.Zimmer I Wohnraum II Badezimmer 2.Zimmer Ausblick Wohnraum 1.Zimmer I 2.Zimmer I 3.Zimmer Vorraum Stiegen 7 li 8,9,10