NEU - "3-Zimmer-Gartenwohnung mit Fernwärme & 2 Parkplätzen

Wohnung zur Miete in 3435 Zwentendorf an der Donau - Gesamtmiete: 750,00 € / Objektnummer: 28326
Ausstattung: Rollstuhlgerecht Parkplatz Außenparkplatz Zentralheizung Terrasse Garten
01 Mietwohnung in Erpersdorf
02 Küche
03 Küche
04 Badezimmer
05 Garten
06 Eingangsbereich
07 Flur
08 Wohnzimmer
09 Wohnzimmer
10 Flur
10 Zimmer 1
11 Zimmer 1
12 Zimmer 2
13 Zimmer 2
15 Garten
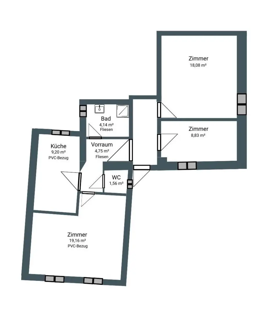
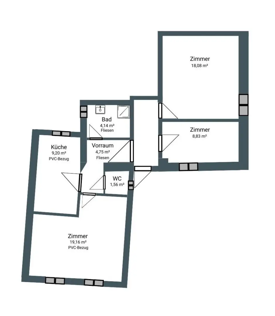
16 Plan

Preisinformationen

Gesamtmiete:
750,00 € / Monat
Kaution:
2.700,00 €

Fakten

Objektnummer:
28326
Objekttyp:
Wohnung
Terrasse:
1
Wohnfläche:
75 m²
Gartenfläche:
25 m²
Zimmer:
3
Badezimmer:
1
Toilette:
1
Baujahr:
ca. 1990
Verfügbarkeit:
Verfügbar

Beschreibung

"Sanierte 3-Zimmer-Gartenwohnung mit Fernwärme & 2 Parkplätzen"

Zur Vermietung gelangt diese 2025 sanierte 3-Zimmer-Mietwohnung mit rund 75 m² Wohnfläche liegt in angenehmer Wohnlage in Erpersdorf und verbindet ruhiges Wohnen mit guter Erreichbarkeit.
 
Die Wohnung verfügt über drei gut geschnittene Zimmer und eine separate Küche mit ausreichend Platz für einen Essbereich. Ein Vorraum sorgt für eine praktische Raumaufteilung. Das Badezimmer ist gepflegt und mit einer Dusche ausgestattet. Ergänzt wird das Raumangebot durch einen zur Wohnung gehörenden Abstellraum außerhalb der Wohnung.
 
Beheizt wird die Wohnung mittels Fernwärme, was für angenehmen Wohnkomfort sorgt.
 
Ein besonderes Highlight ist der private Garten mit ca. 25 m².
Zwei zur Wohnung gehörende Parkplätze stehen ebenfalls zur Verfügung.
 
Die Infrastruktur ist sehr gut: Nahversorger, Kindergarten, Gastronomie und Freizeiteinrichtungen befinden sich in der näheren Umgebung.
Die Verkehrsanbindung ist ideal für Pendler: Der Bahnhof Tulln ist rasch erreichbar, von dort bestehen direkte Bahnverbindungen nach Wien. Auch mit dem Auto sind Tulln und das Wiener Stadtgebiet gut angebunden.

Energieausweis befindet sich derzeit in Arbeit!

Kaution:
Kaution: € 2.700,00

Miete:
Miete: € 637,00
Betriebskosten: € 116,00
Abstellplatz: € 25,00
Heizkosten Akonto: € 112,00
Gesamtmiete(brutto) inkl. HEIZUNG, BK und MwSt. NUR: € 890,00
Angaben gemäß gesetzlichem Erfordernis:
Miete 750
Umsatzsteuer 0
---------------------------------
Gesamtbetrag 750

Beschreibung weiterlesen
Gerald Hinker

Gerald Hinker

RE/MAX Tulln-Purkersdorf

Lade...

Fotomix

01 Mietwohnung in Erpersdorf 02 Küche 03 Küche 04 Badezimmer 05 Garten 06 Eingangsbereich 07 Flur 08 Wohnzimmer 09 Wohnzimmer 10 Flur 10 Zimmer 1 11 Zimmer 1 12 Zimmer 2 13 Zimmer 2 15 Garten 16 Plan