NEU - "Attraktives, komplett renoviertes Geschäftslokal in Top-Lage!"

Einzelhandel zur Miete in 1090 Wien - Gesamtmiete: 1.635,75 € / Objektnummer: 28429
Ausstattung: Kabel/Satelliten-TV Zentralheizung
1
2
3
4
5
6
7
8
9
10
11
12
13
Plan folgt in Kürze
25 Jahre REMAX DCI

Preisinformationen

Gesamtmiete:
1.635,75 € / Monat
Gesamtmiete (exkl. USt.):
1.409,61 € / Monat
Umsatzsteuer:
226,14 €
Kaution:
4.905,00 €

Fakten

Objektnummer:
28429
Objekttyp:
Einzelhandel
Nutzfläche:
113 m²
Toilette:
1
Baujahr:
ca. 1884
Zustand:
Gepflegt
Verfügbarkeit:
Verfügbar

Beschreibung

"Attraktives, komplett renoviertes Geschäftslokal in Top-Lage"

Zur Vermietung / zum Verkauf gelangt ein hochwertig generalsaniertes Geschäftslokal in ausgezeichneter Lage der Nußdorfer Straße 55 im 9. Wiener Gemeindebezirk.
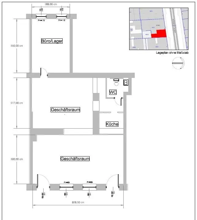
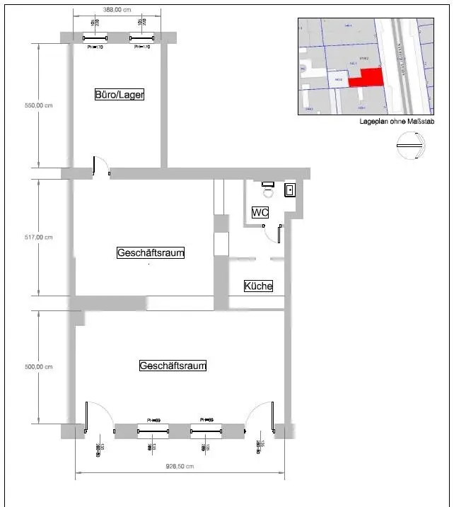
Die Geschäftsfläche umfasst ca. 113 m² und wurde im vergangenen Jahr umfassend renoviert. Sämtliche Innenräume sowie die komplette Einrichtung wurden neu gestaltet und modernisiert – das Objekt präsentiert sich in einem äußerst gepflegten, zeitgemäßen Zustand.

Objektbeschreibung:
Bei diesem Geschäftslokal handelt es sich um einen modernen Damenfriseursalon, der im vergangenen Jahr umfassend renoviert und vollständig neu ausgestattet wurde. Das gesamte Objekt präsentiert sich in einem neuwertigen, äußerst gepflegten Zustand und bietet ideale Voraussetzungen für einen sofortigen Betriebsstart.
Die rund 113 m² große Geschäftsfläche wurde mit viel Liebe zum Detail und einem klaren, zeitgemäßen Designkonzept gestaltet. Hochwertige Materialien, eine stilvolle Innenarchitektur sowie eine komplett neue, moderne Einrichtung schaffen ein angenehmes und exklusives Ambiente für Kundinnen.
Der Salon verfügt über optimal angeordnete Arbeitsplätze, großzügige Spiegelbereiche, komfortable Waschplätze sowie ausreichend Stauraum und Nebenflächen. Die helle Raumgestaltung und die großzügige Schaufensterfront sorgen für eine freundliche Atmosphäre und eine ausgezeichnete Außenwirkung.
Ein Standort mit perfekter Kombination aus Eleganz, Funktionalität und sofortiger Einsatzbereitschaft – ideal für anspruchsvolle Friseurinnen oder ein etabliertes Damenfriseur-Konzept.

Der Vermittler ist als Doppelmakler tätig.
Angaben gemäß gesetzlichem Erfordernis:
Miete 1130,72 zzgl 20% USt.
Betriebskosten 278,89
Umsatzsteuer 226,14
---------------------------------
Gesamtbetrag 1635,75
---------------------------------
Heizwärmebedarf: 199.9 kWh/(m²a)
Klasse Heizwärmebedarf: E
Faktor Gesamtenergieeffizienz: 1.93
Klasse Faktor Gesamtenergieeffizienz: E

Beschreibung weiterlesen

Energieeffizienz

HWB Klasse:
E
fGEE:
1,93
fGEE Klasse:
E
Energieausweisart:
Energiebedarfs-ausweis

Lageplan

1090 Wien | Wien 9., Alsergrund

Lade...
Verand Selimi

Verand Selimi

RE/MAX Wien-Donaustadt

Lade...

Fotomix

1 2 3 4 5 6 7 8 9 10 11 12 13 Plan folgt in Kürze 25 Jahre REMAX DCI