NEU - "Familienwohnung Erstbezug!"

Wohnung zur Miete in 1030 Wien - Gesamtmiete: 1.930,00 € / Objektnummer: 28752
Ausstattung: Fahrstuhl Zentralheizung Loggia WG geeignet

Preisinformationen

Gesamtmiete:
1.930,00 € / Monat
Betriebskosten netto:
180,68 € / Monat
Umsatzsteuer:
18,07 €
Kaution:
6.000,00 €

Fakten

Objektnummer:
28752
Objekttyp:
Wohnung
Loggia:
1
Keller Fläche:
5 m²
Wohnfläche:
114 m²
Zimmer:
4
Badezimmer:
1
Toilette:
2
Stockwerk:
4
Baujahr:
ca. 1974
Zustand:
Erstbezug
Verfügbarkeit:
Verfügbar

Beschreibung

"Hofruhelage!"

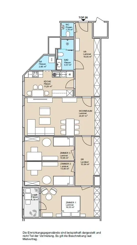
Diese charmante Familienwohnung befindet sich im Herzen des 3. Bezirks von Wien und überzeugt mit einer großzügigen Wohnfläche von ca. 114m².
Die Wohnung wurde soeben renoviert und befindet sich in einem sehr guten Zustand.

Aufteilung:
Vorraum ca. 16m²
Wohnraum ca. 25m²
Schlafzimmer ca. 17m²
verglaste Loggia ca. 4m²
2 Kinderzimmer ca. 11m²
Küche ca. 11m²
Speis ca. 3m²
Badezimmer ca. 5m²
WC ca. 2m²

Ausstattung
Die Wohnung ist nach Süd-Osten ausgerichtet und bietet großzügige, helle Räume für die ganze Familie. Die Küche wurde bei der Renovierung mit hochwertigen Geräten wie einem Geschirrspüler, Induktionskochfeld, Backofen und einer Kühl-Gefrierkombination neu gestaltet.
Zur Ausstattung gehören auch Innenjalousien und eine verglaste Loggia, die zusätzlichen Raum für Momente der Entspannung bietet.
Ein Waschmaschinenanschluss ist in der Speis vorhanden.

Lagebeschreibung
Der 3. Bezirk, ist für seine exzellente Infrastruktur bekannt. Die Trubelgasse liegt in einer ruhigen Umgebung mit schnellen Anbindungen an das öffentliche Verkehrsnetz. Die Schnellbahnstation ist in etwa zehn Minuten zu Fuß erreichbar, während Bus- und Straßenbahnlinien in unmittelbarer Nähe zu finden sind.
Supermärkte, Bäckereien und andere Geschäfte des täglichen Bedarfs sind gemütlich zu Fuß erreichbar.
Familien mit Kindern werden den Vorteil von nahen Schulen und Kindergärten zu schätzen wissen.
Für Freizeit und Erholung bieten der nahegelegene Schweizergarten und der Botanische Garten grüne Oasen zum Entspannen.

Miete:
Miete netto: € 1.731,25
Betriebskosten netto: € 180,68
10% USt.: € 18,07
Gesamtmiete(brutto): € 1.930,00

Es wird auf die einseitige Vertretung des Vermieters hingewiesen – eine Doppelmakler-Tätigkeit ist ausgeschlossen.
Angaben gemäß gesetzlichem Erfordernis:
Miete 1731,25
Betriebskosten 180,68 zzgl 10% USt.
Umsatzsteuer 18,07
---------------------------------
Gesamtbetrag 1930
---------------------------------
Heizwärmebedarf: 76.0 kWh/(m²a)
Klasse Heizwärmebedarf: C
Faktor Gesamtenergieeffizienz: 1.34
Klasse Faktor Gesamtenergieeffizienz: C

Beschreibung weiterlesen

Energieeffizienz

HWB:
76 kWh/(m²*a)
HWB Klasse:
C
fGEE:
1,34
fGEE Klasse:
C
Energieausweisart:
Energiebedarfs-ausweis

Lageplan

1030 Wien | Wien 3., Landstraße

Lade...
Magda Weinrother

Magda Weinrother

RE/MAX Mödling

Lade...

Fotomix

Küche Hofruhelage Wohnzimmer Schlafzimmer Kinderzimmer 1 Kinderzimmer 2 Loggia Bad Grundriss 25 Jahre REMAX DCI