NEU - "kleines feines Häuschen!"

Haus zum Kauf in 2111 Rückersdorf-Harmannsdorf - Kaufpreis: 199.000 € / Objektnummer: 28769
Ausstattung: Möbliert Kabel/Satelliten-TV Garage Parkplatz Zentralheizung

Preisinformationen

Kaufpreis:
199.000 €
Provision:
3.00 %

Fakten

Objektnummer:
28769
Objekttyp:
Haus
Wohnfläche:
72 m²
Grundstücksfläche:
451 m²
Zimmer:
4
Badezimmer:
1
Toilette:
1
Baujahr:
ca. 1964
Verfügbarkeit:
Verfügbar

Beschreibung

OPEN HOUSE-Besichtigung mit Einzelterminen,
am Freitag, den 15. Mai, ab 15 Uhr! Um Anmeldung wird gebeten!

"kleines feines Häuschen"

Dieses kleine feine Häuschen steht am Rande von Harmannsdorf in sehr schöner und ruhiger Lage und wartet nur darauf wieder in Schwung gebracht zu werden.

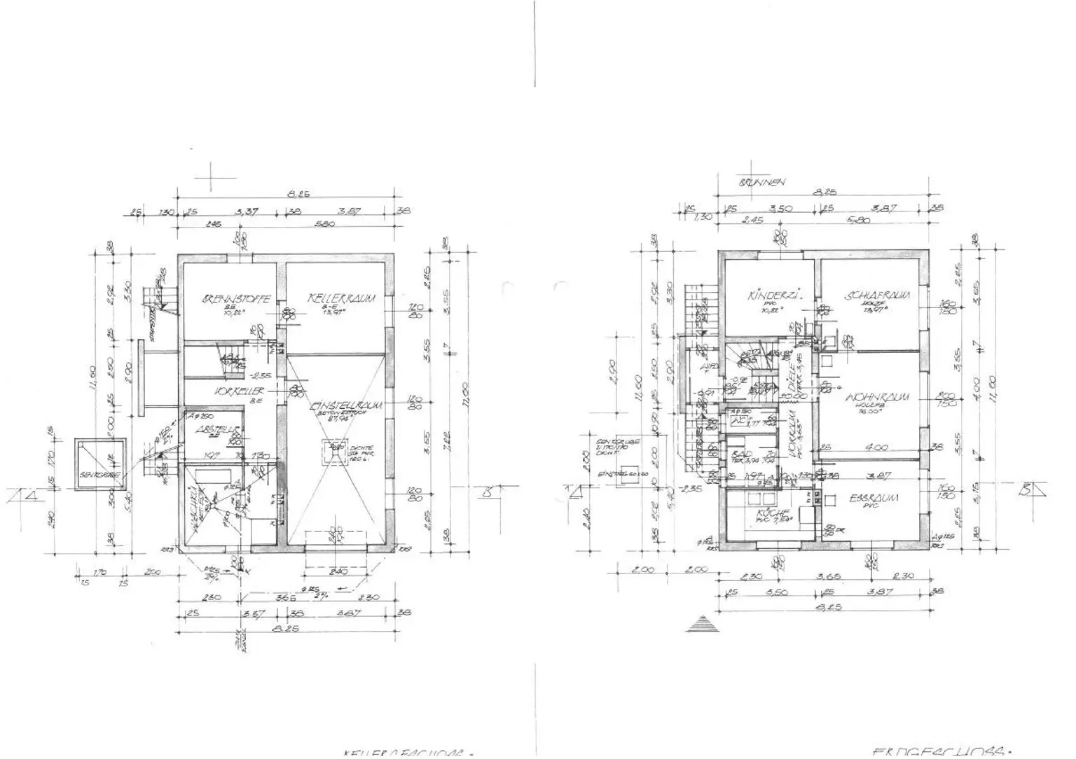
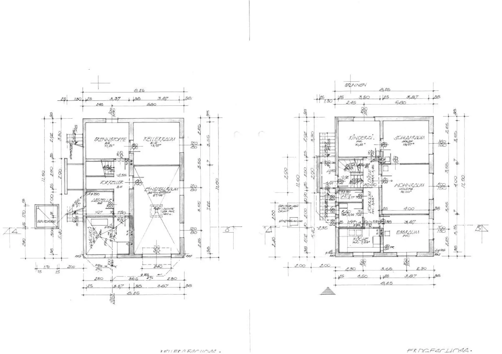
Das Haus ist voll unterkellert, im Keller befindet sich der Heizraum (Gastherme und Kessel für feste Brennstoffe), eine kleine Werkstatt, die Waschküche, ein Lagerraum und die Garage.

Das Erdgeschoss teilt sich wie folgt auf, Vorzimmer, Küche, Esszimmer, Wohnzimmer, Schlafzimmer, Kinderzimmer, Badezimmer und WC.
Im Schlaf- und Kinderzimmer befindet sich ein Holzparkettboden, in den anderen Räumen liegen Teppichböden bzw. PVC-Böden.

Das Dachgeschoss ist im Moment roh, jedoch hat es eine angenehme Größe, um es auszubauen.
Warten Sie also nicht mehr länger und erfüllen Sie sich Ihren Traum vom Haus am Land!

Richtpreis € 199.000,-*)

*)Bei diesem Preis handelt es sich um einen Richtpreis, der sich sowohl nach unten als auch nach oben verändern kann. Vorbehaltlich Annahme durch den Abgeber
Der Vermittler ist als Doppelmakler tätig
Angaben gemäß gesetzlichem Erfordernis:
Heizwärmebedarf: 276.0 kWh/(m²a)
Klasse Heizwärmebedarf: G
Faktor Gesamtenergieeffizienz: 4.0
Klasse Faktor Gesamtenergieeffizienz: G

Beschreibung weiterlesen

Energieeffizienz

HWB Klasse:
G
fGEE:
4
fGEE Klasse:
G
Energieausweisart:
Energiebedarfs-ausweis

Dokumente

Lageplan

2111 Rückersdorf-Harmannsdorf | Korneuburg

Lade...
Alexander Krammel

Alexander Krammel

RE/MAX Dynamic

Lade...

Fotomix

EFH 2111 Harmannsdorf EFH 2111 Harmannsdorf EFH 2111 Harmannsdorf EFH 2111 Harmannsdorf EFH 2111 Harmannsdorf EFH 2111 Harmannsdorf EFH 2111 Harmannsdorf EFH 2111 Harmannsdorf EFH 2111 Harmannsdorf EFH 2111 Harmannsdorf EFH 2111 Harmannsdorf EFH 2111 Harmannsdorf EFH 2111 Harmannsdorf EFH 2111 Harmannsdorf EFH 2111 Harmannsdorf EFH 2111 Harmannsdorf EFH 2111 Harmannsdorf EFH 2111 Harmannsdorf EFH 2111 Harmannsdorf EFH 2111 Harmannsdorf EFH 2111 Harmannsdorf EFH 2111 Harmannsdorf EFH 2111 Harmannsdorf EFH 2111 Harmannsdorf EFH 2111 Harmannsdorf EFH 2111 Harmannsdorf EFH 2111 Harmannsdorf EFH 2111 Harmannsdorf Planskizze - EFH 2111 Harmannsdorf