NEU - "Schau Schatzi, eine Wohnung wie ein Haus! MIETKAUF möglich!"

Wohnung zum Kauf in 2504 Sooß - Kaufpreis: 359.500 € / Objektnummer: 28602
Ausstattung: Parkplatz Außenparkplatz Fußbodenheizung Balkon Terrasse Garten
Bild_03
3-D_Gartenbereich_II
Bild_02
Bild_18
Beispiel Schlafzimmer
Beispiel Wohnzimmer
3-D_Eingangsbereich_IV
EG
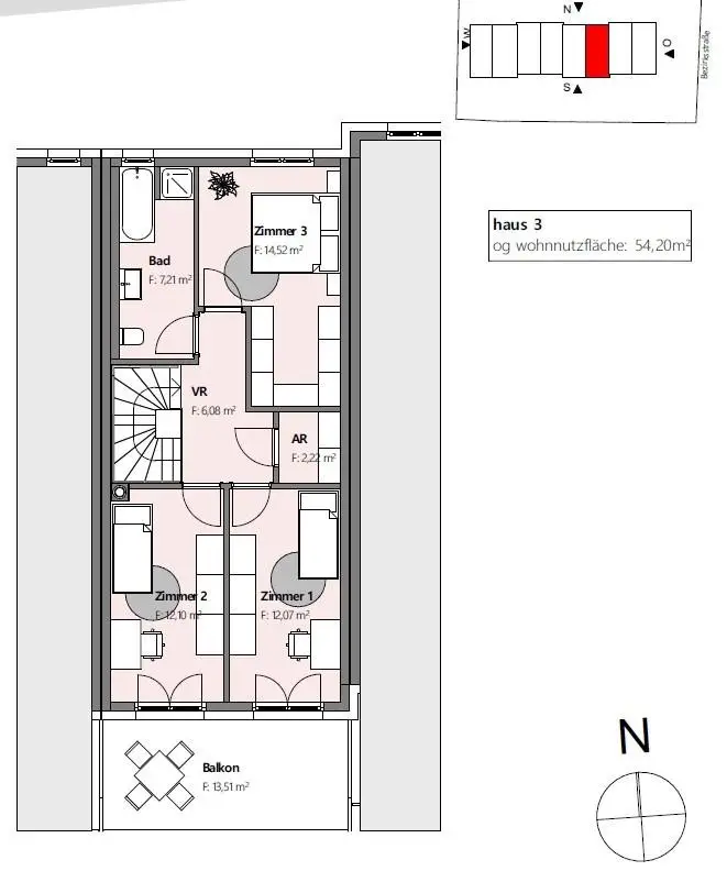
OG
provisionsfrei für den Käufer
25 Jahre REMAX DCI

Preisinformationen

Kaufpreis:
359.500 €

Fakten

Objektnummer:
28602
Objekttyp:
Wohnung
Balkon:
1
Terrasse:
1
Wohnfläche:
108 m²
Gartenfläche:
42 m²
Zimmer:
4
Schlafzimmer:
3
Badezimmer:
1
Toilette:
2
Baujahr:
ca. 2023
Zustand:
Erstbezug
Verfügbarkeit:
Verfügbar

Beschreibung

"Warum eine Wohnung, wenn Sie auch ein Haus dafür bekommen können?"

In zentraler Siedlungslage in Sooß wurden 8 Reihenhäuser (ziegelmassiv, belagsfertig) mit je 2 KFZ Stellplätzen sowie dem jeweiligen Gartenanteil errichtet. Diese Häuser stehen bereits zum Verkauf.

Die Reihenhäuser sind zweigeschossig mit einer optimalen Raumaufteilung errichtet.

Erdgeschoss (ca. 53,79 m²)
großer, lichtdurchfluteter Wohn-, Ess- und Küchenbereich
Garderobe, Technikraum, WC

Die gartenseitige Terrasse untermalt den modernen Charakter der Häuser.
Jede Terrasse verfügt über einen Abstellraum mit Platz für Gartengeräte etc.

Sie erreichen das Obergeschoss (ca. 54,20 m²) über eine massive Treppe direkt aus dem Wohnzimmer.
Hier findet jedes Familienmitglied seinen Rückzugsort.
Ein großes Schlafzimmer mit integriertem Schrankraum,
zwei weitere Schlafräume, und ein großzügiges Badezimmer

Ausstattung:
ziegelmassiv Bauweise, belagsfertig
Luftwärmepumpe mit Fußbodenheizung
Kunststoff-Aluminium Fenster 3-fach verglast
Raffstore und Rollläden elektrisch

2 PKW-Stellplätze

Die anteiligen Gärten können über einen Weg mit einem Gartentor auch von außen betreten werden.

Im Vorgartenbereich ist für jedes Haus ein eigener Müllplatz angelegt, sowie die Wärmepumpe eingeplant.
Die Trennung der jeweiligen Parzellen erfolgt mittels verzinkten Stabmattenzaun.

Kaufpreis / Baurechtszins:
Als Baurecht wird in Österreich das private Recht bezeichnet, auf einem fremden Grundstück – oder unter dessen Oberfläche – ein Gebäude zu errichten.
Dies ist im Baurechtsgesetz 1912 geregelt. Im Grundbuch wird das Baurecht zweimal eingetragen: in der Stammeinlage als Belastung im C-Blatt (Lastenblatt) und in der Baurechtseinlage.

Das monatliche Baurechtsentgelt beträgt € 343,75 bis in das Jahr 2121 .

Die monatlichen Betriebskosten sind derzeit mit € 1,80 pro m² WFL inklusive USt eingestuft, d.s. ca. € 195,–.
Die Abrechnungen erfolgen über eine Hausverwaltung.

Eine Haushaltsversicherung wird direkt von dem jeweiligen Käufer gesondert abgeschlossen, die Gebäude- und Sturmschadenversicherung ist bereits in den monatlichen Betriebskosten enthalten.

Kaufpreis Haus 3: € 359.500,-
Abgebergestützt PROVISIONSFREI für den KÄUFER!
Der VERKÄUFER bezahlt die KÄUFERPROVISION! .

Für diese Einheit ist die Variante "MIETKAUF" möglich!
Nettomiete € 1.375,00
Betriebskostenakonto derzeit € 65,00
10% USt. € 144,00
Baurechtszins 0% USt derzeit € 342,88
Monatliche Gesamtmiete € 1.926,88

Die Bau- und Ausstattungsbeschreibung senden wir Ihnen sehr gerne auf Anfrage.

Weitere verfügbare Einheiten:
Top 4 – 108 m² WFL, ca. 42 m² Gartenfläche – € 359.500,- Mietkauf möglich
Top 5 – 108 m² WFL, ca. 45 m² Gartenfläche – € 375.700,- Mietkauf möglich
Top 6 – 108 m² WFL, ca. 44 m² Gartenfläche – € 375.700,-
Top 7 – 108 m² WFL, ca. 41 m² Gartenfläche – € 389.800,-
Top 8 – 108 m² WFL, ca. 108 m² Gartenfläche – € 409.900,-

Für weitere Informationen stehen wir Ihnen sehr gerne zur Verfügung.

Wir weisen auf ein wirtschaftliches Naheverhältnis hin!
Angaben gemäß gesetzlichem Erfordernis:
Heizwärmebedarf: 26.0 kWh/(m²a)
Klasse Heizwärmebedarf: B
Faktor Gesamtenergieeffizienz: 0.62

Beschreibung weiterlesen

Energieeffizienz

HWB:
26 kWh/(m²*a)
HWB Klasse:
B
fGEE:
0,62
Energieausweisart:
Energiebedarfs-ausweis

Lageplan

2504 Sooß | Baden

Lade...
Richard Fetscher, MBA

Richard Fetscher, MBA

RE/MAX Mödling

Lade...

Fotomix

Bild_03 3-D_Gartenbereich_II Bild_02 Bild_18 Beispiel Schlafzimmer Beispiel Wohnzimmer 3-D_Eingangsbereich_IV EG OG provisionsfrei für den Käufer 25 Jahre REMAX DCI