NEU - "Sonnige, helle 2-Zimmerwohnung mit Balkon und Küche und Essbereich"

Wohnung zur Miete in 8680 Mürzzuschlag - Gesamtmiete: 615,00 € / Objektnummer: 3171
Ausstattung: Kabel/Satelliten-TV Zentralheizung Balkon WG geeignet
Böden
vollausgestattet
Zimmer
Zimmer
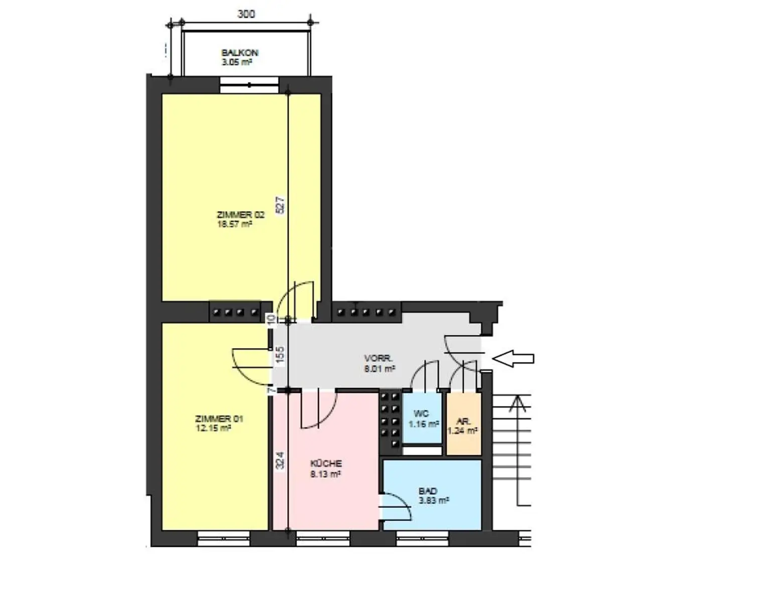
Grundriss
Balkon
Duschkabine

Preisinformationen

Gesamtmiete:
615,00 € / Monat
Kaution:
2.100,00 €

Fakten

Objektnummer:
3171
Objekttyp:
Wohnung
Balkon:
1
Keller Fläche:
8 m²
Wohnfläche:
56 m²
Zimmer:
2,5
Schlafzimmer:
2
Badezimmer:
1
Toilette:
1
Stockwerk:
2
Baujahr:
ca. 1960
Neubau:
Ja
Zustand:
Gepflegt
Verfügbarkeit:
Verfügbar

Beschreibung

"Sehr gute Atmosphäre und Raumaufteilung"

Diese schöne und helle 2-Zimmerwohnung mit südseitigem Balkon befindet sich im 2 Stock ohne Lift, in einem gepflegten Wohnhaus.

Raumaufteilung: Vorzimmer, Küche, Bad, WC, Abstellraum, 2 Zimmer und Balkon.

Die Räume sind zentral begehbar.

Ausstattung: Laminatböden, Fliesen, Fenster mit Sonnenschutz, vollausgestattete Küche, Bad mit Duschkabine, Ruhelage, südseitiger Balkon und noch vieles mehr.

Eigenes Kellerabteil und allgemeiner Fahrradraum stehen Ihnen ebenfalls im Wohnhaus zur Verfügung.

Alle Nahversorger, Schulen, Ärzte, Apotheke und öffentliche Verkehrsmittel sind in einigen Gehminuten leicht erreichbar.

Gesamtmiete inklusive BK+MwSt. 615,-

Kaution: 3 Monatsmieten
Heizakonto: ca. 90,-/monatlich
Vertragsdauer: 5 Jahre mit Verlängerungsmöglichkeit
Angaben gemäß gesetzlichem Erfordernis:
Miete 615
Umsatzsteuer 0
---------------------------------
Gesamtbetrag 615
---------------------------------
Heizwärmebedarf: 77.9 kWh/(m²a)
Klasse Heizwärmebedarf: C
Faktor Gesamtenergieeffizienz: 1.48
Klasse Faktor Gesamtenergieeffizienz: C

Für weitere Fragen erreichen Sie Herrn Arie Kaikov, unter der Rufnummer 0676/8477 51206 bzw. ak@etera-immobilien.at

Etera Immobilien Consulting - Experience Excellence
Beschreibung weiterlesen

Energieeffizienz

HWB:
77,9 kWh/(m²*a)
HWB Klasse:
C
fGEE:
1,48
fGEE Klasse:
C
Energieausweisart:
Energiebedarfs-ausweis
Arie Kaikov

Arie Kaikov

Etera Immobilien Consulting KG

Lade...

Fotomix

Böden vollausgestattet Zimmer Zimmer Grundriss Balkon Duschkabine