NEU - Rarität im Grünen. Projektiertes Einfamilienhaus inkl. 77m² Dachterrasse, Küche und beheizbarem Swimmingpool.

Haus zum Kauf in 2231 Strasshof an der Nordbahn - Kaufpreis: 599.900 € / Objektnummer: 817
Ausstattung: Wohnküche / offene Küche Bad Gäste-WC Rollladen Kabel/Satelliten-TV Parkplatz Außenparkplatz Terrasse

Preisinformationen

Kaufpreis:
599.900 €
Vermittlungsprovision:
Ja
Provision:
3% des Kaufpreises zzgl. 20% USt.

Fakten

Objektnummer:
817
Objekttyp:
Haus
Terrasse:
3
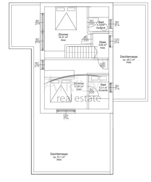
Wohnfläche:
106 m²
Nutzfläche:
136 m²
Grundstücksfläche:
525 m²
Zimmer:
4
Badezimmer:
3
Toilette:
2
Neubau:
Ja
Zustand:
Erstbezug
Verfügbarkeit:
Verfügbar

Beschreibung

Sie wollen Ihr persönliches Traumhaus verwirklichen aber all das ohne nervenaufreibendem Baustress? Dann haben wir genau das Richtige für Sie.

Hier bietet sich der ideale Ort um all Ihre Wohnträume zu erfüllen - Stilvolles Einfamilienhaus mit einer Wohnfläche von ca. 106m² oder 126m², herrlichen Freiflächen mit gesamt: ca. 100 m² und einer Grundstücksfläche von rund 525 m². Das Bauwerk wird erst nach Kauf gemäß Planung errichtet und bietet somit die Möglichkeit, individuelle Wünsche und Anpassungen in der Ausführung zu berücksichtigen.

Das Einfamilienhaus begeistert vor allem aufgrund eines gut durchdachten Raumkonzepts, großzügigen Glasfronten und moderner Niedrigenergiebauweise in Holz - Fertigteilkonstruktion. Zwei Dachterrassen sowie ein beheizbarer Swimmingpool im Garten sorgen für zahlreiche Sonnenstunden und ein exklusives Wohn- und Freizeitambiente mit Ihrer Familie und Freunden. 

Ausstattung & Highlights:
> Vollausgestattete Wohnküche mit Kochinsel
> Großzügige Fensterfronten für viel Tageslicht
> Moderne Kunststofffenster mit Dreifachverglasung
> Fußbodenheizung in allen Wohnräumen inkl. WC und Bad
> Elektrisch gesteuerte Raffstores bzw. Rollläden in den Haupträumen
> Niedertemperaturheizung mittels Wärmepumpe
> Optionale passive Bauwerkskühlung im Sommer 
> Energieeffiziente Niedrigenergiebauweise
> Fertigteilbauweise mit hochwertiger Bauqualität
> Beheizbarer Swimmingpool 8 × 4 m aus Beton mit Folienauskleidung 

Besondere Highlights:
Da das Haus erst nach Kauf errichtet wird, besteht die exklusive Möglichkeit den Grundriss sowie Ausstattung und Materialien in Abstimmung mit dem Bauträger individuell zu adaptieren und gestalten zu können. Die Zahlung des Kaufpreises erfolgt etappenweise laut Baufortschritt, dies bietet Käufern maximale Flexibilität bei der Gestaltung und Zahlung ihres zukünftigen Eigenheims. Ein weiterer Pluspunkt ist, dass sich die 3,5% Grunderwerbssteuer nur auf den Grundstückspreis berechnet und somit bereits eine erhebliche Ersparnis bei den Kaufnebenkosten erzielt wird. 

Kosten im Überblick:
Kaufpreis Eigengrund: € 299.900, -
Kaufpreis Haus schlüsselfertig: 300.000€
Kaufpreis Gesamt inkl. Küche: € 599.900, -
Aufpreis Variante Haus 126m² Nutzfläche: € 50.000, -
zzgl. An-/ und Aufschlussgebühren: € 30.000, -
zzgl. Betriebskosten: ca. € 1,50 / m²

 

Neugierig geworden? Dann nehmen Sie heute noch Kontakt auf und lassen sich bei einem persönlichen Beratungsgespräch von den zahlreichen Vorteilen dieser Immobilie überzeugen.
Für weitere Fragen und Details steht Ihnen Frau Trenk unter +43 677 61510 881 gerne jederzeit zur Verfügung. 
 

Noch nichts gefunden? Wir informieren Sie über geeignete Immobilienangebote noch vor allen anderen. Legen Sie jetzt Ihren individuellen Suchagenten unter folgendem Link an.

Wir schicken Ihnen passende Immobilien exklusiv vorab zu Suchagent anlegen [https://atrium-global-investment.service.immo/registrieren/de] - https://atrium-global-investment.service.immo/registrieren/de

 

Wir möchten Sie informieren, dass ein Provisionsanspruch erst nach Unterzeichnung eines Miet- oder Kaufanbots besteht. Besichtigungen und Auskünfte sind selbstverständlich unverbindlich und kostenlos. Oben angeführte Angaben basieren auf Informationen und Unterlagen des Eigentümers und sind unsererseits ohne Gewähr. Wir dürfen gem. § 5 Maklergesetz darauf hinweisen, dass wir als Doppelmakler tätig sind und ein wirtschaftliches Naheverhältnis zu unserem Auftraggeber besteht.

Noch nichts gefunden? Wir informieren Sie über geeignete Immobilienangebote noch vor allen anderen.
Legen Sie jetzt Ihren individuellen Suchagenten unter folgendem Link an. Wir schicken Ihnen passende Immobilien exklusiv vorab zu.
Suchagent anlegen [https://atrium-global-investment.service.immo/registrieren/de] - https://atrium-global-investment.service.immo/registrieren/de

Hinweis gemäß Energieausweisvorlagegesetz: Ein Energieausweis wurde vom Eigentümer bzw. Verkäufer, nach unserer Aufklärung über die generell geltende Vorlagepflicht, sowie Aufforderung zu seiner Erstellung noch nicht vorgelegt. Daher gilt zumindest eine dem Alter und der Art des Gebäudes entsprechende Gesamtenergieeffizienz als vereinbart. Wir übernehmen keinerlei Gewähr oder Haftung für die tatsächliche Energieeffizienz der angebotenen Immobilie.

Wir weisen darauf hin, dass zwischen dem Vermittler und dem zu vermittelnden Dritten ein familiäres oder wirtschaftliches Naheverhältnis besteht.

Der Vermittler ist als Doppelmakler tätig.

Infrastruktur / Entfernungen

Gesundheit
Arzt <1.000m
Apotheke <2.500m
Klinik <6.000m

Kinder & Schulen
Kindergarten <500m
Schule <1.000m

Nahversorgung
Supermarkt <500m
Bäckerei <2.500m

Sonstige
Bank <1.500m
Geldautomat <1.500m
Post <2.500m
Polizei <5.500m

Verkehr
Bus <500m
Bahnhof <1.000m

Angaben Entfernung Luftlinie / Quelle: OpenStreetMap
Beschreibung weiterlesen

Lage und Verkehrsanbindung

Das Projekt befindet sich in der Gemeinde Strasshof, der Bahnhof befindet sich in unmittelbarer Umgebung
mit einer sehr guten Anbindung nach Wien. Einkaufsmöglichkeiten, Gastronomie und Restaurants für kulinarische
Genüsse gibt ebenfalls im Ort. Kindergarten und Schulen sind bequem erreichbar.

Grundrisse

Lageplan

2231 Strasshof an der Nordbahn | Gänserndorf

Lade...
Jessica Trenk

Jessica Trenk
Verkauf/Vermittlung von Immobilien

Atrium Global Investment

Lade...

Fotomix

Bild 1 Bild 2 Bild 3 Bild 4 Bild 5 Bild 6