NEU - Raum für Ideen – 88,6 m² EG-Wohnung mit 8,15 m² Balkon und guter Energieeffizienz zum individuellen Veredeln in Top-Infrastrukturlage

Wohnung zum Kauf in 8600 Bruck an der Mur - Kaufpreis: 115.000 € / Objektnummer: 3812/360
Ausstattung: Fahrstuhl Parkplatz Außenparkplatz Zentralheizung
AUSSEN

Preisinformationen

Kaufpreis:
115.000 €
Betriebskosten netto:
118,24 € / Monat
Heizkosten netto:
106,80 €
Vermittlungsprovision:
Ja
Provision:
3% des Kaufpreises zzgl. 20% USt.

Fakten

Objektnummer:
3812/360
Objekttyp:
Wohnung
Wohnfläche:
87 m²
Zimmer:
5,5
Baujahr:
1980
Neubau:
Ja
Zustand:
Sanierungsbedürftig
Verfügbarkeit:
Verfügbar

Beschreibung

WOHNEN MIT GESTALTUNGSSPIELRAUM – 88,6 M² ERDGESCHOSSWOHNUNG MIT BALKON IN ATTRAKTIVER LAGE

Diese großzügig geschnittene 88,6 m² Erdgeschosswohnung bietet Ihnen die ideale Grundlage, um Ihre ganz persönlichen Wohnvorstellungen zu verwirklichen. Die Immobilie befindet sich in der beliebten Paulahofsiedlungsstraße und überzeugt durch eine sehr gute Infrastruktur sowie solide energetische Kennzahlen.

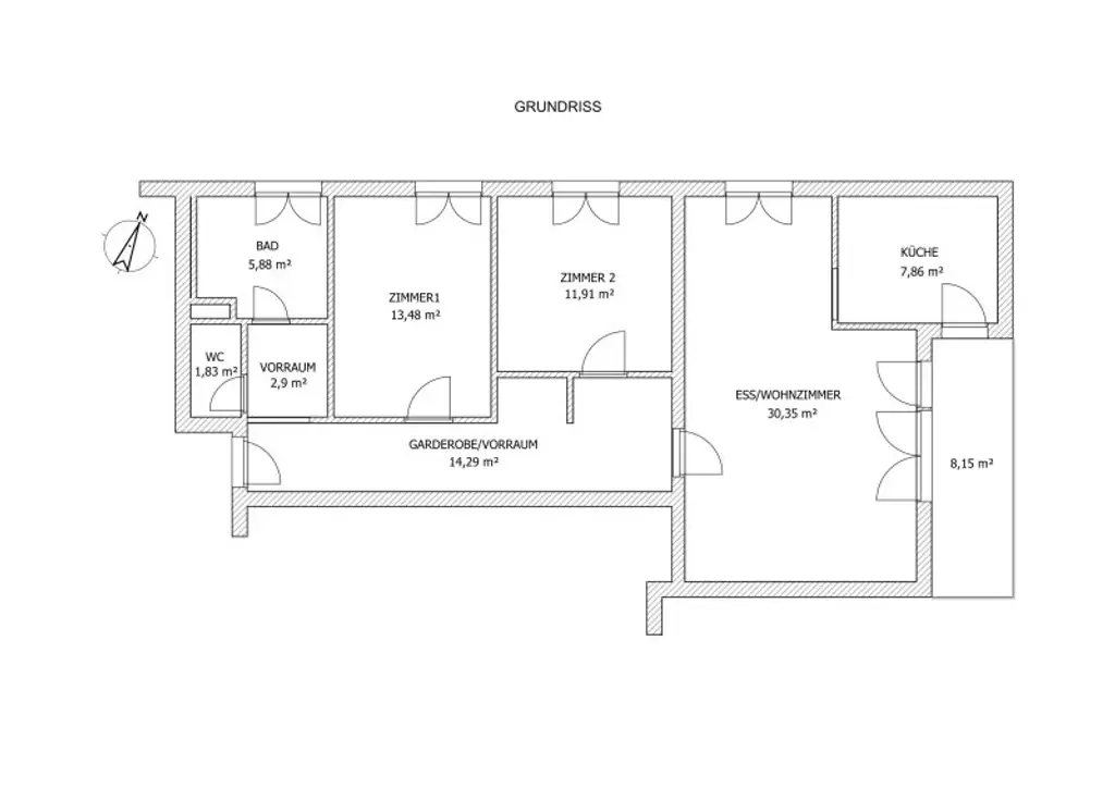
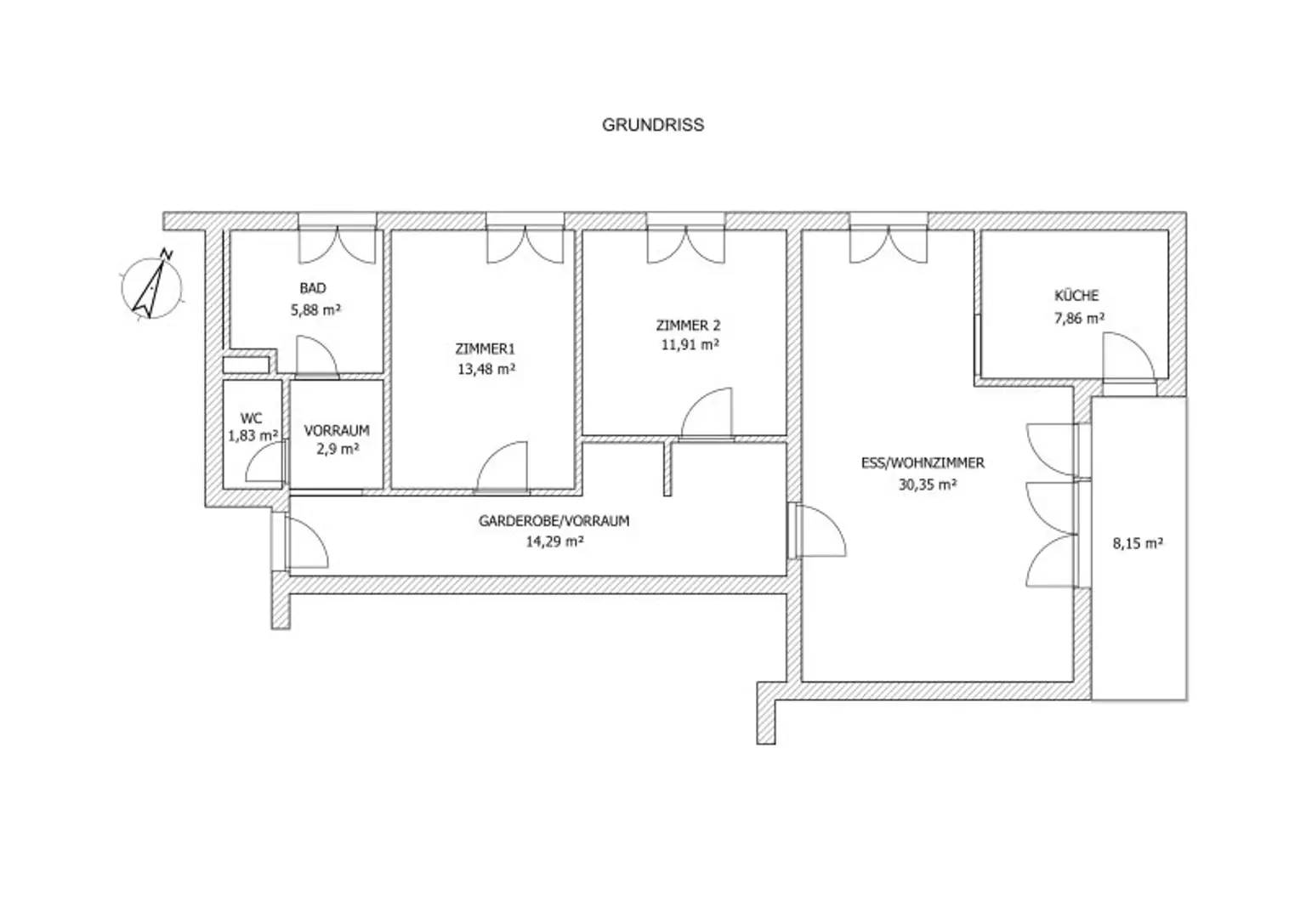
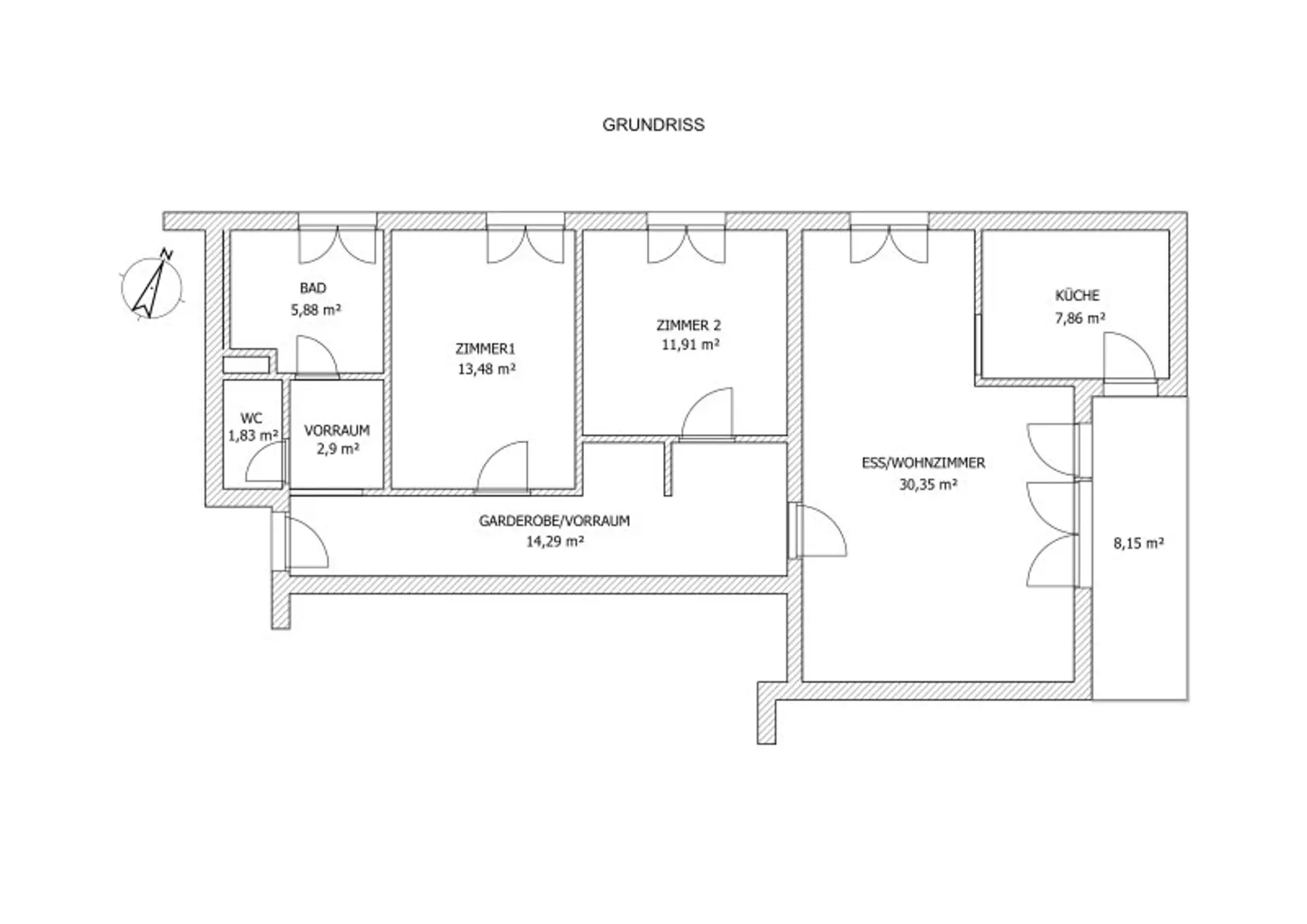
Der durchdachte Grundriss schafft angenehme Raumverhältnisse mit vielseitigen Nutzungsmöglichkeiten – perfekt für Eigennutzer mit Gestaltungswunsch oder Anleger mit Blick auf Wertsteigerungspotenzial.

Ein besonderes Highlight ist der 8,15 m² große Balkon, der zusätzlichen Freiraum bietet und den Wohnbereich harmonisch erweitert.

-------------

SOLIDE BASIS MIT ENERGETISCHEM VORTEIL

Die Wohnung ist renovierungsbedürftig, bietet jedoch bereits eine technisch gute Grundlage:

*
HWB 87,1 kWh/m²a (Klasse C)

*
fGEE 1,33 (Klasse C)

*
3-Scheiben-Isolierverglasung

Gerade die 3-fach verglasten Fenster stellen einen wertvollen Vorteil dar – sowohl in Bezug auf Energieeffizienz als auch auf Schallschutz und Wohnkomfort. Damit konzentrieren sich künftige Modernisierungsmaßnahmen vor allem auf die optische und innenräumliche Gestaltung.

-------------

SEHR GUTE INFRASTRUKTUR – ALLES IN UNMITTELBARER NÄHE

Die Lage in der Paulahofsiedlungsstraße überzeugt durch ihre ausgewogene Kombination aus Wohnruhe und hervorragender Erreichbarkeit.

In unmittelbarer Umgebung befinden sich:

*
Einkaufsmöglichkeiten des täglichen Bedarfs

*
Ärzte und Apotheken

*
Schulen und Kinderbetreuungseinrichtungen

*
Gastronomiebetriebe und Cafés

*
Öffentliche Verkehrsanbindungen

*
Grünflächen und Freizeitmöglichkeiten

Die gute Anbindung ermöglicht eine schnelle Erreichbarkeit des Stadtzentrums sowie wichtiger Verkehrsknotenpunkte – ideal für Berufstätige wie auch Familien.

-------------

FAZIT

Diese Erdgeschosswohnung bietet eine seltene Gelegenheit:
Großzügige Wohnfläche, Balkon, solide Energiewerte und hervorragende Infrastruktur – kombiniert mit attraktivem Entwicklungspotenzial.

Ein ideales Objekt für Käufer, die nicht „von der Stange“ kaufen möchten, sondern Wert auf Individualität und nachhaltige Wertentwicklung legen.

Der Vermittler ist als Doppelmakler tätig.

Infrastruktur / Entfernungen

Gesundheit
Arzt <500m
Apotheke <1.000m
Krankenhaus <2.500m

Kinder & Schulen
Schule <500m
Kindergarten <500m
Universität <5.500m

Nahversorgung
Supermarkt <500m
Bäckerei <500m
Einkaufszentrum <2.000m

Sonstige
Bank <2.000m
Geldautomat <2.000m
Post <2.000m
Polizei <5.000m

Verkehr
Bus <500m
Autobahnanschluss <2.000m
Bahnhof <3.000m
Flughafen <9.000m

Angaben Entfernung Luftlinie / Quelle: OpenStreetMap
Beschreibung weiterlesen

Lage und Verkehrsanbindung

Paulahofsiedlung

Energieeffizienz

HWB:
87,1 kWh/(m²*a)
HWB Klasse:
C
fGEE:
1,33
fGEE Klasse:
C
Energieausweisart:
Energiebedarfs-ausweis
Gültig bis:
30.10.2034

Grundriss

Lageplan

8600 Bruck an der Mur | Bruck-Mürzzuschlag

Lade...
Günter Harrer

Günter Harrer

RE/MAX Smart

Lade...

Fotomix

AUSSEN Bild 2 Bild 3 Bild 4 Bild 5 Bild 6 Bild 7 Bild 8 Bild 9 Bild 10 Bild 11 Bild 12 Bild 13 Bild 14 Bild 15