NEU - Der Start ins Familienglück - Moderne Doppelhaushälfte in herrlicher Grünruhelage

Haus zum Kauf in 3032 Eichgraben - Kaufpreis: 395.000 € / Objektnummer: 7464/291
Ausstattung: Garten

Preisinformationen

Kaufpreis:
395.000 €

Fakten

Objektnummer:
7464/291
Objekttyp:
Haus
Wohnfläche:
84,3 m²
Gartenfläche:
84 m²
Baujahr:
2026
Neubau:
Ja
Zustand:
Erstbezug
Verfügbarkeit:
Verfügbar

Beschreibung

In Grünruhelage in einer Sackgasse direkt an Wiesen und Wälder grenzend entsteht ein exklusives Wohnprojekt mit intelligenter Raumplanung. Die Realisierung umfasst ein Doppelhaus mit Terrassen, Gärten und Stellplätzen. Das Haus bietet neben der geräumigen Wohnküche über eine Terrasse mit herrlicher Aussicht sowie noch 3 weitere Zimmer im Obergeschoss. Die Ausführung erfolgt in ökologischer Holz-Massiv Bauweise. Sie haben die Möglichkeit bei der Gestaltung und Raumaufteilung Ihre eigenen Wünsche einzubringen und Ihr Eigenheim somit ganz auf Ihre Bedürfnisse abzustimmen.

 

Der Einsatz einer Luft-Wärmepumpe zur Heizung und Warmwasseraufbereitung in Kombination mit einer Fußbodenheizung auf allen Ebenen schont die Umwelt, sorgt für ein angenehmes Raumklima und spart Betriebskosten. 

 

 

_Bauweise: _

In ökologisch, nachhaltiger Holz-Massivbauweise finden Sie ein angenehmes Raumklima nach modernsten Qualitätsstandards vor. Massivholzbauweise oder CLT (Cross-laminate timber) - robuste Wände aus dem nachwachsenden Rohstoff Holz bieten Schutz und eine Vielfalt von Gestaltungsmöglichkeiten. Das Material verfügt über eine ausgezeichnete Speicherfähigkeit für Wärme und stellt damit eine perfekte Grundlage für energieeffizientes Wohnen dar. 

Die Errichtung wird durch ein österreichisches Traditionsunternehmen durchgeführt, welches mehr als 25 Jahre Erfahrung im Bereich des Holz-Massivbaus hat und höchste Ansprüche an eine erstklassige Ausführung stellt. Das verarbeitete Holz kommt fast ausschließlich aus dem Waldviertel in Niederösterreich.

Bei Interesse senden wir Ihnen die detaillierte Bau- und Ausstattungsbeschreibung des Objekts. Auf Wunsch kann ein Termin zur Besichtigung eines Musterhauses vereinbart werden.

 

 

_Raumaufteilung:_

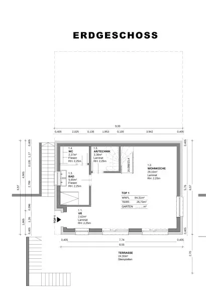
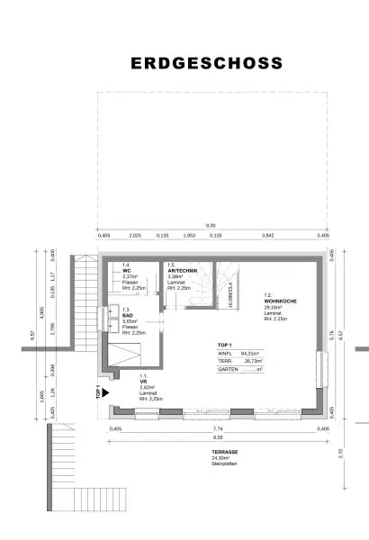
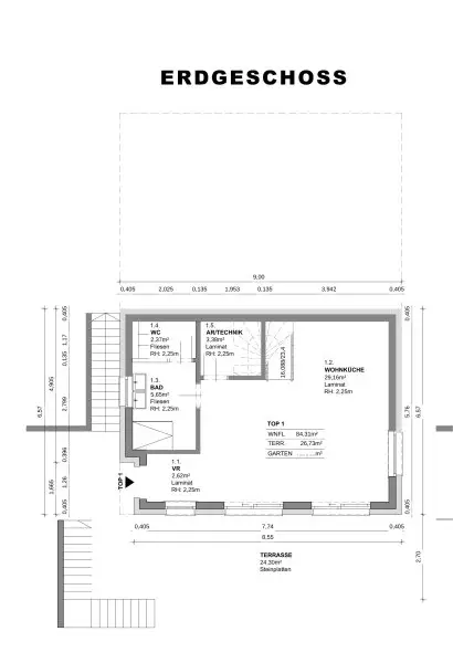
Im Erdgeschoss befindet sich die helle und geräumige Wohnküche mit Ausgang auf die Terrasse, sowie ein voll ausgestattetes Bad mit Dusche. Optional kann auch der Wohn- und Küchenbereich erweitert werden oder ein Arbeitszimmer daraus entstehen.

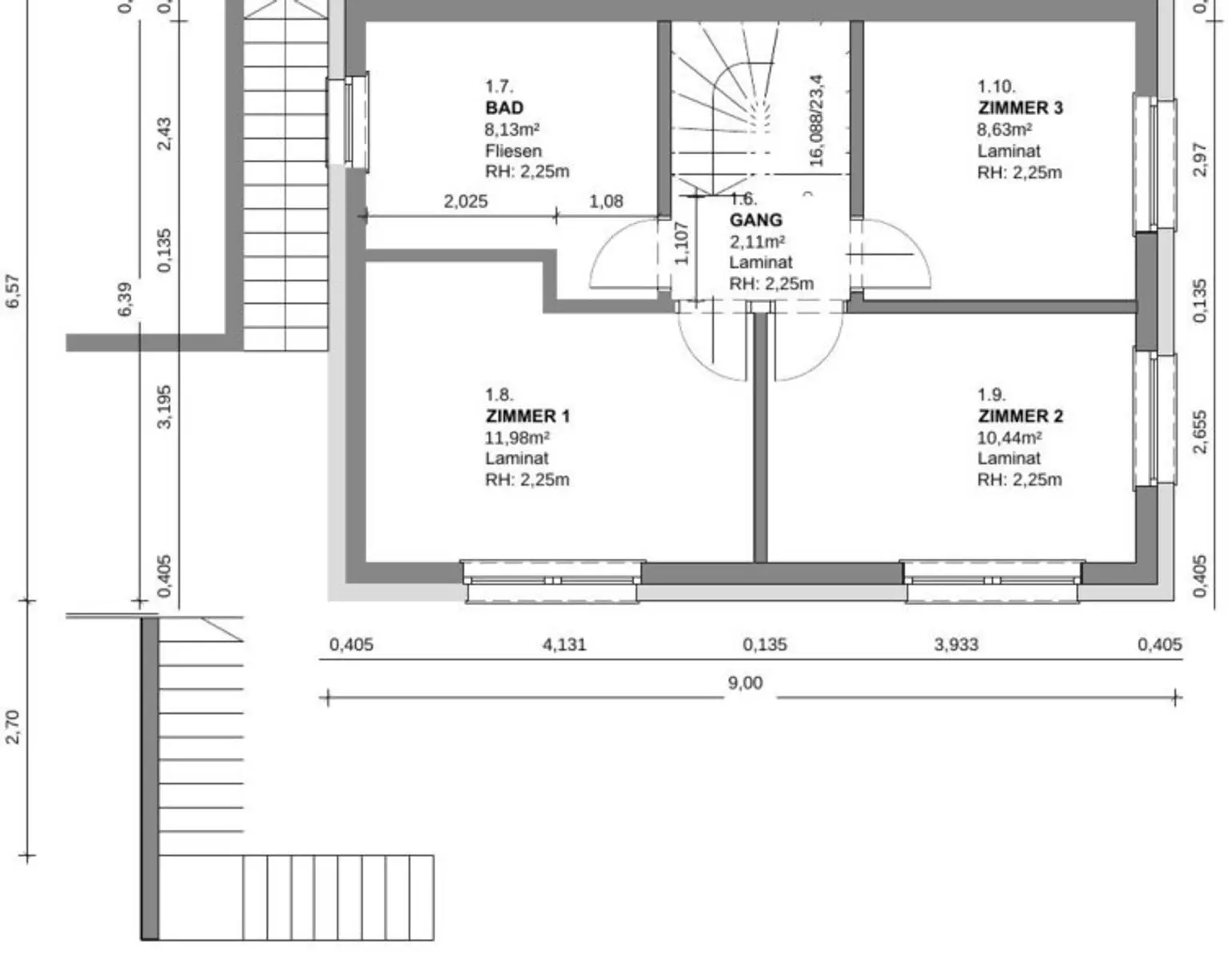
Im Obergeschoss befinden sich 3 Zimmer mit ausreichend Platz zum wohnen für die gesamte Familie. Ein modernes Badezimmer mit Badewanne lässt keine Wünsche offen. Es besteht die Möglichkeit das Bad auch en-suite auszuführen oder eine begehbare Garderobe zurealisieren.

Eine individuelle Anpassung und Gestaltung der Raumaufteilung ist ganz nach ihren Wünschen möglich.

 

 

_Abwicklung:_

Das Projekt wird nach BTVG (Bauträgervertragsgesetz) abgewickelt wodurch Sie die Sicherheit einer treuhändischen Abwicklung der Zahlung haben.

 

 

 

 

_Highlights:_

- Doppelhaushälfte in der beschaulicher Grünruhelage 

- hochwertiger und nachhaltige Holz-Massivbauweise für ein angenehmes Wohnklima

- lokale Ressourcen - Holz aus Niederösterreich

- modernes Raumkonzept - individuelle Gestaltung nach Ihren Wünschen möglich

- sonnige Terrasse in herrlicher Aussichtslage 

- sehr gute Verkehrsanbindung nach Wien / St.Pölten

- energieeffiziente Luft-Wasser-Wärmepumpe

- Fußbodenheizung in allen Räumen

- Kunststoff-Alu-Fenster 3 fach verglast

- Vorbereitung Photovoltaikanlage

- elektrische Rollläden auf Wunsch möglich 

- schlüsselfertige Ausführung auf Wunsch möglich

 

 

 

 

 

 

 

-------------

Bei Interesse, weiteren Fragen oder dem Wunsch nach einer Besichtigung, stehen wir Ihnen gerne und jederzeit zur Verfügung.

 

-------------

Alle Angaben wurden uns direkt vom Eigentümer sowie der Gemeinde Eichgraben zur Verfügung gestellt, eine Haftung für deren Richtig- oder Vollständigkeit können wir daher nicht übernehmen.

Wir weisen darauf hin, dass zwischen dem Vermittler und dem zu vermittelnden Dritten ein familiäres oder wirtschaftliches Naheverhältnis besteht.

Der Vermittler ist als Doppelmakler tätig.

Infrastruktur / Entfernungen

Gesundheit
Arzt <500m
Apotheke <1.000m
Klinik <9.500m

Kinder & Schulen
Schule <1.000m
Kindergarten <1.000m

Nahversorgung
Supermarkt <1.000m
Bäckerei <1.000m

Sonstige
Bank <1.000m
Geldautomat <1.000m
Post <1.000m
Polizei <5.000m

Verkehr
Bus <500m
Autobahnanschluss <2.000m
Bahnhof <1.500m

Angaben Entfernung Luftlinie / Quelle: OpenStreetMap
Beschreibung weiterlesen

Lage und Verkehrsanbindung

Die Marktgemeinde Eichgraben im Bezirk St. Pölten-Land liegt im westlichen Wienerwald – ist verkehrstechnisch bestens angebunden dank Westbahn sowie Autobahnknoten Steinhäusl. Zur Gemeinde zählen sich die Orte Eichgraben, Hinterleiten, Hutten, Ottenheim, Stein und Winkl. Mit weit erstreckten Wäldern, besinnlichen Wasserläufen und einer sanft-hügeligen Landschaft biete sich eine perfekte Umgebung für eine Auszeit zu Hause !

Das Grundstück ist direkt am Waldrand gelegen und bietet eine einzigartige Möglichkeit für Naturliebhaber. Neben der idealen Lage finden Sie eine herrliche Aussicht auf die umliegende Landschaft vor. Genießen Sie jeden Tag den Blick auf grüne Wiesen und Wälder und lassen Sie den Alltag hinter sich.

Grundrisse

Lageplan

3032 Eichgraben | Sankt Pölten (Land)

Lade...
Michael Böhm

Michael Böhm
Geschäftsführung

Estoria Real Estate GmbH

Lade...

Fotomix

Bild 1 Bild 2