NEU - Repräsentative Altbauresidenz mit 4 Zimmern und Entwicklungspotenzial in Toplage

Wohnung zum Kauf in 1090 Wien - Kaufpreis: 599.000 € / Objektnummer: 101/18652
Ausstattung: Etagenheizung
1
2
3
4
5
6
7
8
9
10
Top 8

Preisinformationen

Kaufpreis:
599.000 €
Kaufpreis/m²
5.755,19 €
Betriebskosten netto:
274,51 € / Monat
Vermittlungsprovision:
Ja
Provision:
3%

Fakten

Objektnummer:
101/18652
Objekttyp:
Wohnung
Wohnfläche:
104,08 m²
Zimmer:
4
Badezimmer:
1
Toilette:
1
Stockwerk:
2
Altbau:
Ja
Verfügbarkeit:
Verfügbar

Beschreibung

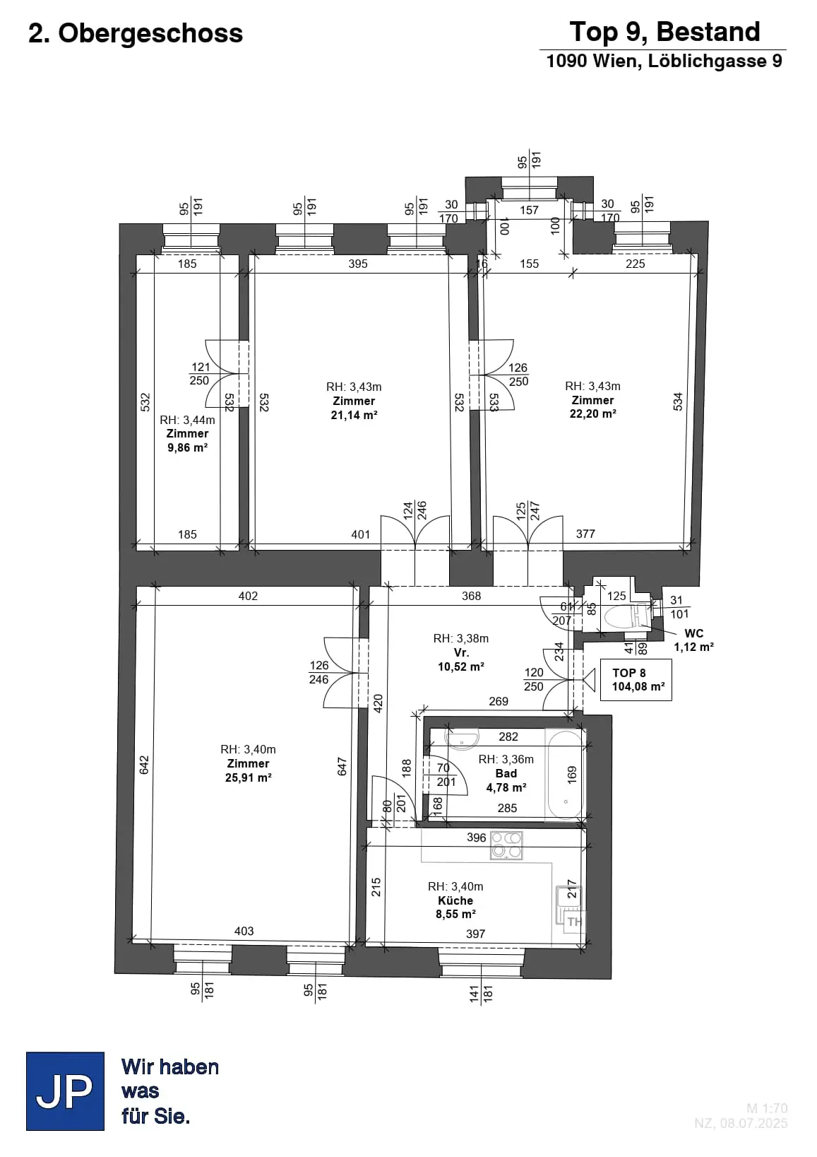
In der Löblichgasse 9 im 2. Obergeschoss gelegen, überzeugt diese weitläufige Altbauwohnung durch ihre Größe und die klassische Raumstruktur. Vier gut proportionierte Zimmer bieten vielseitige Nutzungsmöglichkeiten – ob als großzügige Familienwohnung, Kombination aus Wohnen und Arbeiten oder repräsentativer Wohnsitz. Die hohen Räume von über drei Metern verleihen der Wohnung ein offenes, luftiges Ambiente und unterstreichen den typischen Altbaucharakter. Der Zustand ist insgesamt gut und gepflegt, entspricht jedoch in Teilen nicht mehr einem zeitgemäßen Standard. Insbesondere Küche und Sanitärbereiche bieten Modernisierungspotenzial. Mit überschaubaren Renovierungsmaßnahmen lässt sich die Substanz gezielt aufwerten und an heutige Wohnansprüche anpassen. Eine große, klassische Altbauwohnung mit vier Zimmern und nachhaltigem Entwicklungspotenzial in begehrter Lage des 9. Bezirks. Ihre Highlights auf einen Blick: - Stilvolles Gründerzeithaus mit Altbaucharakter - Teilweise saniert – teilweise mit Entwicklungspotenzial - Top-Lage im 9. Bezirk - U-Bahn und Nahversorgung in unmittelbarer Nähe Lage Die Liegenschaft in der Löblichgasse 9 befindet sich in ausgezeichneter Lage des 9. Wiener Gemeindebezirks (Alsergrund), einem der gefragtesten innerstädtischen Wohnbezirke Wiens. Die Umgebung ist geprägt von repräsentativen Altbauten, gepflegten Wohnhäusern und einer gewachsenen städtischen Infrastruktur. Die Nahversorgung ist umfassend gesichert: Supermärkte, Bäckereien, Apotheken sowie diverse Fachgeschäfte befinden sich in fußläufiger Distanz. Darüber hinaus bietet die nahegelegene Nußdorfer Straße eine Vielzahl an Gastronomiebetrieben, Cafés und Dienstleistungsangeboten. Durch die Nähe zur Innenstadt profitieren Bewohner von einem urbanen Umfeld mit hoher Lebensqualität. Die öffentliche Verkehrsanbindung ist sehr gut. Mehrere Straßenbahnlinien (u. a. 37, 38, 40, 41, 42) sowie Busverbindungen sind rasch erreichbar und gewährleisten eine schnelle Anbindung an das Stadtzentrum sowie an weitere Bezirke. Die U-Bahn-Stationen der Linien U6 (Währinger Straße/Volksoper bzw. Nußdorfer Straße) befinden sich in komfortabler Reichweite. Erholungs- und Freizeitmöglichkeiten sind ebenfalls gegeben: Der nahegelegene Liechtensteinpark sowie der Donaukanal bieten Grünflächen und Möglichkeiten zur Freizeitgestaltung im Freien. Bildungseinrichtungen, darunter Universitäten, Schulen und Kindergärten, befinden sich im direkten Umfeld, was die Lage zusätzlich attraktiv macht. Ansprechpartner Frau Doris Kurzweil || +43 699 17 55 66 16 || dk@jpi.at Herr Iman Ajdari || +43 699 17 55 66 68 || ia@jpi.at Wir weisen darauf hin, dass wir mit dem Abgeber in ständiger Geschäftsbeziehung stehen und schon aus diesem Grund ein wirtschaftliches Naheverhältnis vorliegt.
Beschreibung weiterlesen

Lage und Verkehrsanbindung

Währinger Straße

Energieeffizienz

HWB:
216,5 kWh/(m²*a)
HWB Klasse:
F
fGEE:
2,94
fGEE Klasse:
E

Grundriss

Iman Ajdari

Iman Ajdari

JP Immobilien

Lade...

Fotomix

1 2 3 4 5 6 7 8 9 10