NEU - Repräsentative Bürofläche in der Ziegelofengasse, Nahe Pilgramgasse

Einzelhandel zur Miete in 1050 Wien / Objektnummer: 5735/3881
Ausstattung: Fahrstuhl Klimaanlage Tiefgarage Parkplatz Abstellraum Fernwärme

Preisinformationen

Gesamtmiete (exkl. USt.):
3.679,86 € / Monat
Betriebskosten netto:
479,95 € / Monat
Umsatzsteuer:
735,97 €
Miete/m² netto:
17,00 €
Kaution:
3 Bruttomonatsmieten
Vermittlungsprovision:
Ja
Provision:
3 Bruttomonatsmieten zzgl. 20% USt.

Fakten

Objektnummer:
5735/3881
Objekttyp:
Einzelhandel
Nutzfläche:
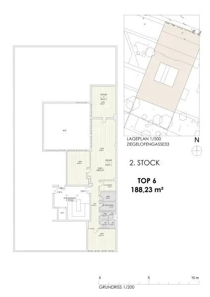
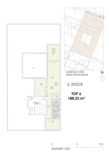
188,23 m²
Zimmer:
4
Toilette:
2
Stockwerk:
2
Neubau:
Ja
Zustand:
Gepflegt
Verfügbarkeit:
Verfügbar

Beschreibung

REPRÄSENTATIVES BÜRO - NEU RENOVIERT - IN DER ZIEGELOFENGASSE IN 1050 WIEN! 

In frequentierter Lage des 5. Wiener Gemeindebezirks gelangt eine großzügige Bürofläche im 2. Stock  mit großen Fensterflächen, grösstenteils zum begrünten Innenhof zur Vermietung. Dieses Objekt befindet sich in der Ziegelofengasse und wurde erst kürzlich neu renoviert und sehr hochwertig ausgestattet.

Das Objekt eignet sich hervorragend für mehrere Büroplätze oder auch als Gemeinschaftsbüro nutzbar. Die Immobilie verfügt über großflächige Räumlichkeiten, die gut als Großraumbüro und/oder kleinere Bürogemeinschaften genutzt werden können. Es ist ausreichend Platz für zirka 12-16 Schreibtischplätze und Besprechungszimmer. Die großen Fenstern und teilweise zusätzlichen Lichtkuppeln sorgen für eine sehr helle und angenehme Atmosphäre. Drei Räume sind in Richtung Innenhof ausgerichtet mit herrlichem Grünblick. Eine Büroräumlichkeit liegt straßenseitig in Richtung Ziegelofengasse. Eine Klimanangle sorgt für Abkühlung an heißen Tagen. Die Behebung der Büroräumlichkeiten erfolgt über Fernwärme.

 

Raumaufteilung:

- großer Vorraum mit Gaderobe
- voll ausgestattete Küche
- 1 großer Raum mit Lichkuppel
- 3 weitere Räume für Büros oder Besprechungszimmer
- 2 Abstellräume/Technikräume
- 2 getrennte Toiletten mit Waschbecken

 

Die Befristungsdauer kann nach individueller Vereinbarung zwischen Vermieter und Mieter festgelegt werden.

Die Beheizung erfolgt über Fernwärme, es wird ein monatliches Heizkosten-Akonto von der Hausverwaltung eingehoben: 188,82 € netto pro Monat
In der hauseigenen Tiefgarage stehen Parkplätze zur Anmietung zur Verfügung: 137,44 € netto pro Stellplatz/pro Monat
(Anmietung ist ein Monat nach Mietbeginn des Büros möglich)
 

Nebenkosten:

* 6 Bruttomonatsmieten Kaution
* 3 Bruttomonatsmieten Provision 
* Vergebührung

 

_Für eine unverbindliche Besichtigung:_

Wir freuen uns Ihnen die Liegenschaft jederzeit persönlich vorzustellen zu dürfen.

Kontaktieren Sie gerne Frau Petra Gepp persönlich unter +43 660 201 89 47 [tel:+436602229825] sowie auch unter gepp@thurner-realitaeten.at. 
Unser Büro erreichen Sie unter office@thurner-realitaeten.at.

———————————————
Auf ein wirtschaftliches Naheverhältnis mit dem Abgeber, bedingt durch regelmäßige Geschäftsbeziehungen, wird hingewiesen.

 

_Maklervereinbarung: _Wir ersuchen um Verständnis, dass wir bei Anfragen zur Objektadresse, bzw. Besichtigungstermin aufgrund neuer gesetzlicher Bestimmungen Unterlagen erst dann zusenden können, wenn Sie vorab bestätigen, dass Sie unser sofortiges Tätigwerden wünschen und über Ihre Rücktrittsrechte aufgeklärt wurden. Sie bekommen nach Ihrer schriftlichen Anfrage mit vollständiger Angabe des Namens, Anschrift und Telefonnummer ein E-Mail, in dem Sie diese Punkte bestätigen müssen.

_Haftungsausschluss:  _Wir weisen darauf hin, dass sämtliche Daten im vorliegenden Angebot sowie die von unserem Büro an Sie weitergegebenen Auskünfte, vom Eigentümer der Immobilie zur Verfügung gestellt wurden. Ebenso sind Informationen von Dritten (z.B. behördliche Informationen) eingeholt worden, auch für diese können wir unsererseits keinerlei Haftung für deren uneingeschränkte Richtigkeit übernehmen.

Wir weisen darauf hin, dass zwischen dem Vermittler und dem zu vermittelnden Dritten ein familiäres oder wirtschaftliches Naheverhältnis besteht.

Infrastruktur / Entfernungen

Gesundheit
Arzt <500m
Apotheke <500m
Klinik <500m
Krankenhaus <500m

Kinder & Schulen
Schule <500m
Kindergarten <500m
Universität <500m
Höhere Schule <500m

Nahversorgung
Supermarkt <500m
Bäckerei <500m
Einkaufszentrum <500m

Sonstige
Geldautomat <500m
Bank <500m
Post <500m
Polizei <500m

Verkehr
Bus <500m
U-Bahn <500m
Straßenbahn <500m
Bahnhof <500m
Autobahnanschluss <3.500m

Angaben Entfernung Luftlinie / Quelle: OpenStreetMap
Beschreibung weiterlesen

Lage und Verkehrsanbindung

Pilgramgasse, Margaretenstraße, Margaretenplatz

Pilgramgasse

Grundriss

Lageplan

1050 Wien | Wien 5., Margareten

Lade...
Petra Gepp

Petra Gepp
Maklerin

Thurner Realitäten GmbH

Lade...

Fotomix

Bild 1 Bild 2 Bild 3 Bild 4 Bild 5 Bild 6 Bild 7 Bild 8 Bild 9 Bild 10 Bild 11 Bild 12 Bild 13 Bild 14 Bild 15 Bild 16 Bild 17 Bild 18 Bild 19 Bild 20 Bild 21 Bild 22