NEU - Repräsentatives Geschäftslokal in Wiens Bestlage – zwischen Stephansplatz und Kärntner Straße

Einzelhandel zur Miete in 1010 Wien / Objektnummer: 4356/256
Ausstattung: Boden Teeküche

Preisinformationen

Gesamtmiete (exkl. USt.):
7.000,00 € / Monat
Umsatzsteuer:
1.400,00 €
Miete/m² netto:
41,18 €
Vermittlungsprovision:
Ja
Provision:
3 Bruttomonatsmieten zzgl. 20% USt.

Fakten

Objektnummer:
4356/256
Objekttyp:
Einzelhandel
Nutzfläche:
170 m²
Toilette:
1
Altbau:
Ja
Zustand:
Gepflegt
Verfügbarkeit:
Verfügbar

Beschreibung

REPRÄSENTATIVES GESCHÄFTSLOKAL IN BESTLAGE NAHE STEPHANSPLATZ – 170 M²

Adresse: Innere Stadt, Wien (genaue Adresse auf Anfrage)

In Wiens exklusivster Innenstadtlage – nur wenige Schritte vom Stephansplatz – steht dieses hochwertige Geschäftslokal mit ca. 170 m² zur Vermietung. Die Fläche befindet sich in einem eleganten Altbau und bietet perfekte Voraussetzungen für Einzelhandel, Showroom, exklusive Dienstleistungen oder Gastronomie Light (Champagner-/Weinbar).

-------------

HIGHLIGHTS

*
Ca. 170 m² Geschäftsfläche auf einer Ebene

*
Top-1A-Lage in unmittelbarer Nähe zum Stephansplatz

*
Repräsentativer Altbau mit hochwertigem Erscheinungsbild

*
Erstklassige Frequenzlage – Touristen, Business & Laufkundschaft

*
Optimale Erreichbarkeit: U1, U3, Buslinien, City-Garagen

-------------

EIGNUNG & NUTZUNGSMÖGLICHKEITEN

Die Fläche eignet sich hervorragend für:

*
Luxus- & Einzelhandel, Boutique, Concept Store

*
Showrooms für Fashion, Interior oder High-End-Produkte

*
Exklusive Dienstleister sowie edle Blumengeschäfte
_(Innenhof kann genutzt werden)_

*
Galerie- oder Studioflächen

*
Ordination / Kanzlei
_(nach entsprechender Adaptierung)_

*
Gastronomie Light, Champagner- oder Weinbar

*
und viele weitere hochwertige Nutzungskonzepte

-------------

KOSTEN

*
Miete (netto): € 7.000 / Monat

*
Kaution: 3 BMM

*
Provision: 3 BMM + 20 % USt.

*
Vergebührung Finanzamt: abhängig von der Mietvertragsbefristung

-------------

KONTAKT

Herr Bruno Franz
📞 +43 664 3553 790
📞 +43 660 245 44 57

-------------

WICHTIGER HINWEIS

+++ OHNE VOLLSTÄNDIGE KONTAKTDATEN (INKL. TELEFONNUMMER) KÖNNEN WIR KEINE UNTERLAGEN VERSENDEN. +++

-------------

 

Hinweis gemäß Energieausweisvorlagegesetz: Ein Energieausweis wurde vom Eigentümer bzw. Verkäufer, nach unserer Aufklärung über die generell geltende Vorlagepflicht, sowie Aufforderung zu seiner Erstellung noch nicht vorgelegt. Daher gilt zumindest eine dem Alter und der Art des Gebäudes entsprechende Gesamtenergieeffizienz als vereinbart. Wir übernehmen keinerlei Gewähr oder Haftung für die tatsächliche Energieeffizienz der angebotenen Immobilie.

Wir weisen darauf hin, dass zwischen dem Vermittler und dem zu vermittelnden Dritten ein familiäres oder wirtschaftliches Naheverhältnis besteht.

Der Vermittler ist als Doppelmakler tätig.

Infrastruktur / Entfernungen

Gesundheit
Arzt 500m
Apotheke 500m
Klinik 1.000m
Krankenhaus 1.000m

Kinder & Schulen
Schule 500m
Kindergarten 1.000m
Universität 500m
Höhere Schule 500m

Nahversorgung
Supermarkt 500m
Bäckerei 500m
Einkaufszentrum 500m

Sonstige
Geldautomat 500m
Bank 500m
Post 500m
Polizei 500m

Verkehr
Bus 500m
U-Bahn 500m
Straßenbahn 500m
Bahnhof 500m
Autobahnanschluss 3.500m

Angaben Entfernung Luftlinie / Quelle: OpenStreetMap
Beschreibung weiterlesen

Lage und Verkehrsanbindung

Topadresse im Herzen der Wiener Innenstadt!
Diese Adress bietet ein außergewöhnlich exklusives Umfeld – nur wenige Schritte vom Stephansplatz, der Kärntner Straße und den wichtigsten kulturellen Hotspots der Stadt. Zwischen historischen Palais, edlen Boutiquen und Spitzen­gastronomie gelegen, verbindet diese Lage Wiener Flair mit urbaner Premium-Lebensqualität.

Mit perfekter Anbindung an U1/U3 und U1/U4 zählt diese Adresse zu den absoluten Prime-Locations des 1. Bezirks.

Stephansdom, Stephansplatz,

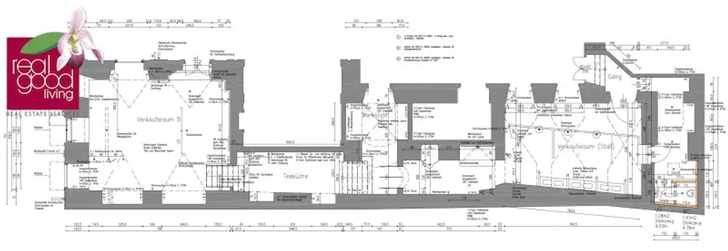
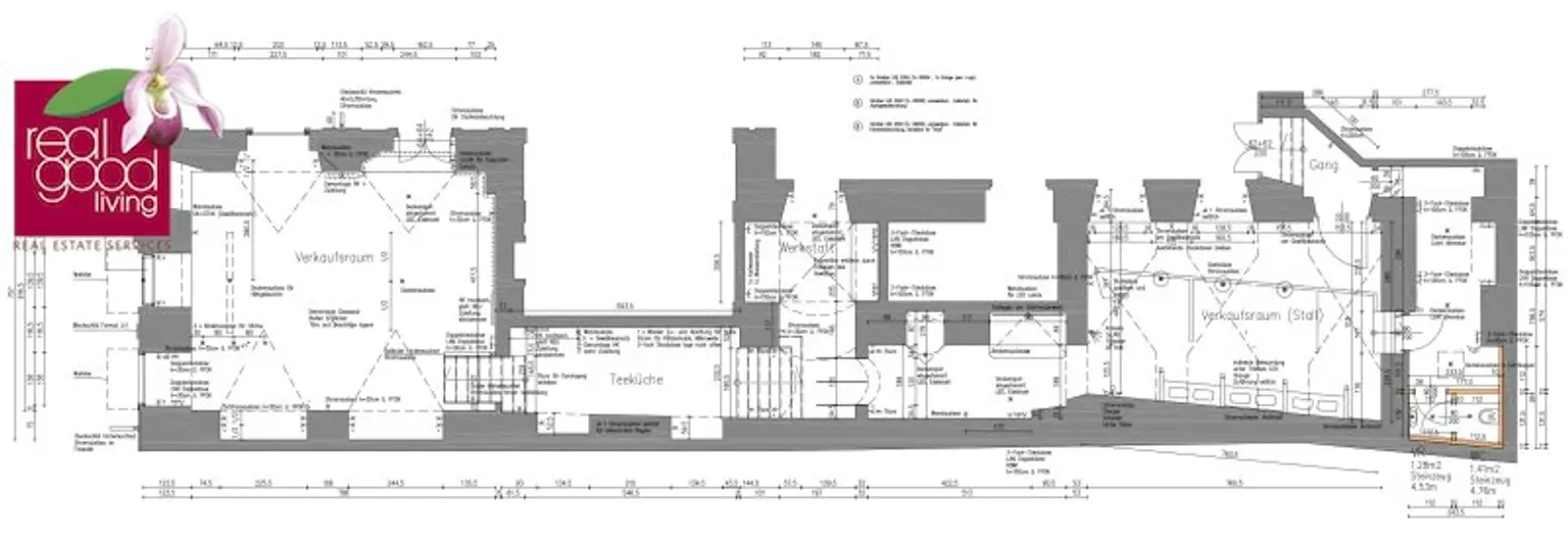
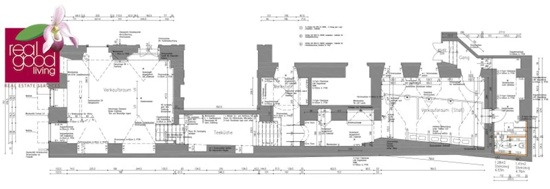
Grundriss

Lageplan

1010 Wien | Wien 1., Innere Stadt

Lade...
Bruno Franz

Bruno Franz

RealGoodLiving Real Estate Services GmbH

Anrufen
Lade...

Fotomix

Bild 1 Bild 2 Bild 3 Bild 4 Bild 5 Bild 6 Bild 7 Bild 8 Bild 9 Bild 10 Bild 11