NEU - ROOF TOP DACHGESCHOSS MAISONETTE-PENTHOUSE MIT BALKON & PERSONENLIFT!

Wohnung zum Kauf in 1100 Wien - Kaufpreis: 429.000 € / Objektnummer: 1718/1745775
Ausstattung: Barrierefrei Rollstuhlgerecht Boden Fahrstuhl Wohnküche / offene Küche Bad Etagenheizung Balkon WG geeignet

Preisinformationen

Kaufpreis:
429.000 €
Vermittlungsprovision:
Ja
Provision:
3% des Kaufpreises zzgl. 20% USt.

Fakten

Objektnummer:
1718/1745775
Objekttyp:
Wohnung
Balkon:
1
Balkonfläche:
6,73 m²
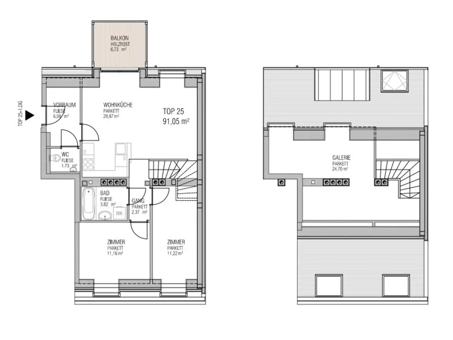
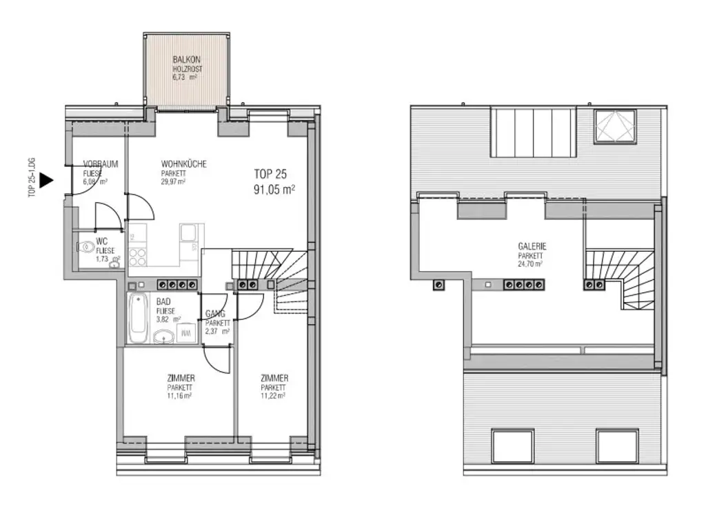
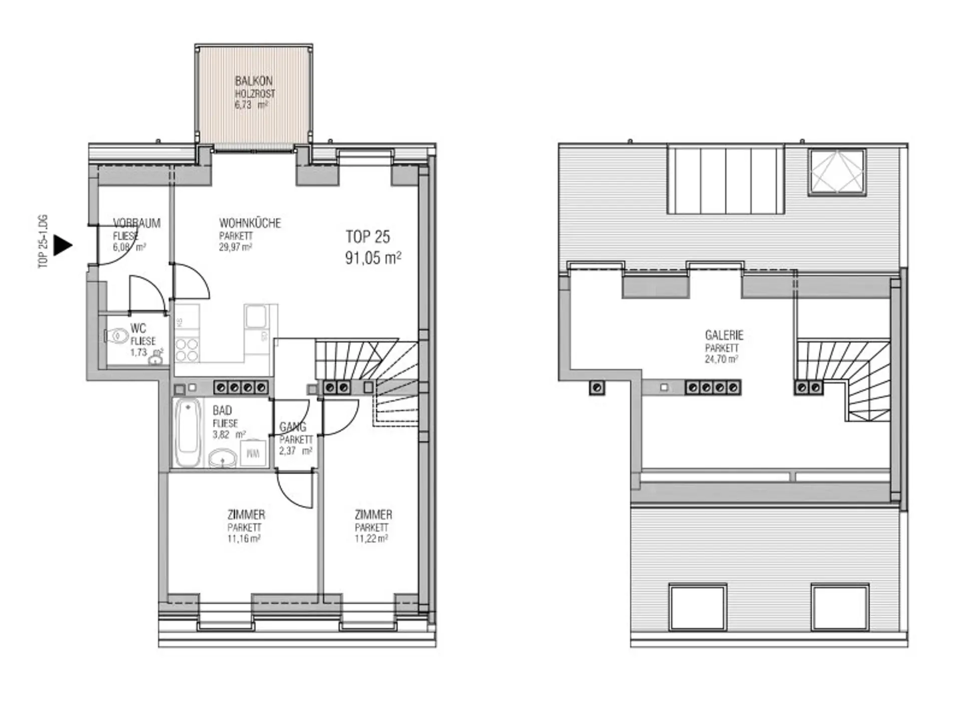
Wohnfläche:
91,05 m²
Nutzfläche:
97,78 m²
Gesamtfläche:
97,78 m²
Zimmer:
4
Badezimmer:
1
Toilette:
1
Neubau:
Ja
Zustand:
Gepflegt
Verfügbarkeit:
Verfügbar

Beschreibung

ROOF TOP DACHGESCHOSS MAISONETTE-PENTHOUSE MIT BALKON & PERSONENLIFT!

 

In ausgezeichneter Lage des 10. Wiener Gemeindebezirks, unweit des Reumannplatzes und der Favoritenstraße, gelangen zwei Dachgeschosswohnungen zum Verkauf, welche eine attraktive Investitionsmöglichkeit für Eigennutzer und Anleger bieten. Das Gebäude ist in einem gepflegten Zustand und verfügt auch über einen Personenlift.

 

HIGHLIGHTS DES OBJEKTES:

*
Klassische Altbauarchitektur mit hohen Decken, großzügigen Grundrissen und historischem Flair

*
Zwei stilvolle Maisonett-Dachgeschosswohnungen

*
Lift im Haus – barrierearme Erreichbarkeit aller Etagen

*
Sofort verfügbar – leerstehend

*
Ideal für Eigennutzung oder Vermietung

 

TOPLAGE MIT OPTIMALER VERKEHRSANBINDUNG:

Die Columbusgasse befindet sich in unmittelbarer Nähe zum Reumannplatz. Der Standort bietet hervorragende öffentliche Anbindungen:

*
U-Bahnlinie U1 (Station Reumannplatz – ca. 4 Gehminuten)

*
Straßenbahnlinien 6, 11, O

*
Buslinien 7A, 65A sowie Nachtbusse N65 & N66

 

So gelangen Sie in wenigen Minuten direkt in die Wiener Innenstadt oder in andere Bezirke. Auch der neue FH Campus Wien ist mit Rad oder Öffis schnell erreichbar – ein wichtiger Standortvorteil für Anleger.

 

STARKE INFRASTRUKTUR:

In fußläufiger Umgebung befinden sich:

*
Zahlreiche Einkaufsmöglichkeiten (z. B. BILLA, SPAR, BIPA)

*
Das Columbuscenter sowie vielfältige Gastronomieangebote

*
Schulen, Kindergärten und der FH Campus

*
Apotheken, Banken, medizinische Einrichtungen

*
Krankenhaus Favoriten

*
Der nahegelegene Arthaberpark sorgt für zusätzliche Lebensqualität

 

ENERGIEAUSWEIS:

Heizwärmebedarf: 121,20 kWh/m²a – Klasse D

 

Eine Investition mit Potenzial

Ob zur Eigennutzung oder Vermietung – das Projekt Columbusgasse bietet stabile Renditechancen in einem lebendigen, gefragten Grätzel Wiens. Investieren Sie jetzt in eine Liegenschaft mit solidem Wertsteigerungspotenzial und hervorragender Lage.

 

Für Fragen bzw. Besichtigungen steht Ihnen Herr Kevin Matyas sehr gerne unter 0664 18 14 655 [tel:06641814655] zur Verfügung.

Wir weisen darauf hin, dass zwischen dem Vermittler und dem zu vermittelnden Dritten ein familiäres oder wirtschaftliches Naheverhältnis besteht.

Der Vermittler ist als Doppelmakler tätig.

Infrastruktur / Entfernungen

Gesundheit
Arzt <500m
Apotheke <500m
Klinik <500m
Krankenhaus <2.000m

Kinder & Schulen
Schule <500m
Kindergarten <500m
Universität <1.000m
Höhere Schule <2.500m

Nahversorgung
Supermarkt <500m
Bäckerei <500m
Einkaufszentrum <1.500m

Sonstige
Geldautomat <500m
Bank <500m
Post <500m
Polizei <1.000m

Verkehr
Bus <500m
U-Bahn <500m
Straßenbahn <500m
Bahnhof <500m
Autobahnanschluss <1.500m

Angaben Entfernung Luftlinie / Quelle: OpenStreetMap
Beschreibung weiterlesen

Lage und Verkehrsanbindung

Nähe U1 Reumannplatz, Strassenbahnlinie 6, 11 und O, sowie die Buslinie 7A, 65A, N6, N65, N66

Energieeffizienz

HWB:
121,2 kWh/(m²*a)
HWB Klasse:
B
fGEE:
1,87
fGEE Klasse:
D
Energieausweisart:
Energiebedarfs-ausweis
Gültig bis:
20.11.2034

Grundriss

Lageplan

1100 Wien | Wien 10., Favoriten

Lade...
Kevin Matyas

Kevin Matyas

RIMMO Prime Vermittlungs GmbH

Lade...

Fotomix

Bild 1 Bild 2 Bild 3 Bild 4 Bild 5 Bild 6 Bild 7 Bild 8 Bild 9 Bild 10