NEU - Ruhe, Grünlage und perfekte Anbindung – moderne Doppelhaushälfte auf Eigengrund nahe U2 Donauspital

Haus zum Kauf in 1220 Wien - Kaufpreis: 1.029.000 € / Objektnummer: 6653/885
Ausstattung: Boden Wohnküche / offene Küche Bad Gäste-WC Kabel/Satelliten-TV Klimaanlage Alarmanlage Parkplatz Außenparkplatz Abstellraum Fußbodenheizung Terrasse Garten
Hausansicht
Wohnküche
Wohnküche
Garten
Terrasse
Garten mit Terrasse
Ansicht
Wohnküche
Wohnküche
Küche
Eingangsbereich
Vorraum
Abstellraum
Stiegenaufgang
Zimmer 1 OG
Zimmer 1 OG
Badezimmer 1 OG
Zimmer 2 OG
Blick Schlafzimmer 2 OG
Zimmer 2 OG
Badewanne Zimmer 2 OG
Ensuite - Badezimmer 1 OG
Zimmer 3 OG
Zimmer 3 OG
Flur OG
Master Bedroom DG
Master Bedroom DG
Badezimmer DG
Blick Terrasse
Terrasse
Terrasse DG
Keller
Keller
Keller
Keller
Heizraum/ Technikraum
Heizraum/ Technikraum
Stellplatz vor dem Haus
Ansicht
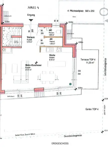
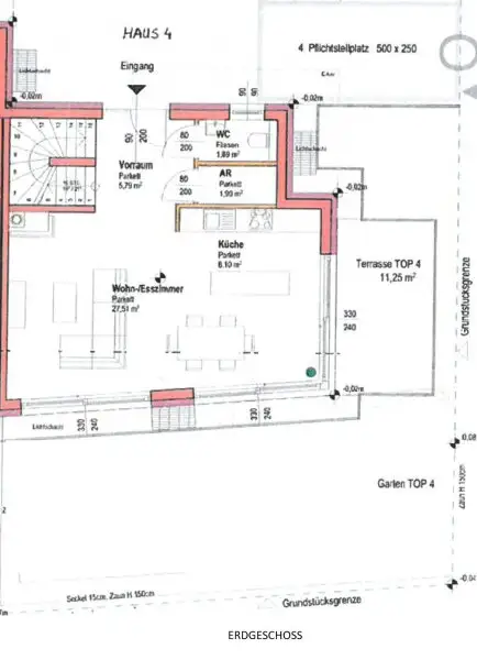
Erdgeschoß
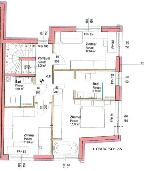
1. Obergeschoß
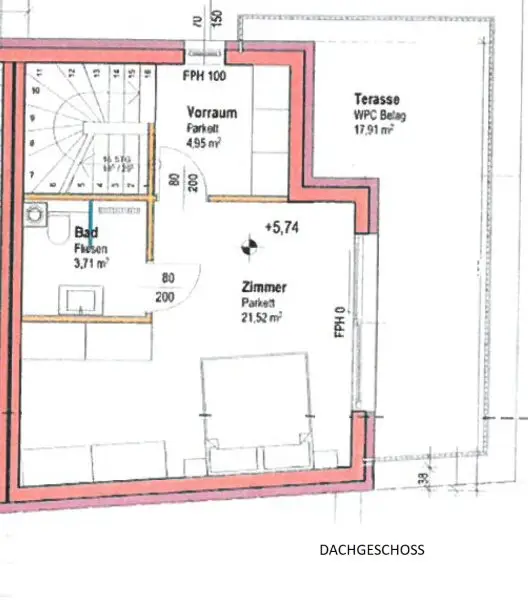
Dachgeschoß
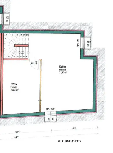
Keller

Preisinformationen

Kaufpreis:
1.029.000 €
Betriebskosten netto:
143,79 € / Monat
Heizkosten netto:
39,82 €
Vermittlungsprovision:
Ja
Provision:
3% des Kaufpreises zzgl. 20% USt.

Fakten

Objektnummer:
6653/885
Objekttyp:
Haus
Terrasse:
2
Keller Fläche:
46,33 m²
Wohnfläche:
131,51 m²
Nutzfläche:
177,84 m²
Gartenfläche:
68,59 m²
Zimmer:
5
Badezimmer:
3
Toilette:
4
Baujahr:
2020
Neubau:
Ja
Zustand:
Gepflegt
Verfügbarkeit:
Verfügbar

Beschreibung

Unweit des Oberen Mühlwassers, in absoluter Ruhelage und grüner Umgebung gelegen, gleichzeitig jedoch mit hervorragender Anbindung und in kürzester Zeit bei der U2-Station Donauspital, gelangt diese wunderbare Doppelhaushälfte auf Eigengrund zum Verkauf.

Das Haus wurde 2020 errichtet, seither laufend gehegt und gepflegt und befindet sich in außerordentlich gutem Zustand.

Auf rund 131 m² Wohnfläche, ergänzt durch ca. 46 m² Keller, etwa 70 m² Garten sowie eine ca. 31 m² große Terrassenfläche, erwartet Sie ein durchdachtes und hochwertiges Wohnkonzept. Besonders hervorzuheben sind die ruhige, grüne Lage sowie die süd-östliche Ausrichtung des Hauses. Ein im Kaufpreis bereits inkludierter Einfahrtsstellplatz, direkt vor der Haustüre, rundet das Angebot zusätzlich ab.

Bereits beim Betreten überzeugt die gelungene Raumaufteilung. Auf der ersten Wohnebene befindet sich der rund 36 m² große Wohnbereich mit ausgestatteter Küche. Große Glasfronten sorgen für ein helles, freundliches Ambiente und eröffnen den Blick in den liebevoll angelegten, süd- östlichen Garten mit Terrasse. Das umliegende Grün schafft ein hohes Maß an Privatsphäre und Wohnqualität. Der bereits installierte Schwedenofen sorgt zusätzlich für eine besonders heimelige Atmosphäre. Ein ca. 2 m² großer Abstellraum mit bereits installierten Regalen, eine Gästetoilette sowie der Vorraum komplettieren diese Ebene.

Über eine Stiege gelangt man in den ersten Stock des Hauses. Hier befinden sich drei separat begehbare Zimmer sowie zwei Badezimmer. Das Gästebad ist ca. 4 m² groß und mit einer bodengleichen Dusche sowie einer Toilette ausgestattet. Zwei der Zimmer verfügen jeweils über rund 12 m², das größte Zimmer misst knapp 17 m² und bietet ein En-Suite-Bad mit bodengleicher Dusche und Toilette. Zusätzlich steht ein weiterer Bereich mit integrierter Badewanne zur Verfügung.

Im obersten Stockwerk befindet sich das Master Bedroom mit rund 20 m². Der vordere Bereich bietet Platz für einen möglichen Schrankraum. Ebenso verfügt diese Ebene über ein weiteres En-Suite-Bad mit bodengleicher Dusche und Toilette. Von hier aus gelangen Sie direkt auf die rund 18 m² große, östlich ausgerichtete Terrasse, die mit einem herrlichen Weit- und Grünblick begeistert.

Abgerundet wird dieses attraktive Immobilienangebot durch den rund 46 m² großen, trockenen Keller, der vielfältige Nutzungsmöglichkeiten eröffnet – ob als Fitnessraum, Hobbyraum, Spielzimmer oder zusätzlicher Stauraum. Ein separat abgetrennter Technik-/ Heizraum beherbergt unter anderem auch die Anschlüsse für Waschmaschine und Trockner.

Auch technisch und qualitativ überzeugt die Liegenschaft: Eine bereits installierte Photovoltaikanlage speist Eigenstrom in das Haus ein, zusätzlich ist eine Alarmanlage vorhanden.

Diese Immobilie vereint modernen Wohnkomfort, hochwertige Ausstattung, durchdachte Raumaufteilung und eine besondere Lage auf Eigengrund – ein seltenes und besonders attraktives Angebot.

Aufteilung:
EG:
- ca. 36m² große Wohnküche ausgestatteter Küche und Schwedenofen
- separate Toilette
- Abstellraum
- ca. 70m² Garten plus Terrasse
- Stellplatz vor dem Haus
OG:
- Zimmer
- Zimmer
- Gästebadzimmer mit Dusche und Toilette
- Zimmer mit Badewanne und mit Ensuite- Badezimmer mit Dusche und Toilette
DG:
- Master Bedroom mit Ensuite - Badezimmer mit Dusche und Toilette
- Terrasse
UG:
- Kellerraum
- Heiz-/ Technikraum
 

Der Vermittler ist als Doppelmakler tätig.

Infrastruktur / Entfernungen

Gesundheit
Arzt <1.000m
Apotheke <1.000m
Klinik <1.000m
Krankenhaus <1.000m

Kinder & Schulen
Schule <500m
Kindergarten <500m
Universität <3.000m
Höhere Schule <3.500m

Nahversorgung
Supermarkt <1.000m
Bäckerei <1.000m
Einkaufszentrum <3.000m

Sonstige
Geldautomat <1.000m
Bank <1.000m
Post <1.000m
Polizei <1.000m

Verkehr
Bus <500m
U-Bahn <1.000m
Straßenbahn <1.000m
Bahnhof <1.000m
Autobahnanschluss <2.000m

Angaben Entfernung Luftlinie / Quelle: OpenStreetMap
Beschreibung weiterlesen

Lage und Verkehrsanbindung

Oberes Mühlwasser, Klinik Donaustadt

Energieeffizienz

HWB:
40 kWh/(m²*a)
HWB Klasse:
B
fGEE:
0,73
fGEE Klasse:
A
Energieausweisart:
Energiebedarfs-ausweis
Gültig bis:
29.10.2018

Grundrisse

Lageplan

1220 Wien | Wien 22., Donaustadt

Lade...
Laurenz Schnitzer

Laurenz Schnitzer
Geschäftsführender Gesellschafter

CONFIDO Immobilien GmbH

Lade...

Fotomix

Hausansicht Wohnküche Wohnküche Garten Terrasse Garten mit Terrasse Ansicht Wohnküche Wohnküche Küche Eingangsbereich Vorraum Abstellraum Stiegenaufgang Zimmer 1 OG Zimmer 1 OG Badezimmer 1 OG Zimmer 2 OG Blick Schlafzimmer 2 OG Zimmer 2 OG Badewanne Zimmer 2 OG Ensuite - Badezimmer 1 OG Zimmer 3 OG Zimmer 3 OG Flur OG Master Bedroom DG Master Bedroom DG Badezimmer DG Blick Terrasse Terrasse Terrasse DG Keller Keller Keller Keller Heizraum/ Technikraum Heizraum/ Technikraum Stellplatz vor dem Haus Ansicht