NEU - Ruhige Garconniere in der Pfarrgasse 19 / Top 3

Wohnung zur Miete in 4600 Wels - Gesamtmiete: 625,77 € / Objektnummer: 1939/215104
Ausstattung: Boden Kabel/Satelliten-TV Abstellraum Zentralheizung
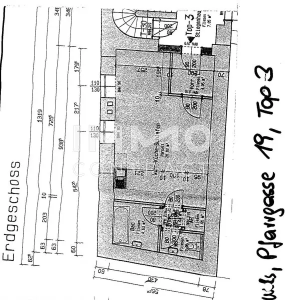
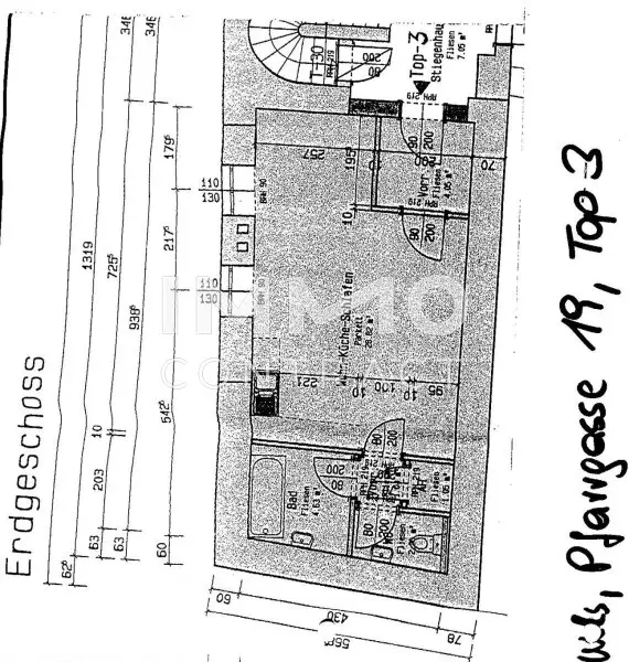
Pfarrgasse 19 Top 3

Preisinformationen

Gesamtmiete:
625,77 € / Monat
Betriebskosten netto:
155,43 € / Monat
Heizkosten netto:
80,20 €
Umsatzsteuer:
48,14 €
Kaution:
1.652,00 €
Provision:
Gemäß Erstauftraggeberprinzip bezahlt der Abgeber die Provision.

Fakten

Objektnummer:
1939/215104
Objekttyp:
Wohnung
Wohnfläche:
41,79 m²
Zimmer:
1
Baujahr:
1996
Altbau:
Ja
Zustand:
Gepflegt
Verfügbarkeit:
Verfügbar

Beschreibung

Diese ruhige Garconniere liegt im Erdgeschoss (hofseitig) einer kleinen Wohnanlage. Das Objekt ist mit Parkettböden und einer ablösefreien Einbauküche ausgestattet.

Raumaufteilung: Vorraum, Wohn-Ess-Schlafraum mit Küche, Abstellraum, Bad, WC.

Die Wohnung ist zentral gelegen, Einkaufsmöglichkeiten und beste Infrastruktur befinden sich in unmittelbarer Nähe.
Die Küche ist im Mietpreis inkludiert.

Ein allgemeiner Fahrrad-Raum steht allen Mietern zur Verfügung.

Der Immobilienmakler erklärt, dass er – entgegen dem in der Immobilienwirtschaft üblichen Geschäftsgebrauch des Doppelmaklers – einseitig nur für den Vermieter tätig ist.

Infrastruktur / Entfernungen

Gesundheit
Arzt <500m
Apotheke <500m
Klinik <1.000m
Krankenhaus <2.000m

Kinder & Schulen
Schule <500m
Kindergarten <500m
Universität <500m

Nahversorgung
Supermarkt <500m
Bäckerei <500m
Einkaufszentrum <3.000m

Sonstige
Bank <500m
Geldautomat <500m
Post <500m
Polizei <500m

Verkehr
Bus <500m
Autobahnanschluss <3.000m
Bahnhof <1.000m
Flughafen <3.000m

Angaben Entfernung Luftlinie / Quelle: OpenStreetMap
Beschreibung weiterlesen

Lage und Verkehrsanbindung

Welser Bestlage / Tschudenplatz

Energieeffizienz

HWB:
119,5 kWh/(m²*a)
HWB Klasse:
D
fGEE:
1,86
fGEE Klasse:
D
Energieausweisart:
Energiebedarfs-ausweis
Gültig bis:
05.10.2031

Grundriss

Lageplan

4600 Wels | Wels (Stadt)

Lade...
Anna Valentina Blecha

Anna Valentina Blecha
Immobilienfachberaterin

IMMOcontract Immobilien Vermittlung GmbH

Lade...

Fotomix

Bild 1 Bild 2 Bild 3 Bild 4 Bild 5 Bild 6 Bild 7 Bild 8