Ruhiger 2-Zimmer-Wohntraum mit Eigengarten: Wohnen am Leberberg!

Wohnung zur Miete in 1110 Wien - Gesamtmiete: 964,99 € / Objektnummer: 91515
Ausstattung: Boden Fahrstuhl Wohnküche / offene Küche Bad Fahrradraum Fußbodenheizung Terrasse Garten

Preisinformationen

Gesamtmiete:
964,99 € / Monat
Betriebskosten netto:
90,93 € / Monat
Umsatzsteuer:
87,72 €
Kaution:
2.894,97 €
Provision:
Gemäß Erstauftraggeberprinzip bezahlt der Abgeber die Provision.

Fakten

Objektnummer:
91515
Objekttyp:
Wohnung
Terrasse:
1
Wohnfläche:
43,37 m²
Gartenfläche:
19,25 m²
Zimmer:
2
Badezimmer:
1
Toilette:
1
Neubau:
Ja
Zustand:
Gepflegt
Verfügbarkeit:
Verfügbar

Beschreibung

Ruhiger 2-Zimmer-Wohntraum mit Eigengarten: Wohnen am Leberberg!

Am Rosa-Jochmann-Ring wohnen Sie in einem der angenehmsten Teile Simmerings – am Leberberg, wo man die Stadt noch spürt, aber nicht hört. Hier starten Sie den Tag mit Blick ins Grüne und sind trotzdem in kurzer Zeit mitten in Wien. Das Viertel rund um den Leberberg steht für Ruhe, Weite und viel Freiraum. Ideal für Spaziergänge, Joggingrunden oder einfach ein paar Minuten Durchatmen nach der Arbeit. Bus und Straßenbahn quasi vor der Tür, die U3 Simmering ist rasch erreichbar – damit sind Sie flott am Stephansplatz, am Hauptbahnhof oder überall dort, wo Wien passiert. Auch Autofahrer freuen sich über die schnelle Anbindung an Hauptverkehrsachsen und die Ostautobahn.
Alles da, was den Alltag leicht macht: Supermärkte, Drogerien, Apotheke, Ärzte, Schulen und Kindergärten in direkter Nähe. Und wenn’s mal mehr sein darf: das HUMA für Shopping, Gastro und Besorgungen ist gleich ums Eck.
Eine moderne, durchdacht geplante Wohnanlage mit energieeffizientem Standard und privaten Außenflächen bei jeder Wohnung – Balkon, Loggia, Terrasse oder Garten schaffen ein echtes “Zuhause-Gefühl.

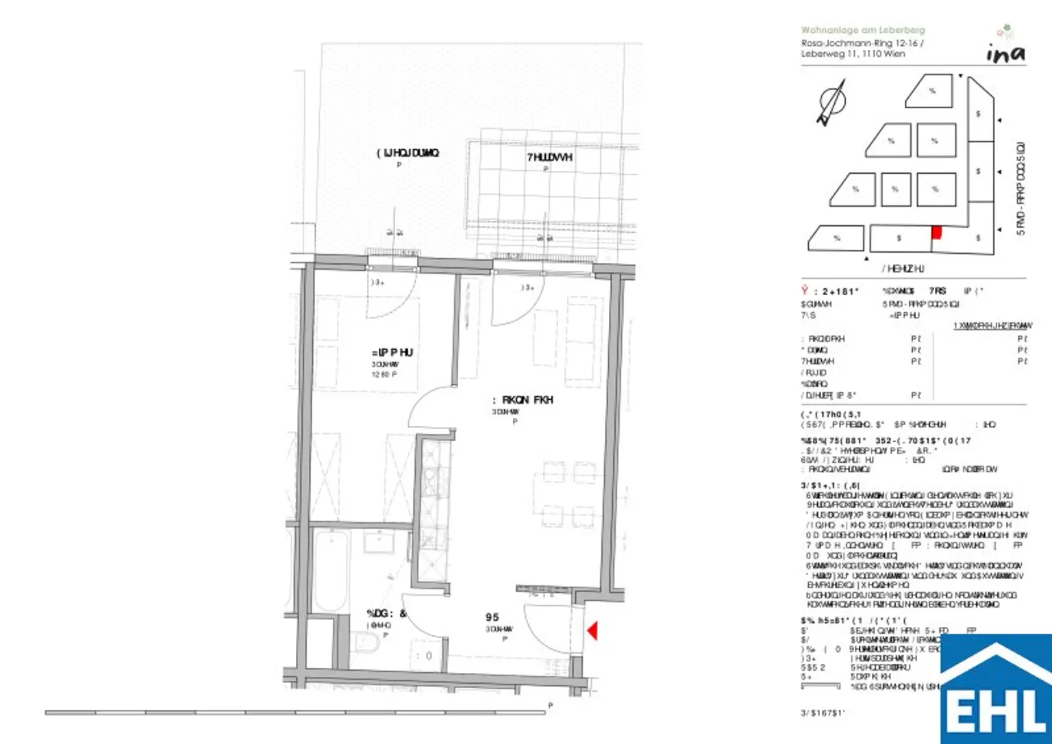
Die Wohnung selbst befindet sich im Erdgeschoss und gliedert sich in eine geräumige Wohnküche mit vollausgestatteter Einbauküche, ein Schlafzimmer mit Schrankabteil, ein Badezimmer mit Badewanne, Waschmaschinenanschluss und WC, sowie einen Vorraum. Der dazugehörige Eigengarten mit Terrasse lädt zum gemütlichen Verweilen im Freien ein und rundet das Wohnerlebnis perfekt ab.

Ausstattung

* vollausgestattete Küche
* Badezimmer mit Badewanne, Waschmaschinenanschluss und WC
* Parkettböden in den Wohnräumen 
* Fliesen in den Sanitärräumen
* Kellerabteil vorhanden

öffentliche Verkehrsanbindung

* Buslinien 71A, 71B
* Straßenbahnlinien 11, 71

Befristung
5 Jahre Befristung, 1 Jahr Kündigungsverzicht, 3 Monate Kündigungsfrist

Nebenkosten
3BMM Kaution, Vertragserrichtungsgebühr

 

Hinweis gemäß Energieausweisvorlagegesetz: Ein Energieausweis wurde vom Eigentümer bzw. Verkäufer, nach unserer Aufklärung über die generell geltende Vorlagepflicht, sowie Aufforderung zu seiner Erstellung noch nicht vorgelegt. Daher gilt zumindest eine dem Alter und der Art des Gebäudes entsprechende Gesamtenergieeffizienz als vereinbart. Wir übernehmen keinerlei Gewähr oder Haftung für die tatsächliche Energieeffizienz der angebotenen Immobilie.

Wir weisen darauf hin, dass zwischen dem Vermittler und dem zu vermittelnden Dritten ein familiäres oder wirtschaftliches Naheverhältnis besteht.

Der Immobilienmakler erklärt, dass er – entgegen dem in der Immobilienwirtschaft üblichen Geschäftsgebrauch des Doppelmaklers – einseitig nur für den Vermieter tätig ist.

Infrastruktur / Entfernungen

Gesundheit
Arzt 500m
Apotheke 750m
Klinik 1.750m
Krankenhaus 6.500m

Kinder & Schulen
Schule 500m
Kindergarten 500m
Universität 5.500m
Höhere Schule 5.750m

Nahversorgung
Supermarkt 750m
Bäckerei 500m
Einkaufszentrum 1.000m

Sonstige
Geldautomat 750m
Bank 750m
Post 750m
Polizei 1.000m

Verkehr
Bus 250m
U-Bahn 3.250m
Straßenbahn 250m
Bahnhof 1.000m
Autobahnanschluss 2.000m
Flughafen 9.250m

Angaben Entfernung Luftlinie / Quelle: OpenStreetMap
Beschreibung weiterlesen

Grundriss

Lageplan

1110 Wien | Wien 11., Simmering

Lade...
Andreas Minarik

Andreas Minarik
Immobilienberater

EHL Wohnen GmbH

Anrufen
Lade...

Fotomix

Bild 1 Bild 2 Bild 3 Bild 4 Bild 5 Bild 6 Bild 7 Bild 8 Bild 9 Bild 10