NEU - SANIERT I Nähe U3 Hütteldorfer Straße - S45 - Wien Penzing Bahnhof I 3-Zimmer mit separater Küche

Wohnung zur Miete in 1140 Wien - Gesamtmiete: 871,00 € / Objektnummer: 56549
Ausstattung: Boden Bad Fahrradraum Etagenheizung

Preisinformationen

Gesamtmiete:
871,00 € / Monat
Betriebskosten netto:
194,04 € / Monat
Umsatzsteuer:
79,09 €
Kaution:
3.400 EUR
Provision:
Gemäß Erstauftraggeberprinzip bezahlt der Abgeber die Provision.

Fakten

Objektnummer:
56549
Objekttyp:
Wohnung
Wohnfläche:
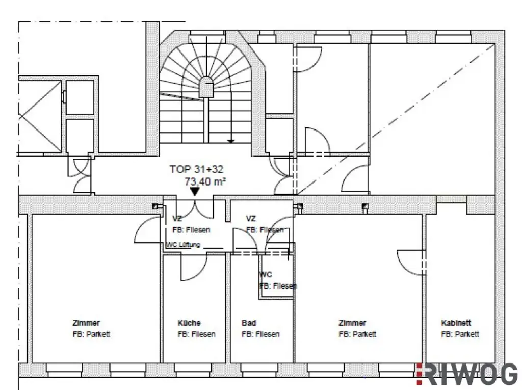
73,4 m²
Zimmer:
3
Badezimmer:
1
Toilette:
1
Stockwerk:
3
Altbau:
Ja
Zustand:
Vollsaniert
Verfügbarkeit:
Verfügbar

Beschreibung

2-Zimmer und 1 Kabinett *** separate Küche *** 3. Stockwerk *** an der Hütteldorfer Straße *** unbefristetes Mietverhältnis

Ideal für Pärchen und Singles

 

Hardfacts

Erstbezug nach Sanierung 

3-Zimmer (2 Zimmer zzgl 1 Kabinett)

separate Küche - (keine Küchenzeile vorhanden)

450 Euro Unterstützung da keine Küchenzeile vorhanden

ca 73m² Wohnfläche

Gas-Etagenheizung

separates WC

3. Stockwerk (ohne Lift)

Kellerabteil vorhanden

Nähe: Hütteldorfer Straße, Linzer Straße, Schmelz, Breitenseer Straße

Öffentliche Anbindung: U3 Hütteldorfer Straße / Johnstraße, S 45 Breitensee, Wien Penzing Bahnhof, Straßenbahnline 49, Buslinie 51A

Befristung: unbefristetes Mietverhältnis ( 2 Jahre Kündigungsverzicht)

Verfügbarkeit: ab sofort 

 

Wohnung

Die Wohnung liegt im 3. Stockwerk eines Wohngebäudes in einer Seitengasse der Hütteldorfer Straße. 

Aufteilung: Zimmer 1, Zimmer 2, Kabinett, Küche, Badezimmer, WC, Vorzimmer, Kellerabteil 

 

Die Küche verfügt über Anschlüsse für einen E-Herd und eine Spüle

 

Beheizt wird das Objekt mittels Gas-Etagenheizung.

 

Die Wohnung wird unbefristet vermietet, mit einem 2 jährigen Kündigungsverzicht.  

 

Kostenaufschlüsselung

Bruttomonatsmiete inkl 10% USt = 871 Euro

 

Kaution = 3.400 Euro

 

 

Haben wir Ihr Interesse geweckt ?

Dann vereinbaren Sie einen Besichtigungstermin. 

 

Alle Angaben haben wir vom Eigentümer erhalten. Diese sind daher ohne Gewähr. 

 

Besuchen sie auch unsere Homepage WWW.RIWOG.AT mit zahlreichen aktuellen TOP- Objekten!

In Entsprechung des FAGG (Fern- und Auswärtsgeschäfte-Gesetz) und des VRUG (Verbraucherrechte-Richtlinie-Umsetzungsgesetz) ist es uns leider nur mehr möglich Termine nach Erhalt einer schriftlichen Anfrage mit vollständigen Kontaktangaben (Kontaktformular) zu vereinbaren, dies gilt ebenso für die Herausgabe relevanter Informationen wie z.B. der Lage. Sehr gerne sind wir auf diesem Wege bereit, uns um sämtliche Anliegen rasch und kompetent zu kümmern.

Hinweis gemäß Energieausweisvorlagegesetz: Ein Energieausweis wurde vom Eigentümer bzw. Verkäufer, nach unserer Aufklärung über die generell geltende Vorlagepflicht, sowie Aufforderung zu seiner Erstellung noch nicht vorgelegt. Daher gilt zumindest eine dem Alter und der Art des Gebäudes entsprechende Gesamtenergieeffizienz als vereinbart. Wir übernehmen keinerlei Gewähr oder Haftung für die tatsächliche Energieeffizienz der angebotenen Immobilie.

Wir weisen darauf hin, dass zwischen dem Vermittler und dem zu vermittelnden Dritten ein familiäres oder wirtschaftliches Naheverhältnis besteht.

Der Immobilienmakler erklärt, dass er – entgegen dem in der Immobilienwirtschaft üblichen Geschäftsgebrauch des Doppelmaklers – einseitig nur für den Vermieter tätig ist.

Infrastruktur / Entfernungen

Gesundheit
Arzt <500m
Apotheke <500m
Klinik <1.500m
Krankenhaus <500m

Kinder & Schulen
Schule <500m
Kindergarten <500m
Universität <2.000m
Höhere Schule <2.500m

Nahversorgung
Supermarkt <500m
Bäckerei <500m
Einkaufszentrum <2.000m

Sonstige
Geldautomat <500m
Bank <500m
Post <500m
Polizei <1.000m

Verkehr
Bus <500m
U-Bahn <1.000m
Straßenbahn <500m
Bahnhof <1.000m
Autobahnanschluss <5.000m

Angaben Entfernung Luftlinie / Quelle: OpenStreetMap
Beschreibung weiterlesen

Lage und Verkehrsanbindung

Hadikgasse, Hütteldorfer Straße, Linzer Straße

Grundriss

Lageplan

1140 Wien | Wien 14., Penzing

Lade...
Maximilian Michael Zillner, MBA

Maximilian Michael Zillner, MBA
Immobilienmakler

RIWOG Real Estate Management GmbH

Lade...

Fotomix

Bild 1 Bild 2 Bild 3 Bild 4 Bild 5 Bild 6 Bild 7 Bild 8 Bild 9