Sanierte Altbau-Wohnungen Gunoldstraße 6, 1190 Wien

Wohnung zum Kauf in 1190 Wien / Objektnummer: 00010070350003
Ausstattung: Etagenheizung
Beispiel Zimmer
Beispiel Zimmer
Beispiel Küche
Beispiel Bad
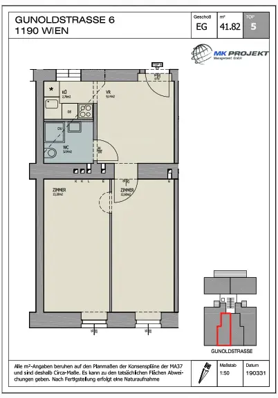
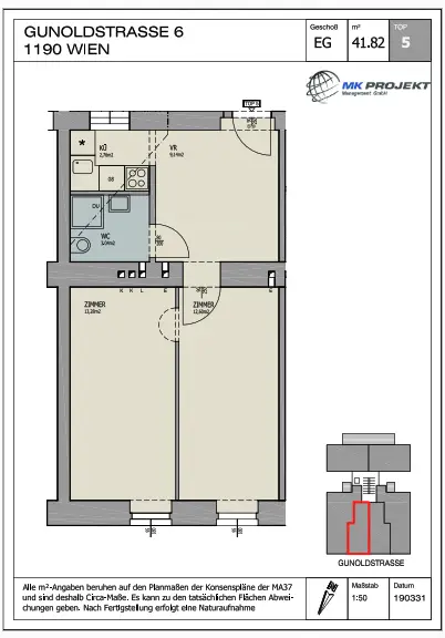
Plan Top 5

Preisinformationen

Preisinfos:
Diese Wohnung kann ebenfalls als Anlegerwohnung erworben werden.Kaufpreis: EUR 228.000,- zzgl. 20% USt.Da es sich um einen Neubau handelt, können die genauen Betriebskosten erst nach vollständiger Inbetriebnahme endgült…
Vermittlungsprovision:
Ja
Provision:
3% des Kaufpreises plus 20% USt.

Fakten

Objektnummer:
00010070350003
Objekttyp:
Wohnung
Wohnfläche:
41,74 m²
Zimmer:
3
Schlafzimmer:
2
Badezimmer:
1
Toilette:
1
Baujahr:
2022
Verfügbarkeit:
Verfügbar

Beschreibung

Diese 3-Zimmerwohnung mit ca. 41,74 m² Wohnfläche befindet sich im Hochparterre eines generalsanierten Hauses mit Lift aus der Jahrhundertwende.


Es handelt sich um einen ERSTBEZUG nach Sanierung mit Top-Ausstattung und guter Raumaufteilung in bester Lage des 19.Bezirks in unmittelbarer Nähe zu U-Bahnstation U4 Heiligenstadt. Durch die Straßenbahnlinie D ist eine hervorragende Anbindung zur Innenstadt gegeben.


Die angebotene Einheit besticht durch eine hochwertige Ausstattung wie z.B. Gasetagenheizung, Vollholzfußboden aus widerstandsfähiger Eiche, 3-fach verglaster Fenster, moderne weiße Einbauküche samt allen Geräten der Firma Siemens, ... .

Auch ist der "Altwiener Flair" mit den hohen Innentüren erhalten geblieben.

Im Bad wurde italienisches Feinsteinzeug in Marmoroptik und hochwertige Markenarmaturen verwendet.


Ein großer öffentlicher Parkplatz befindet sich in unmittelbarer Nähe des Gebäudes.


Die angegebenen Betriebskosten sind nur Schätzwerte und können erst später genau ermittelt werden.

Für Besichtigungen stehen wir Ihnen jederzeit nach Terminvereinbarung zur Verfügung.

Beschreibung weiterlesen

Lage und Verkehrsanbindung

Zum Verkauf gelangen neu sanierte Wohnungen in guter Lage des 19.Bezirk, nur wenige Gehminuten von der U Bahn-Station U4 Heiligenstadt entfernt. Beste Anbindung an diverse Bus und Tram-Verbindungen sowie sehr gute Infrastruktur samt allen Einkaufsmöglichkeiten durch die nahe gelegene Heiligenstädter Straße. Die Straßenbahnlinie D befindet sich ebenfalls in unmittelbarer Nähe und bietet beste Anbindung in die Innenstadt.Ein großer öffentlicher Parkplatz befindet sich unweit des Gebäudes.

Energieeffizienz

HWB:
43,2 kWh/(m²*a)
HWB Klasse:
B
fGEE:
0,67
fGEE Klasse:
A+
Ausstellung:
ab dem 1.5.2014

Dokumente

Grundriss

Nataliya Maystruk

Nataliya Maystruk

Raiffeisen Immobilien Vermittlung Ges.m.b.H

Anrufen
Lade...

Fotomix

Beispiel Zimmer Beispiel Zimmer Beispiel Küche Beispiel Bad