NEU - Sanierung in Vorbereitung: Geräumige 3-Zimmer-Dachgeschoßwohnung nahe Bahnhof Ottakring

Wohnung zur Miete in 1160 Wien - Gesamtmiete: 1.499,32 € / Objektnummer: 1776
Ausstattung: Barrierefrei Boden Fahrstuhl Wohnküche / offene Küche Bad Zentralheizung
Wohnzimmer
Küche
Wohnzimmer
Zimmer 1
Zimmer 2
Badezimmer

Preisinformationen

Gesamtmiete:
1.499,32 € / Monat
Betriebskosten netto:
134,02 € / Monat
Umsatzsteuer:
136,30 €
Kaution:
4.498,00 €
Provision:
Gemäß Erstauftraggeberprinzip bezahlt der Abgeber die Provision.

Fakten

Objektnummer:
1776
Objekttyp:
Wohnung
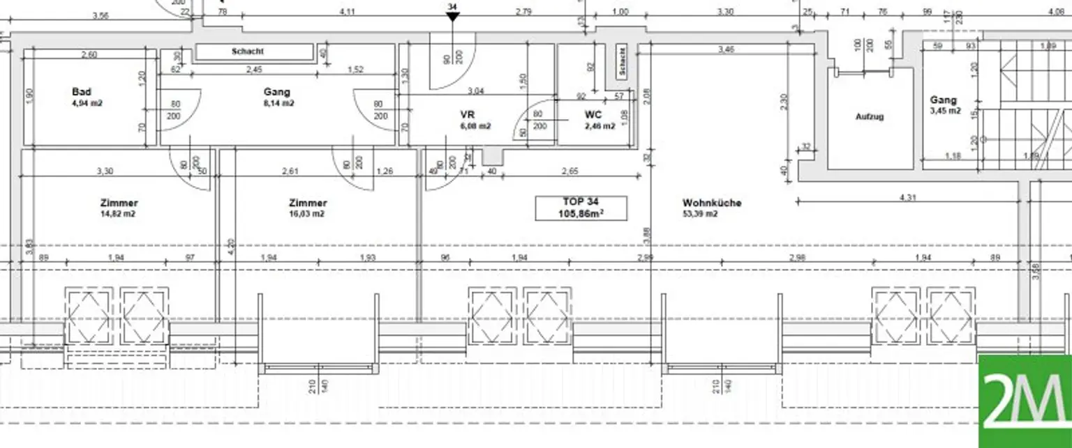
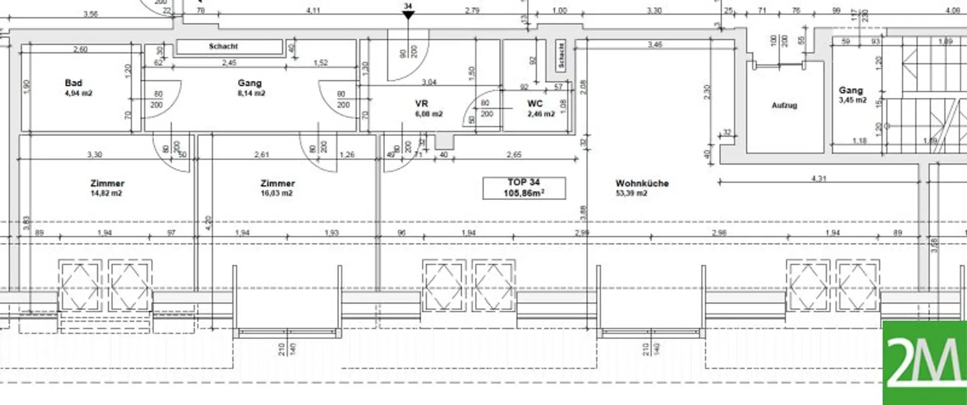
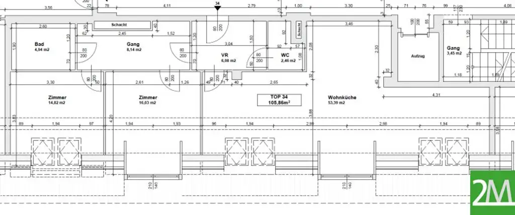
Wohnfläche:
105,86 m²
Zimmer:
3
Badezimmer:
1
Toilette:
1
Baujahr:
1994
Neubau:
Ja
Verfügbarkeit:
Verfügbar

Beschreibung

Zur Vermietung gelangt eine 3-Zimmer-Dachgeschoßwohnung mit einer Wohnfläche von rd. 106m². Die Wohnung befindet sich im letzten Liftstock eines älteren Neubaus in der Thaliastraße unweit vom Bahnhof Ottakring und wird auf 5 Jahre befristet vermietet. Eine Videotour durch die Wohnung steht auf der Plattform zur Verfügung und kann bei Bedarf auch gerne zugeschickt werden. 

WICHTIG: Bitte beachten Sie die Bonitätsvorgaben des Eigentümers, bevor Sie eine Anfrage stellen.

Die wichtigsten Infos zur Wohnung auf einen Blick

* Geräumige Wohnküche (süd- und straßenseitig)
* Zwei Schlafzimmer (süd- und straßenseitig)
* Badezimmer mit Badewanne und separates WC
* Geplante Sanierungsarbeiten: Gesamte Wohung ausmalen, Boden in den Schlafzimmern schleifen und lackieren, Kühlschrank neu, Türen einstellen
* Bezugsfertig voraussichtlich ab Februar 2026; Besichtigungen jederzeit möglich
* Kellerabteil vorhanden
* Bonität: Haushaltseinkommen mind. 3.750€ netto/Monat (über die Gehaltszettel der letzten drei Monate nachzuweisen), Bürgschaft möglich

Durch die Nähe zum Bahnhof Ottakring mit der Linie U3 sowie weiteren Nah- und Fernverkehrsverbindungen sind Sie sehr gut an das öffentliche Verkehrsnetz angeschlossen. Auch mit dem Auto sind Sie gut angebunden. Die Infrastruktur ist ebenfalls sehr gut. Im Haus befindet sich ein Supermarkt und in Gehreichweite gibt es weitere Geschäfte des täglichen Bedarfs.

Für weitere Auskünfte sowie eine Besichtigung stehe ich Ihnen jederzeit gerne zur Verfügung.

Mathias Mesaric, MA
2M Immobilien e.U.
Mobil: 0650 80 22 435
Mail: mm@2m-immobilien.at

www.2m-immobilien.at [http://www.2m-immobilien.at]

Hinweis:

Es wird festgehalten, dass die Firma 2M Immobilien e.U. nicht als Doppelmakler, sondern nur einseitig für den Vermieter tätig ist. Nähere Informationen entnehmen Sie bitte dem beiliegenden Informationsblatt.

Wir weisen darauf hin, dass zwischen dem Vermittler und dem zu vermittelnden Dritten ein familiäres oder wirtschaftliches Naheverhältnis besteht.

Der Immobilienmakler erklärt, dass er – entgegen dem in der Immobilienwirtschaft üblichen Geschäftsgebrauch des Doppelmaklers – einseitig nur für den Vermieter tätig ist.

Infrastruktur / Entfernungen

Gesundheit
Arzt <250m
Apotheke <250m
Klinik <750m
Krankenhaus <1.000m

Kinder & Schulen
Schule <250m
Kindergarten <500m
Universität <1.000m
Höhere Schule <500m

Nahversorgung
Supermarkt <250m
Bäckerei <250m
Einkaufszentrum <1.250m

Sonstige
Geldautomat <250m
Bank <500m
Post <500m
Polizei <250m

Verkehr
Bus <250m
U-Bahn <500m
Straßenbahn <250m
Bahnhof <500m
Autobahnanschluss <4.750m

Angaben Entfernung Luftlinie / Quelle: OpenStreetMap
Beschreibung weiterlesen

Lage und Verkehrsanbindung

Bahnhof Ottakring

Energieeffizienz

HWB:
45,8 kWh/(m²*a)
HWB Klasse:
B
Energieausweisart:
Energiebedarfs-ausweis
Gültig bis:
27.06.2028

Dokumente

Grundriss

Lageplan

1160 Wien | Wien 16., Ottakring

Lade...
Mathias Mesaric, MA

Mathias Mesaric, MA
Inhaber

2M Immobilien e.U.

Anrufen
Lade...

Fotomix

Wohnzimmer Küche Wohnzimmer Zimmer 1 Zimmer 2 Badezimmer