NEU - Sanierungsbedürftige 2,5-Zimmer-Wohnung in Top-Lage des 20. Bezirks - NÄHE AUGARTEN

Wohnung zum Kauf in 1200 Wien - Kaufpreis: 329.000 € / Objektnummer: 470
Ausstattung: Boden Bad Etagenheizung
Wohnbereich
Hausansicht
Hauseingang
Küche
Küche
Schlafzimmer
Schlafzimmer
Detail
Hauseingang
Fassade Innenhof
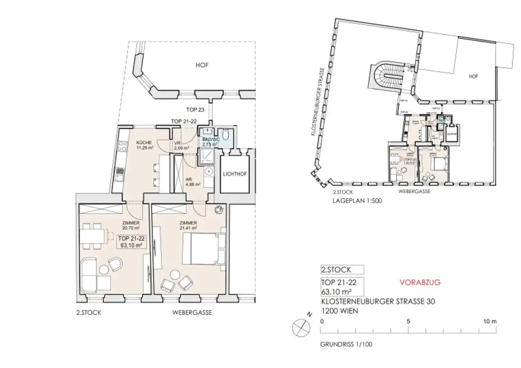
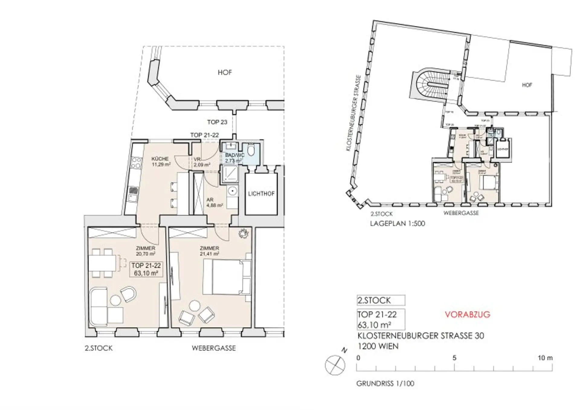
Grundriss

Preisinformationen

Kaufpreis:
329.000 €
Betriebskosten netto:
127,45 € / Monat
Vermittlungsprovision:
Ja
Provision:
2,5% des Kaufpreises zzgl. 20% USt.

Fakten

Objektnummer:
470
Objekttyp:
Wohnung
Wohnfläche:
63,1 m²
Zimmer:
2,5
Badezimmer:
1
Toilette:
1
Stockwerk:
2
Baujahr:
1900
Altbau:
Ja
Zustand:
Sanierungsbedürftig
Verfügbarkeit:
Verfügbar

Beschreibung

Zum Verkauf gelangt eine sanierungsbedürftige 2,5-Zimmer-Wohnung mit 63,10 m² im 2. Stock eines sehr gepflegten Altbaus im beliebten 20. Bezirk, in unmittelbarer Nähe zum Augarten und Donaukanal.

Die Wohnung bietet enormes Gestaltungspotenzial für kreative Köpfe: Derzeit besteht sie aus einem großen Wohnbereich und einem weiteren Zimmer, das in der Mitte geteilt wurde. Somit ist es problemlos möglich, daraus zwei separate Zimmer zu gestalten.

 

Aufteilung der Wohnung:

*
Vorzimmer

*
Badezimmer ausgestattet mit WC, Dusche und Waschtisch

*
Verbindungszimmer, verbindet das Vorzimmer mit dem Schlafzimmer, ideal für Stauraum

*
Schlafzimmer (ca. 21 m²), flexibel teilbar und somit für 2 separate Zimmer geeignet

*
Geräumige Küche, von der aus man in das ca. 20 m² große Wohnzimmer gelangt

 

Die Wohnung besticht durch ihren Altbaucharme, hohe Räume und die hervorragende Lage im 20. Bezirk – ideal für Käufer, die sich ein individuelles Wohnkonzept nach eigenen Vorstellungen gestalten möchten.

Zusätzlicher Pluspunkt: Der Verkäufer verpflichtet sich vertraglich, einen Lift bis spätestens 2028 auf seine Kosten zu errichten.

 

 

Die gesetzliche Rücklage beläuft sich auf ca. € 66,94 monatlich.

_Für Fragen und Terminvereinbarung steht Ihnen Frau Laura Rakoczi-Spallek jederzeit gerne unter 06 [tel:06608294740]60/1219705 [tel:00436601219705] oder unter ls@alvarea.com zur Verfügung!_

_Wir freuen uns auf Ihre Anfrage._

Wir weisen darauf hin, dass zwischen dem Vermittler und dem zu vermittelnden Dritten ein familiäres oder wirtschaftliches Naheverhältnis besteht.

Der Vermittler ist als Doppelmakler tätig.
Beschreibung weiterlesen

Lage und Verkehrsanbindung

Die Wohnung befindet sich in einer Eckliegenschaft an der Klosterneuburger Straße/Webergasse im 20. Bezirk – nur 5 Gehminuten vom Donaukanal und dem Augarten entfernt, die beide ideale Erholungs- und Freizeitmöglichkeiten bieten.

Die öffentliche Verkehrsanbindung ist ausgezeichnet: Die U4-Station „Friedensbrücke“ ist in 5 Minuten zu Fuß erreichbar und ermöglicht eine schnelle Verbindung ins Stadtzentrum. Zudem befinden sich die Straßenbahnlinien 5, 31, 33, O sowie der Bus 5B in unmittelbarer Nähe. Der Franz-Josefs-Bahnhof liegt nur 10 Gehminuten entfernt und bietet zusätzliche Zugverbindungen.

Diese Lage kombiniert urbanes Leben mit grüner Erholung und bietet eine perfekte Infrastruktur für alle Bedürfnisse.

Augarten, Donaukanal

Energieeffizienz

HWB:
120,8 kWh/(m²*a)
HWB Klasse:
D
fGEE:
3,76
fGEE Klasse:
F
Energieausweisart:
Energiebedarfs-ausweis
Gültig bis:
11.03.2029

Grundriss

Lageplan

1200 Wien | Wien 20., Brigittenau

Lade...
Laura Rákóczi-Spallek

Laura Rákóczi-Spallek

ALVAREA Immobilien GmbH

Lade...

Fotomix

Wohnbereich Hausansicht Hauseingang Küche Küche Schlafzimmer Schlafzimmer Detail Hauseingang Fassade Innenhof