NEU - Sanierungsbedürftige 3,5-Zimmer-Wohnung mit traumhaften Ausblick in Gersthof

Wohnung zum Kauf in 1180 Wien - Kaufpreis: 614.315 € / Objektnummer: 16143
Ausstattung: Etagenheizung Terrasse

Preisinformationen

Kaufpreis:
614.315 €
Kaufpreis/m²
6.574,43 €
Betriebskosten netto:
197,00 € / Monat
Vermittlungsprovision:
Ja
Provision:
3% des Kaufpreises zzgl. 20% USt.

Fakten

Objektnummer:
16143
Objekttyp:
Wohnung
Terrasse:
1
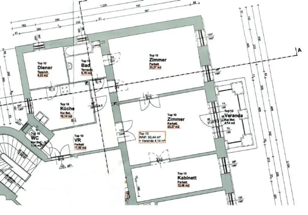
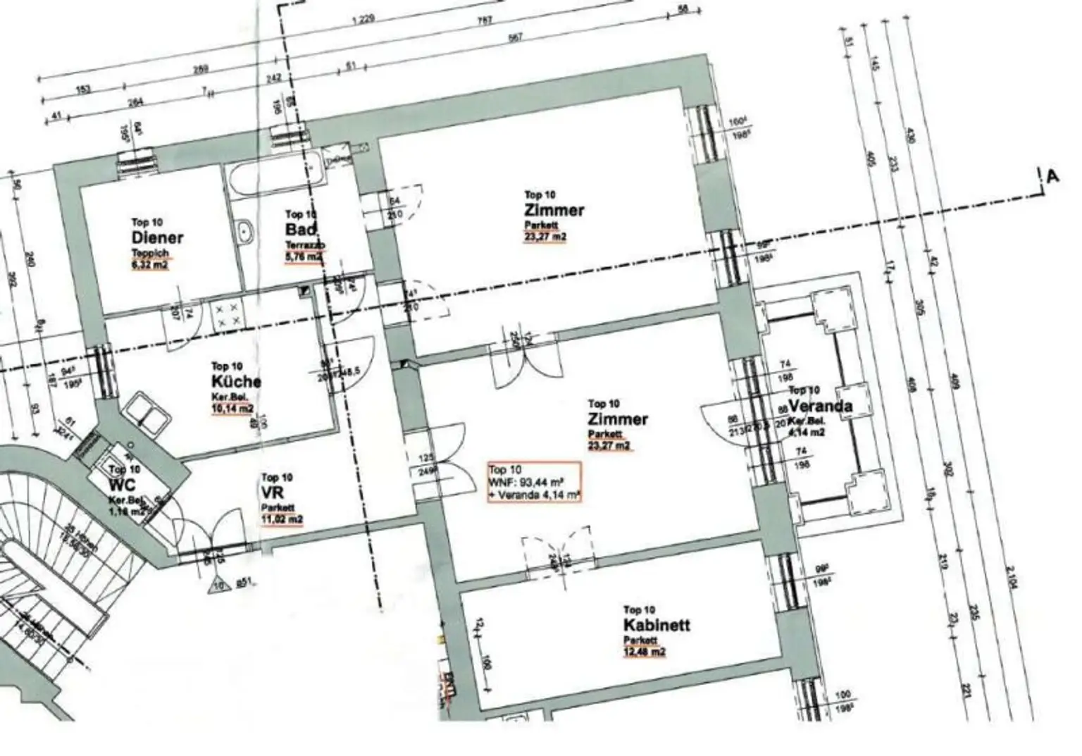
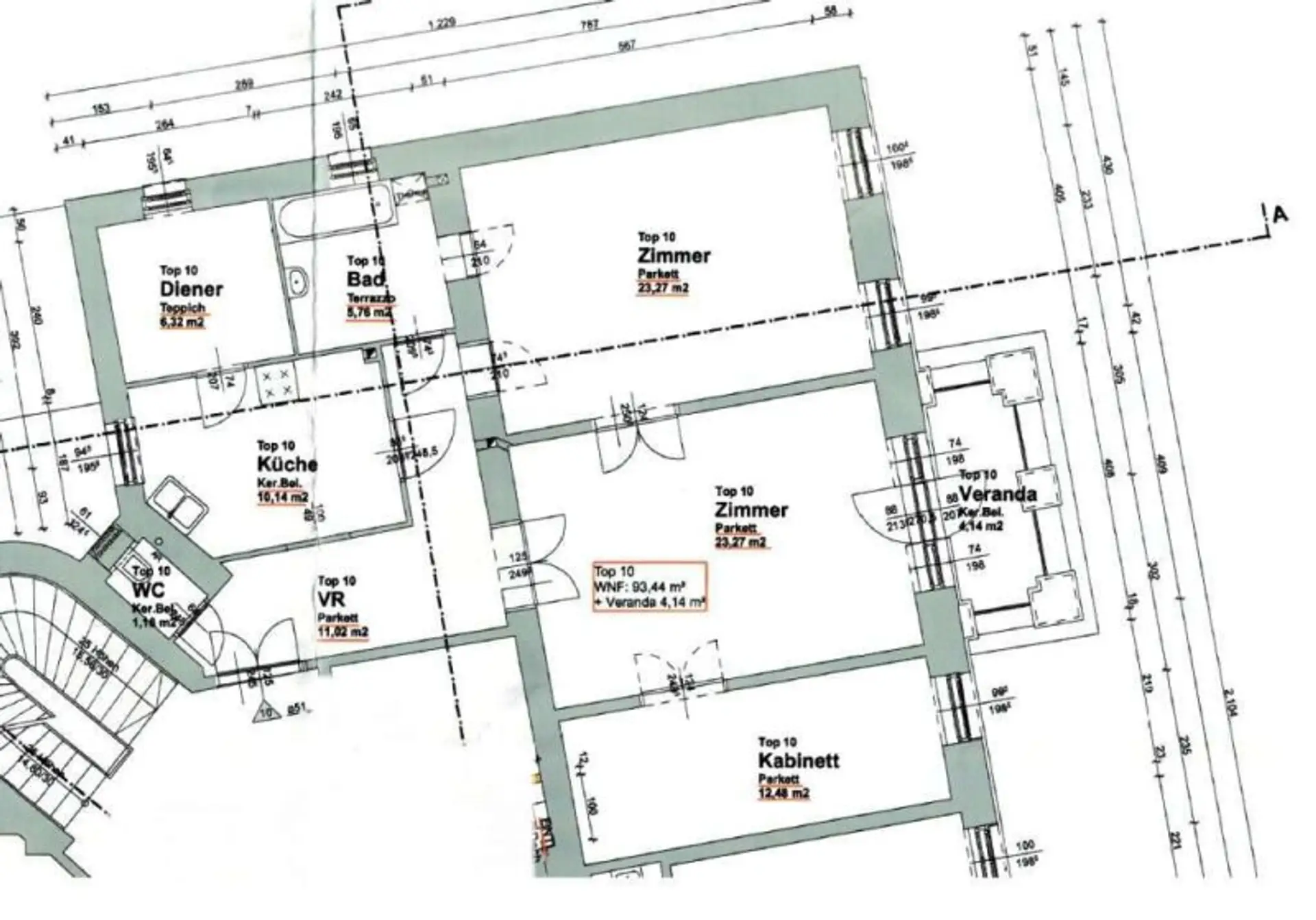
Wohnfläche:
93,44 m²
Zimmer:
3,5
Badezimmer:
1
Toilette:
1
Stockwerk:
2
Verfügbarkeit:
Verfügbar

Beschreibung

Diese 3-Zimmer-Wohnung befindet sich in begehrter Lage im 18. Wiener Gemeindebezirk und bietet eine interessante Gelegenheit für Käufer, die eine Immobilie nach eigenen Vorstellungen gestalten möchten. Die Wohnung liegt im 2. Obergeschoß und verfügt über eine großzügige Wohnfläche von 93,44 m².

Die Raumaufteilung ist funktional und gut durchdacht:
Über den Vorraum gelangt man in das Wohnzimmer mit Zugang auf den Westbalkon. Rechts davon befindet sich ein weiteres, kleineres Zimmer, links ein Schlafzimmer. Vom Vorraum aus sind außerdem die Küche mit separater Speis, das Badezimmer sowie eine separate Toilette erreichbar. Vom Badezimmer aus gelangt man zusätzlich in das große Schlafzimmer.

Die hellen Räume bieten eine gute Basis für eine individuelle Sanierung und Modernisierung. Die Wohnung ist sanierungsbedürftig und eröffnet dadurch entsprechendes Wertsteigerungspotenzial.

Die Verkehrsanbindung ist ausgezeichnet: Bus, Straßenbahn und Zug sind fußläufig erreichbar und ermöglichen eine schnelle Anbindung in alle Teile der Stadt. Auch die Infrastruktur überzeugt – Ärzte, Apotheken, Kliniken, Schulen, Supermärkte und Bäckereien befinden sich in unmittelbarer Nähe. Die Nähe zur Universität und zu höheren Schulen macht die Wohnung zudem für Studierende oder Akademiker attraktiv.

Der Kaufpreis beträgt 614.315,00 €.

Eine Besichtigung lohnt sich, um sich persönlich von Lage, Grundriss und Entwicklungspotenzial dieser Immobilie zu überzeugen.

 

 

Kontakt
Für weitere Informationen oder zur Vereinbarung eines Besichtigungstermins kontaktieren Sie bitte
Frau Julia Koch persönlich unter +43 660 664 7444 oder per E-Mail an koch@moritz-immobilien.at.

Unser Büro erreichen Sie unter office@moritz-immobilien.at.

 

* Grunderwerbssteuer: 3.5% 
* Grundbucheintragung Kosten: 1.1% 
* Vertragserrichtungsgebuehr: ca. 1,2% des Kaufpreises zzgl. 20% USt. durch SRG Stock Rafaseder Gruszkiewicz Rechtsanwälte
* Maklerprovision: 3% des Kaufpreises zzgl. 20% USt.

 

_Maklervereinbarung: _Wir ersuchen um Verständnis, dass wir bei Anfragen zur Objektadresse, bzw. Besichtigungstermin  aufgrund neuer gesetzlicher Bestimmungen Unterlagen erst dann zusenden können, wenn Sie vorab bestätigen, dass Sie unser sofortiges Tätigwerden wünschen und über Ihre Rücktrittsrechte aufgeklärt wurden. Sie bekommen nach Ihrer schriftlichen Anfrage mit vollständiger Angabe des Namens, Anschrift und Telefonnummer ein Email, in dem Sie diese Punkte bestätigen müssen.

_Haftungsausschluss:  _Wir weisen darauf hin, dass sämtliche Daten im vorliegenden Angebot sowie die von unserem Büro an Sie weitergegebenen Auskünfte, vom Eigentümer der Immobilie zur Verfügung gestellt wurden. Ebenso sind Informationen von Dritten (z.B. behördliche Informationen) eingeholt worden, auch für diese können wir unsererseits keinerlei Haftung für deren uneingeschränkte Richtigkeit übernehmen.

Infrastruktur / Entfernungen

Gesundheit
Arzt <500m
Apotheke <500m
Klinik <500m
Krankenhaus <1.500m

Kinder & Schulen
Schule <500m
Kindergarten <500m
Universität <1.000m
Höhere Schule <1.000m

Nahversorgung
Supermarkt <500m
Bäckerei <500m
Einkaufszentrum <2.000m

Sonstige
Geldautomat <500m
Bank <500m
Post <500m
Polizei <1.000m

Verkehr
Bus <500m
U-Bahn <1.500m
Straßenbahn <500m
Bahnhof <1.000m
Autobahnanschluss <3.500m

Angaben Entfernung Luftlinie / Quelle: OpenStreetMap
Beschreibung weiterlesen

Lage und Verkehrsanbindung

Türkenschanzpark, Sternwartepark

Türkenschanzpark

Grundriss

Lageplan

1180 Wien | Wien 18., Währing

Lade...
Julia Koch

Julia Koch
Immobilienberaterin

Moritz Immobilien

Lade...

Fotomix

Bild 1 Bild 2 Bild 3 Bild 4 Bild 5 Bild 6 Bild 7 Bild 8 Bild 9 Bild 10 Bild 11 Bild 12 Bild 13 Bild 14 Bild 15 Bild 16 Bild 17