NEU - Sanierungsbedürftige Eigentumswohnung mit großzügiger Terrasse

Wohnung zum Kauf in 1160 Wien - Kaufpreis: 335.000 € / Objektnummer: 25928
Ausstattung: Fahrstuhl Bad Terrasse

Preisinformationen

Kaufpreis:
335.000 €
Betriebskosten netto:
171,28 € / Monat
Vermittlungsprovision:
Ja
Provision:
3% des Kaufpreises zzgl. 20% USt.

Fakten

Objektnummer:
25928
Objekttyp:
Wohnung
Terrasse:
1
Keller Fläche:
2,31 m²
Wohnfläche:
74,29 m²
Zimmer:
3
Badezimmer:
1
Toilette:
1
Stockwerk:
4
Baujahr:
1974
Neubau:
Ja
Zustand:
Sanierungsbedürftig
Verfügbarkeit:
Verfügbar

Beschreibung

Highlights

*
Großzügige Terrasse (ca. 22 m²) – Sanierung kürzlich erfolgt

*
Zwei Zimmer mit direktem Terrassenzugang

*
Guter Grundriss

*
Separate Küche

-------------

Die Wohnung

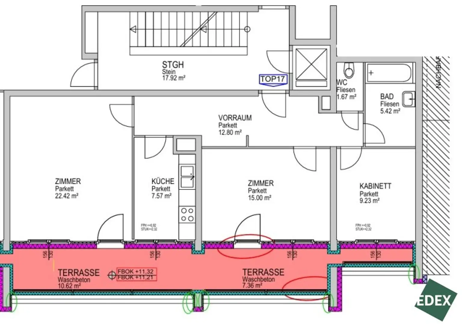
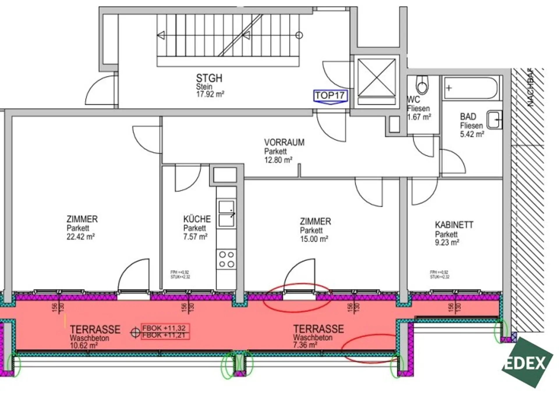
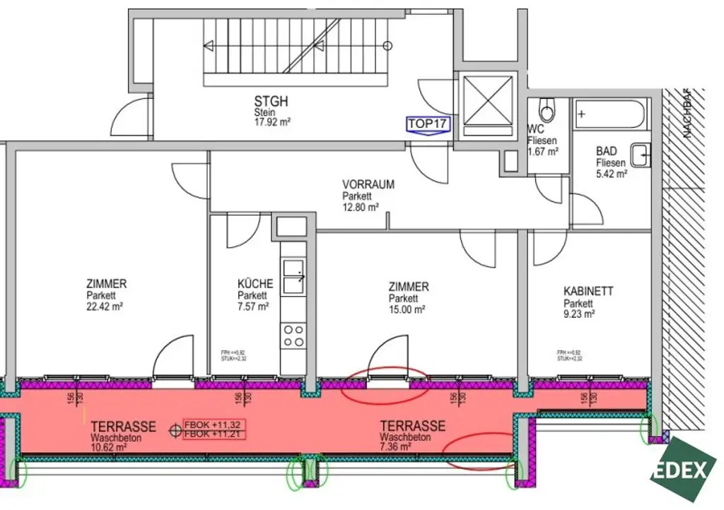
Diese ca. 74 m² große Eigentumswohnung befindet sich im 4. Liftstock eines im Jahr 1974 errichteten Wohnhauses im 16. Wiener Gemeindebezirk. Das Gebäude verfügt über einen Personenlift sowie einen begrünten Innenhof zur gemeinschaftlichen Nutzung.

Die Wohnung ist vollständig sanierungsbedürftig und bietet damit eine hervorragende Gelegenheit für Eigennutzer oder Anleger, ihre individuellen Wohnvorstellungen umzusetzen.

Vom Vorraum aus sind sämtliche Räume zentral begehbar. Die Wohnung verfügt über drei gut geschnittene Zimmer, wovon zwei direkten Zugang zur großzügigen, ca. 21,50 m² großen Terrasse bieten – ein besonderes Highlight dieser Immobilie. Die Terrasse wurde kürzlich, im Zuge der Fassadensanierung, saniert und erweitert den Wohnraum ideal ins Freie.

Die Küche ist separat angelegt und bietet ausreichend Platz für eine moderne Neugestaltung. Das Badezimmer sowie das separate WC sind ebenfalls sanierungsbedürftig und ermöglichen eine zeitgemäße Adaptierung nach eigenen Vorstellungen. Geheizt wird mittels Elektro-Heizung.

Ein Kellerabteil sorgt für zusätzlichen Stauraum. Optional kann ein Parkplatz angemietet werden (auf Anfrage).

Diese Immobilie bietet eine ideale Basis für ein modernes Stadtrefugium mit großzügiger Freifläche in urbaner Lage des 16. Bezirks.

-------------

Raumaufteilung

*
Vorraum

*
Drei Zimmer

*
Zwei Zimmer mit direktem Zugang zur Terrasse

*
Separate Küche

*
Badezimmer

*
Separates WC

*
Terrasse (ca. 21,50 m²)

-------------

Ausstattung

* Personenlift
*
Großzügige Terrasse (Sanierung 2026)

*
Zwei Terrassenzugänge

*
Separate Küche

*
Separates WC

*
Kellerabteil

*
Begrünter Innenhof zur gemeinschaftlichen Nutzung

*
Optional anmietbarer Parkplatz

*
Wohnung sanierungsbedürftig

 

Öffentliche Verkehrsmittel

Autobus: 48A

U-Bahn: U6

Straßenbahn: 9

 

Lage

Die Wohnung befindet sich im 16. Wiener Gemeindebezirk, einem urbanen und zugleich lebendigen Wohnbezirk mit gewachsener Infrastruktur und guter Anbindung.

In unmittelbarer Umgebung finden sich zahlreiche Nahversorger, Supermärkte, Apotheken sowie Cafés und Restaurants. Der nahegelegene Brunnenmarkt sowie die Thaliastraße bieten vielfältige Einkaufsmöglichkeiten und ein abwechslungsreiches gastronomisches Angebot.

Die öffentliche Verkehrsanbindung ist sehr gut: U-Bahn (U6 Thaliastraße) und Bus sind fußläufig erreichbar und gewährleisten eine rasche Verbindung in die Innenstadt sowie zu weiteren U-Bahn-Knotenpunkten. Dadurch ist sowohl die Wiener City als auch das restliche Stadtgebiet bequem erreichbar.

Für Erholung und Freizeit stehen mehrere Grünflächen und Naherholungsgebiete in der Umgebung zur Verfügung. Auch der Wilhelminenberg sowie die Steinhofgründe sind in kurzer Zeit erreichbar und bieten hohen Freizeitwert.

Die Kombination aus urbaner Infrastruktur, guter Erreichbarkeit und Entwicklungspotenzial macht diese Lage sowohl für Eigennutzer als auch für Anleger besonders attraktiv.

 

_Die Liegenschaft wurde von einem gemeinnützigen Bauträger errichtet und es wurden Förderungen in Anspruch genommen. Das kann bei der Vermietung Auswirkungen auf die gesetzlich erlaubte Miete, die vorgeschrieben werden darf, haben. Eine genaue Überprüfung der rechtlichen Situation wurde nicht vorgenommen._

Infrastruktur / Entfernungen

Gesundheit
Arzt <500m
Apotheke <500m
Klinik <500m
Krankenhaus <1.500m

Kinder & Schulen
Schule <500m
Kindergarten <500m
Universität <1.500m
Höhere Schule <1.000m

Nahversorgung
Supermarkt <500m
Bäckerei <500m
Einkaufszentrum <500m

Sonstige
Geldautomat <500m
Bank <500m
Post <500m
Polizei <500m

Verkehr
Bus <500m
U-Bahn <500m
Straßenbahn <500m
Bahnhof <500m
Autobahnanschluss <4.500m

Angaben Entfernung Luftlinie / Quelle: OpenStreetMap
Beschreibung weiterlesen

Lage und Verkehrsanbindung

Kirchstetterngasse

Energieeffizienz

HWB:
95 kWh/(m²*a)
HWB Klasse:
C
fGEE:
2,69
fGEE Klasse:
E
Energieausweisart:
Energiebedarfs-ausweis
Gültig bis:
09.10.2033

Grundriss

Lageplan

1160 Wien | Wien 16., Ottakring

Lade...
Yasmin Szaraniec

Yasmin Szaraniec
Beraterin

EDEX Immobilien GmbH

Lade...

Fotomix

Bild 1 Bild 2 Bild 3 Bild 4 Bild 5 Bild 6 Bild 7 Bild 8 Bild 9 Bild 10 Bild 11 Bild 12 Bild 13 Bild 14 Bild 15 Bild 16 Bild 17 Bild 18 Bild 19 Bild 20 Bild 21 Bild 22 Bild 23 Bild 24 Bild 25 Bild 26 Bild 27 Bild 28 Bild 29 Bild 30 Bild 31 Bild 32