NEU - Sanierungsbedürftiger Familien- oder Pärchenhit in den Innenhof mit Loggia bei U6 Dresdner Straße Ab sofort verfügbar

Wohnung zum Kauf in 1200 Wien - Kaufpreis: 271.500 € / Objektnummer: 3121
Ausstattung: Boden Fahrstuhl Bad Fahrradraum Abstellraum Zentralheizung Loggia

Preisinformationen

Kaufpreis:
271.500 €
Betriebskosten netto:
215,00 € / Monat
Vermittlungsprovision:
Ja
Provision:
3% des Kaufpreises zzgl. 20% USt.

Fakten

Objektnummer:
3121
Objekttyp:
Wohnung
Loggia:
1
Wohnfläche:
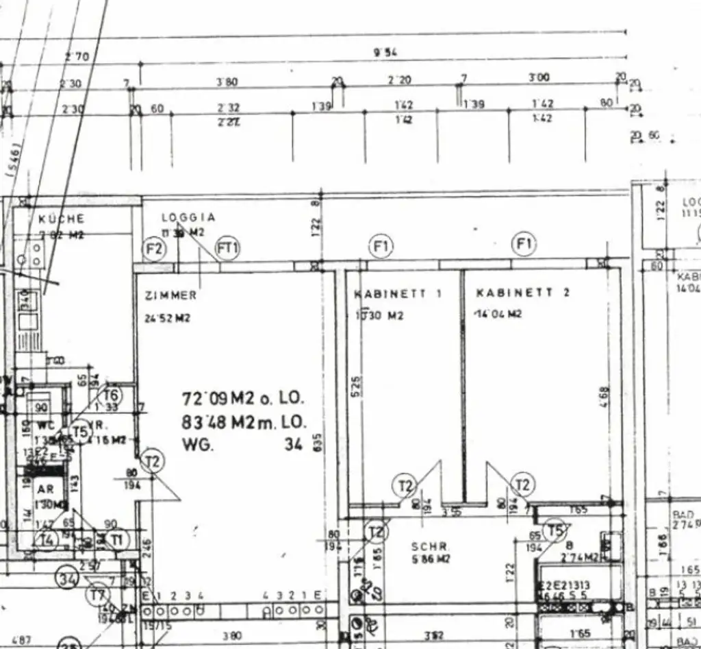
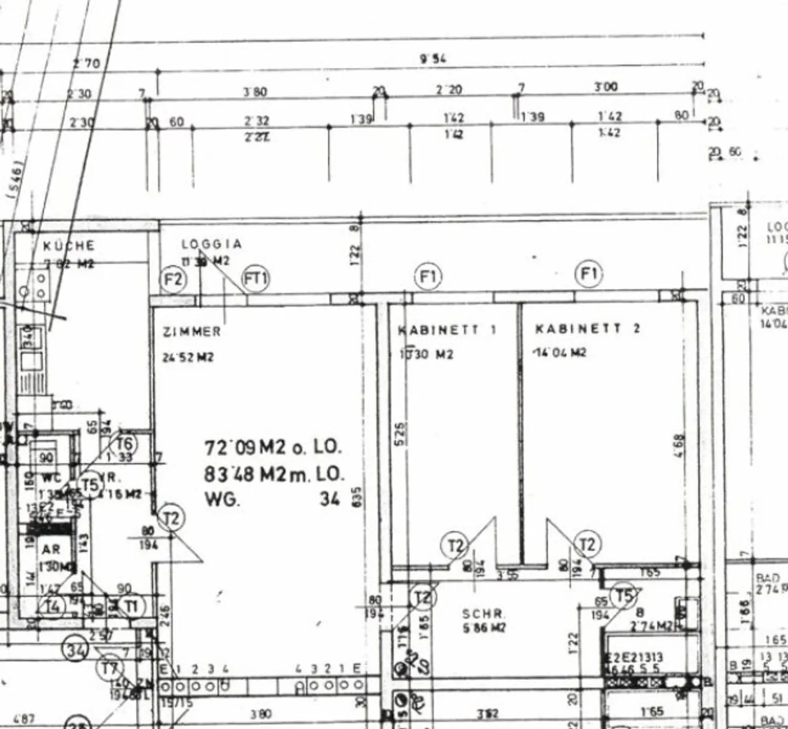
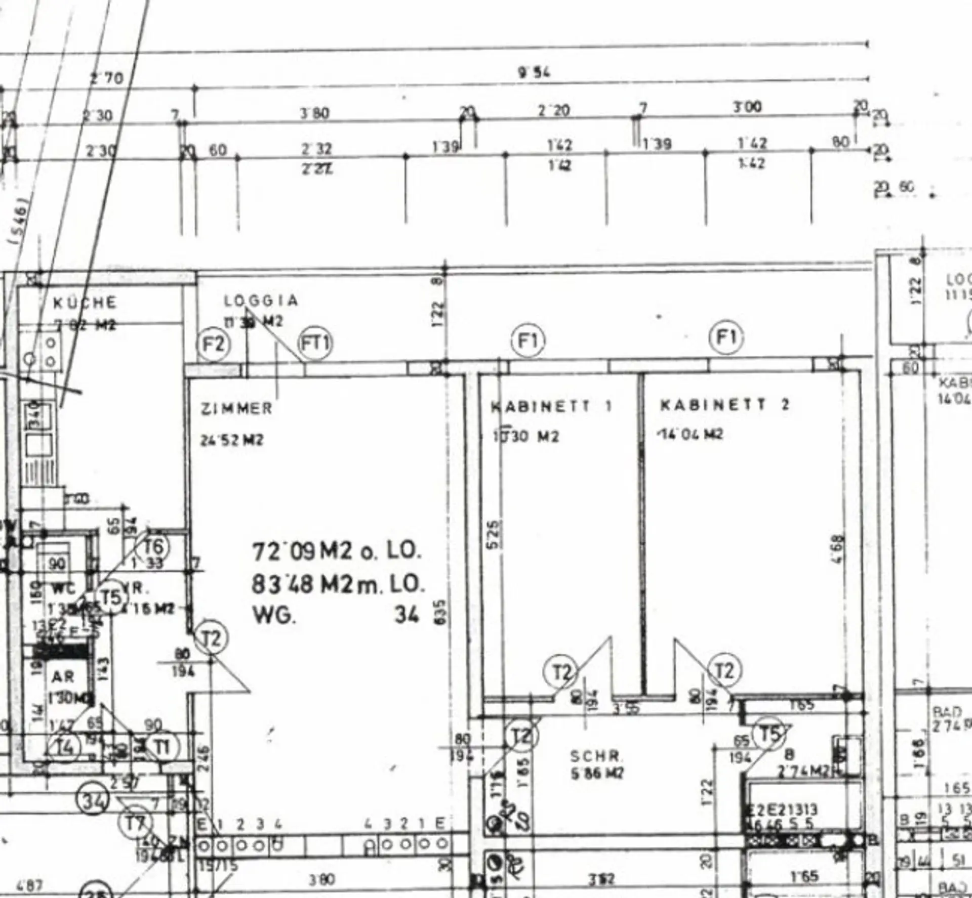
72,09 m²
Loggia Fläche:
11,39 m²
Nutzfläche:
83,48 m²
Gesamtfläche:
83,48 m²
Zimmer:
3
Badezimmer:
1
Toilette:
1
Stockwerk:
4
Baujahr:
1970
Neubau:
Ja
Zustand:
Sanierungsbedürftig
Verfügbarkeit:
Verfügbar

Beschreibung

SANIERUNGSBEDÜRFTIGER SINGLE- ODER PÄRCHENHIT IM HERZEN VON BRIGITTENAU 

In die Vermarktung gelangt eine sanierungsbedürftige 3 Zimmer Wohnung mit Loggia direkt an der U6 Dresdner Straße. 

Die Liegenschaft zeichnet sich vor allem durch die hervorragende Lage und die gute Anbindung an das Wiener Stadtzentrum durch die U-Bahn U6 und Bahnhof Traisengasse, aus. Demnach erreicht man in kurzer Zeit die HOT-Spots von Wien (Schwedenplatz, Karlsplatz, Schottenring, Wien Mitte uvm.). Auch eines der größten Naherholungsgebiete Wiens- die Donauinsel - ist fußläufig in kurzer Distanz zu erreichen. 

Die ums Eck gelegene Dresdner Straße garantiert eine perfekte Nahversorgung und der Bahnhof Wien Traisengasse sowie die U6 Dresdner Straße eine Top-Infrastruktur.

Die Wohnung bietet eine Fläche von ca. 72,09 m2 zzgl. einer ca. 11,39 m2 Loggia. Die Liegenschaft befindet sich im 4. Liftstock und besticht mit 3 großzügigen Zimmern, einem Vorraum, einem Abstellraum, einer separaten Küche sowie ein separates WC. Die südwestliche Ausrichtung sorgt für ein helles Wohnambiente. Zudem befindet sich die Wohnung in Ruhelage und bietet eine gute öffentliche Anbindung ans Stadtzentrum.

Diese Immobilie ist ein wahres Juwel für Renovierer und Sanierungsliebhaber, die nach einer einzigartigen Gestaltungsmöglichkeit suchen.

Ihr Highlights auf einen Blick:

* ausgezeichnete Lage - UBahn Nähe
* großzügige Räume
* große Loggia
* separate Küche
* Abstellraum

 

Aufteilung der Wohnung 

Die 3-Zimmer-Wohnung mit ca. 72,09 m2  Wohnfläche zzgl. ca. 11,39 m2  Loggia gliedert sich in folgende Raumaufteilung:

* Vorraum
* Zimmer 1
* Wohnzimmer mit Durchgang zur Loggia
* Zimmer 3
* Loggia
* separate Küche
* Badezimmer mit Dusche und Handwaschbecken
* Abstellraum
* separates WC

 

Kaufpreis:

Der Kaufpreis beläuft sich auf 271.500,00 € 

Provision: 3% des Kaufpreises zzgl. 20% Umsatzsteuer

Fragen Sie unverbindlich Ihr Finanzierungsmodell an: Finanzierung [https://www.viennaestate-makler.com/finanzierung]

 

Folgende öffentliche Verkehrsmittel stehen zur Verfügung

* U-Bahn U6 Dresdner Straße
* Buslinie 5A , 37A
* Straßenbahnlinie 1,2,5,30,31,33
* Bahnhof Wien Traisengasse

Somit erreichen Sie auch mit den öffentlichen Verkehrsmitteln die Wiener Innenstadt in wenigen Augenblicken (Schwedenplatz, Karlsplatz, Wien Mitte) als auch in weiterer Folge den Flughafen Wien.

Die Autobahnauffahrt zur A22 ist ebenso sehr rasch zu erreichen.

Die ausgezeichnete Infrastruktur ist durch die unmittelbare Nähe zur Milleniumcity, Brigitta Passage, Supermärkten, Drogeriemärkte, Apotheken, Restaurants, Cafés, Sporteinrichtungen (Fitnessstudios), Kindergärten, Schulen, Ärzte u.dgl.  gewährleistet.

Energieausweis:

Der Heizwärmebedarf beträgt ca. 49,9 kWh/m2a, welcher der Klasse B entspricht.

 

Wir machen darauf aufmerksam, dass bei einem Erwerb zu Vermietungszwecken die erzielbare Miete dem WGG (Wohnungsgemeinnützigkeitsgesetz) unterliegt.

 

Für Fragen bzw. Besichtigungen steht Ihnen Frau Pauline Socha sehr gerne unter socha@viennaestate.com sowie unter  +43 676 839 85 816 zur Verfügung.

Wir weisen darauf hin, dass zwischen dem Vermittler und dem zu vermittelnden Dritten ein familiäres oder wirtschaftliches Naheverhältnis besteht.

Der Vermittler ist als Doppelmakler tätig.

Infrastruktur / Entfernungen

Gesundheit
Arzt 500m
Apotheke 500m
Klinik 500m
Krankenhaus 500m

Kinder & Schulen
Schule 500m
Kindergarten 500m
Universität 500m
Höhere Schule 1.000m

Nahversorgung
Supermarkt 500m
Bäckerei 500m
Einkaufszentrum 500m

Sonstige
Geldautomat 500m
Bank 500m
Post 500m
Polizei 500m

Verkehr
Bus 500m
U-Bahn 500m
Straßenbahn 500m
Bahnhof 500m
Autobahnanschluss 1.500m

Angaben Entfernung Luftlinie / Quelle: OpenStreetMap
Beschreibung weiterlesen

Lage und Verkehrsanbindung

in der Nähe: Dresdner Straße, Stromstraße, Adalbert-Stifter-Straße, Höchststädtplatz

Dresdner Straße, Stromstraße, Adalbert-Stifter-Straße, Höchststädtplatz

Energieeffizienz

HWB:
49,9 kWh/(m²*a)
HWB Klasse:
B
fGEE:
1,57
fGEE Klasse:
C
Energieausweisart:
Energiebedarfs-ausweis
Gültig bis:
04.08.2029

Grundriss

Lageplan

1200 Wien | Wien 20., Brigittenau

Lade...
Pauline Socha

Pauline Socha
Immobilienberaterin

ViennaEstate Makler GmbH

Anrufen
Lade...

Fotomix

Bild 1 Bild 2 Bild 3 Bild 4 Bild 5 Bild 6 Bild 7 Bild 8 Bild 9 Bild 10 Bild 11 Bild 12 Bild 13 Bild 14 Bild 15 Bild 16