NEU - Sanierungsbedürftiges Haus mit ausbaufähigem Rohdachboden in Bad Vöslau!

Haus zum Kauf in 2540 Bad Vöslau - Kaufpreis: 270.000 € / Objektnummer: 2478
Ausstattung: Barrierefrei Boden Bad Kabel/Satelliten-TV Parkplatz Außenparkplatz Etagenheizung Garten

Preisinformationen

Kaufpreis:
270.000 €
Kaufpreis/m²
1.875,00 €
Vermittlungsprovision:
Ja
Provision:
3% des Kaufpreises zzgl. 20% USt.

Fakten

Objektnummer:
2478
Objekttyp:
Haus
Keller Fläche:
57,57 m²
Wohnfläche:
87,71 m²
Nutzfläche:
144 m²
Grundstücksfläche:
270 m²
Gartenfläche:
40 m²
Zimmer:
3
Badezimmer:
1
Toilette:
2
Baujahr:
1920
Altbau:
Ja
Zustand:
Sanierungsbedürftig
Verfügbarkeit:
Verfügbar

Beschreibung

Charmantes Eckhaus mit großem Ausbaupotenzial – Rohdachboden & vielseitigem Untergeschoss

Dieses Haus aus dem Jahr 1920 befindet sich auf einem Eckgrundstück und bietet viel Raum für individuelle Gestaltungsideen. Mit Erdgeschoss, Untergeschoss sowie einem ca. 77 m² großen, ausbaufähigen Rohdachboden eröffnet die Liegenschaft zahlreiche Möglichkeiten für Eigennutzer oder Investoren.

Wohnnutzfläche: 153,73 m²

Der Garten (40m²) überzeugt durch seine praktische Gestaltung und verfügt über drei separate Zugänge: direkt vom Haus, von der Straße sowie von den Parkplätzen – ideal für flexible Nutzung.

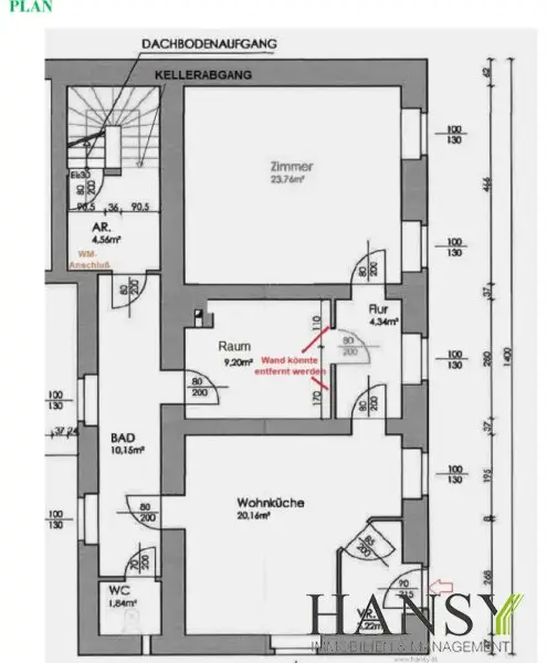
Erdgeschoss (ca. 77 m²):

*
Vorraum

*
Wohnküche (ca. 20 m²)

*
Schlafzimmer (ca. 24 m²)

*
Weiteres Zimmer (ca. 9 m²)

*
Badezimmer mit Badewanne

*
Separates WC

*
Abstellraum mit Zugang zum Untergeschoss und Dachboden

Untergeschoss (ca. 76 m²):
Der Gang sowie ein Raum mit ca. 21 m² sind beheizt und belichtet. Das Untergeschoss eignet sich besonders als Fitnessraum, Hobbyraum, Werkstatt oder Lagerfläche.

Dachboden:

*
Ca. 77 m² großer Rohdachboden mit attraktivem Ausbaupotenzial

Zustand:

*
Das Haus ist sanierungsbedürftig, bietet dafür jedoch eine solide Basis und viel Entwicklungsspielraum.

Heizung:

*
Gasetagenheizung

Diese Liegenschaft vereint Charakter, großzügige Flächen und Ausbaureserven in guter Lage – ideal für alle, die ein Haus nach eigenen Vorstellungen gestalten möchten.

Zögern Sie nicht länger und rufen Sie mich gleich an. Ich freue mich auf Ihren Anruf!

 

Infrastruktur / Entfernungen

Gesundheit
Arzt <500m
Apotheke <500m
Klinik <5.000m
Krankenhaus <5.500m

Kinder & Schulen
Kindergarten <1.000m
Schule <500m

Nahversorgung
Supermarkt <1.000m
Bäckerei <500m
Einkaufszentrum <4.000m

Sonstige
Bank <1.000m
Geldautomat <1.000m
Post <1.000m
Polizei <500m

Verkehr
Bus <500m
Bahnhof <2.000m
Autobahnanschluss <2.000m
Straßenbahn <5.500m
Flughafen <4.000m

Angaben Entfernung Luftlinie / Quelle: OpenStreetMap
Beschreibung weiterlesen

Lage und Verkehrsanbindung

Dieses charmante Apartmenthaus bei 2540 Bad Vöslau besticht durch seine ideale Lage im Südosten. In unmittelbarer Nähe finden Sie alles, was das Herz begehrt: Ärzte, Schulen, Kindergärten sowie Bäckereien und Banken sind bequem erreichbar. Ein Geldautomat und die Post sind nur einen kurzen Fußweg entfernt. Die gute Anbindung an den öffentlichen Nahverkehr mit Buslinien sorgt für eine optimale Erreichbarkeit der Umgebung. Hier wohnen oder arbeiten Sie zentral und dennoch ruhig!

Energieeffizienz

HWB:
327 kWh/(m²*a)
HWB Klasse:
G
fGEE:
3,32
fGEE Klasse:
F
Energieausweisart:
Energiebedarfs-ausweis

Grundrisse

Lageplan

2540 Bad Vöslau | Baden

Lade...
Alexander Kalinowski

Alexander Kalinowski
Vertrieb

Hansy GmbH

Anrufen
Lade...

Fotomix

Bild 1 Bild 2 Bild 3