Sanierungsbedürftiges Wohnhaus mit Nebengebäude in Weiten

Haus zum Kauf in 3653 Weiten - Kaufpreis: 54.500 € / Objektnummer: 8264
Ausstattung: Möbliert Heizofen
Wohnhaus Raxendorf
Küche EG
Zimmer im Obergeschoß
Zimmer OG mit Kamin
Zimmer OG
Badezimmer
großer Raum OG
großes Zimmer OG
Garten - Wiesenfläche
Haus mit Geräteschuppen
Geräteschuppen
Nebengebäude
Außenansicht
straßenseitige Ansicht
Wohnhaus
Ansicht von oben
Wohnhaus am Waldrand
Wohnhaus mit Nebengebäude
Haus mit Geräteschuppen
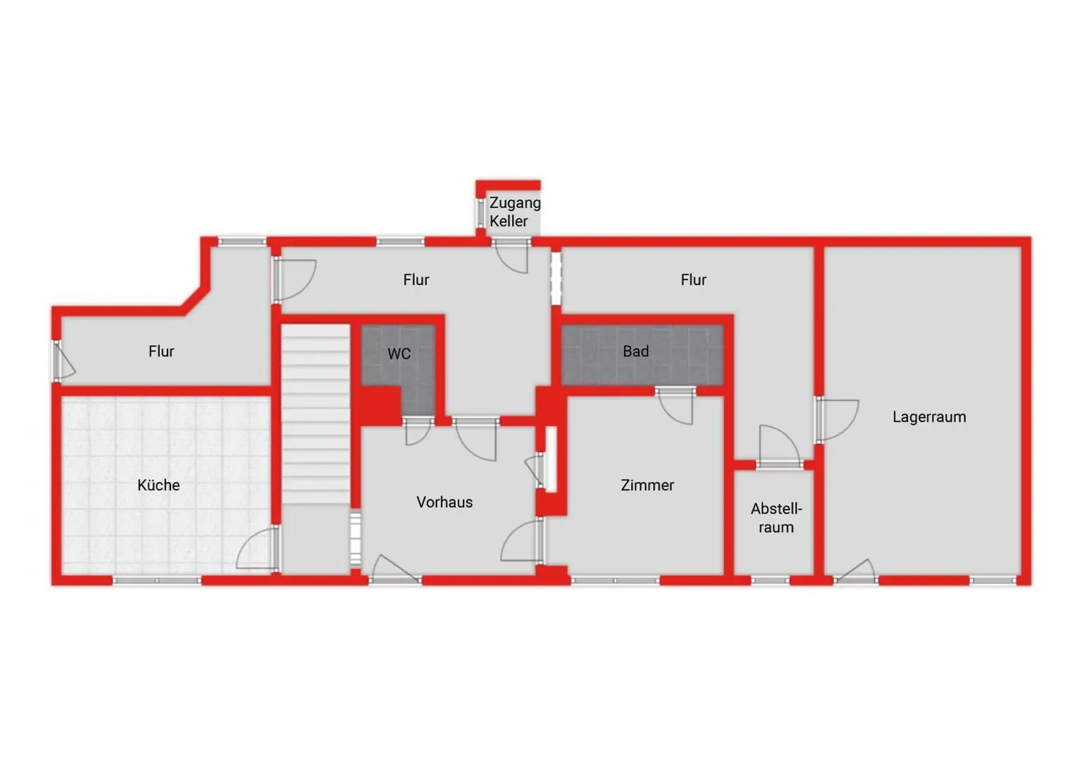
Plan EG
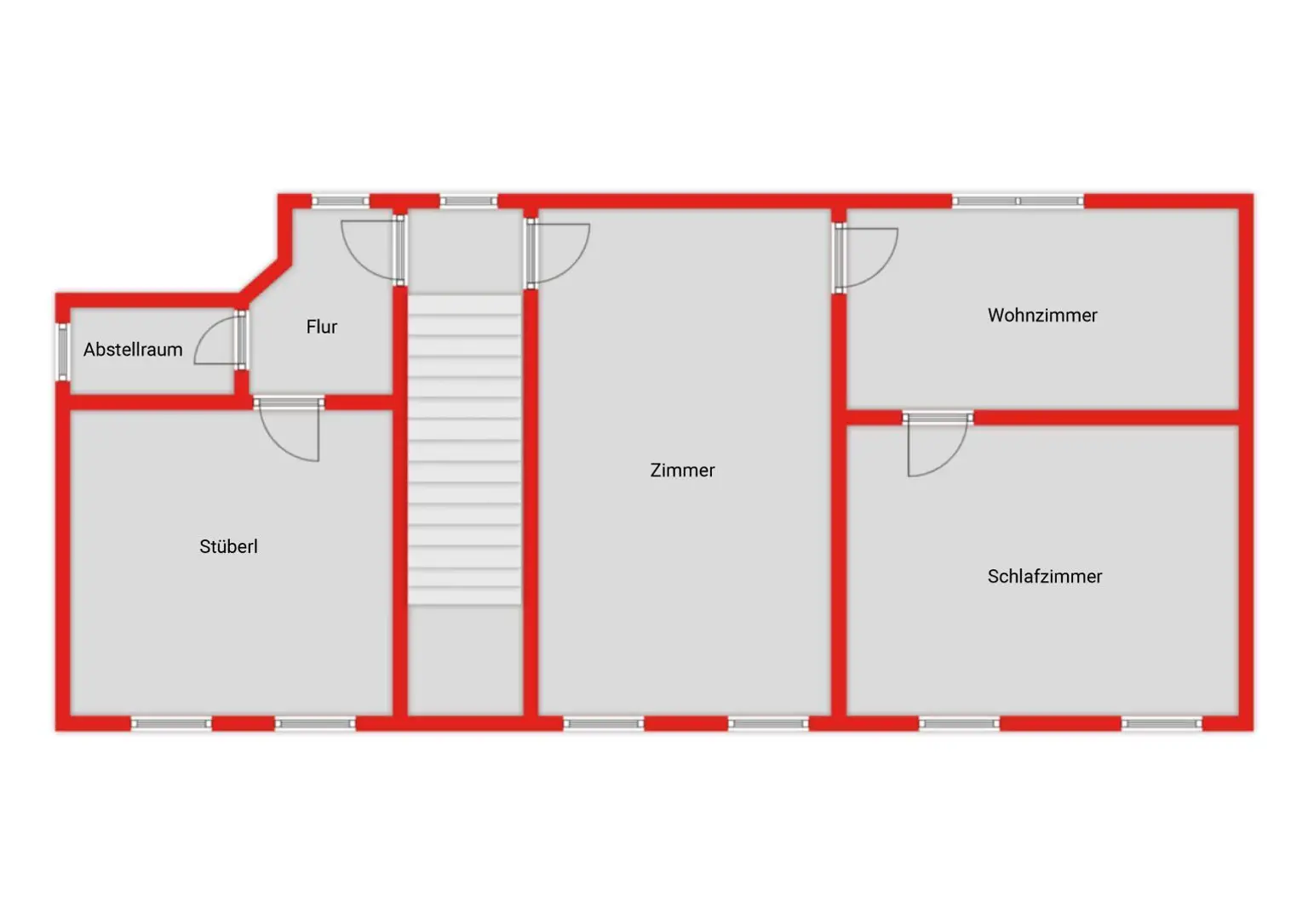
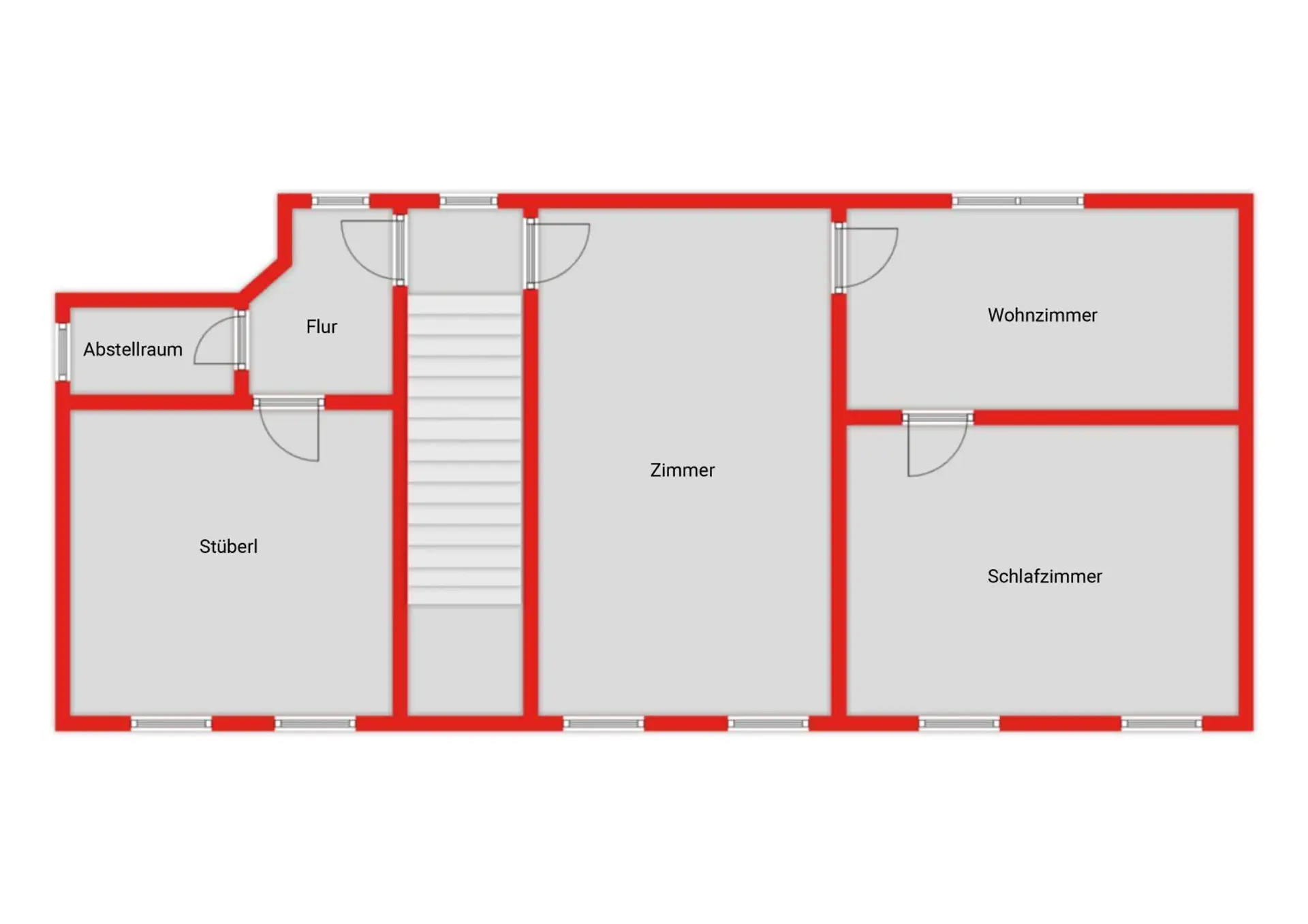
Plan OG
Plan Gewölbekeller

Preisinformationen

Kaufpreis:
54.500 €
Preisinfos:
Fixpreis
Provision:
3.00 %

Fakten

Objektnummer:
8264
Objekttyp:
Haus
Wohnfläche:
105 m²
Grundstücksfläche:
1.377 m²
Zimmer:
5
Badezimmer:
1
Toilette:
1
Verfügbarkeit:
Verfügbar

Beschreibung

Besichtigungstag am Mi, 08.04. ab 10 Uhr. Hier gleich einen Termin buchen: https://www.remax.at/de/1603-8264#terminanfrage-messages

 

* Wohnhaus mit Nebengebäude in Weiten
* Pöggstall ca. 7 Autominuten entfernt
* renovierungsbedürftig
* Grundstücksgröße ca. 1.377 m²
* Wohnfläche ca. 105 m²
* 5 Zimmer
* Gewölbekeller
* Schuppen und Lagerräume
* Einzelofenheizung
* an das öffentliche Kanal- und Wasserversorgungsnetz angeschlossen
* HWB: 374

Angeboten um € 54.500,-

Beim angegebenen Preis handelt es sich um einen Richtpreis. Aufgrund der Nachfrage kann es auch dazu kommen, dass der tatsächliche Kaufpreis über oder unter dem Angebotspreis liegt. Die Zustimmung erfolgt ausschließlich vom Abgeber, durch Gegenzeichnung des gestellten Angebotes.

Wir weisen darauf hin, dass zwischen dem Vermittler und dem zu vermittelnden Dritten ein familiäres oder wirtschaftliches Naheverhältnis besteht.

Der Vermittler ist als Doppelmakler tätig.
Angaben gemäß gesetzlichem Erfordernis:
Heizwärmebedarf: 374.0 kWh/(m²a)
Faktor Gesamtenergieeffizienz: 4.36

Sie überlegen Ihre Immobilie zu verkaufen oder zu vermieten?
Makler? Macht Sinn! Am Besten gleich zur Nr. 1.
Jetzt kostenlosen Beratungstermin vereinbaren unter 07472/646 80.
Beschreibung weiterlesen

Energieeffizienz

fGEE:
4,36
Energieausweisart:
Energiebedarfs-ausweis

Lageplan

3653 Weiten | Melk

Lade...
Nicole Jerabek

Nicole Jerabek

RE/MAX Immo-Team in Amstetten

Lade...

Fotomix

Wohnhaus Raxendorf Küche EG Zimmer im Obergeschoß Zimmer OG mit Kamin Zimmer OG Badezimmer großer Raum OG großes Zimmer OG Garten - Wiesenfläche Haus mit Geräteschuppen Geräteschuppen Nebengebäude Außenansicht straßenseitige Ansicht Wohnhaus Ansicht von oben Wohnhaus am Waldrand Wohnhaus mit Nebengebäude Haus mit Geräteschuppen Plan EG Plan OG Plan Gewölbekeller