NEU - Sanierungsbedürftiges Zweifamilienhaus in grüner Ruhelage

Haus zum Kauf in 2500 Baden - Kaufpreis: 559.000 € / Objektnummer: 2051
Ausstattung: Boden Bad Möbliert Kabel/Satelliten-TV Garage Parkplatz Terrasse

Preisinformationen

Kaufpreis:
559.000 €
Vermittlungsprovision:
Ja
Provision:
3% des Kaufpreises zzgl. 20% USt.

Fakten

Objektnummer:
2051
Objekttyp:
Haus
Terrasse:
2
Keller Fläche:
85 m²
Wohnfläche:
166 m²
Grundstücksfläche:
619 m²
Zimmer:
6
Badezimmer:
2
Toilette:
2
Baujahr:
1962
Zustand:
Sanierungsbedürftig
Verfügbarkeit:
Verfügbar

Beschreibung

Zum Verkauf gelangt ein sanierungsbedürftiges Zweifamilienhaus in schöner, grüner Umgebung mit insgesamt 6 Zimmern.

Das Haus verfügt über zwei getrennte Wohneinheiten mit idealen Grundrissen sowohl im Erdgeschoss als auch im Obergeschoss. Jede Einheit ist mit einer eigenen Küche, einem Badezimmer sowie einem WC ausgestattet und eignet sich daher hervorragend für zwei Familien, Generationenwohnen oder zur Kombination von Wohnen und Vermieten.

Die Liegenschaft entspricht nicht mehr den heutigen Wohnstandards und bedarf einer Generalsanierung. Aufgrund der großzügigen Raumaufteilung und der durchdachten Grundrisse bietet das Haus jedoch ein äußerst attraktives Potenzial zur individuellen Gestaltung. Eine Garage befindet sich direkt im Haus.

Der herrliche Garten mit gewachsenem Baumbestand schafft eine besonders angenehme Atmosphäre. Die sehr grüne Lage rundet dieses interessante Angebot ab.

DETAILS ZUR IMMOBILIEN AUF EINEN BLICK:

* Wohnfläche: ca. 166m²
* Keller: ca.60m²
* Grundstücksgröße: 619m²
* 6 Zimmer
* Voll unterkellert
* Garage ca. 25m²
* Großzügiger Garten
* Feine Badener Lage
* Energieausweis in Arbeit
* Sofort verfügbar

Die Raumaufteilung gliedert sich wie folgt:
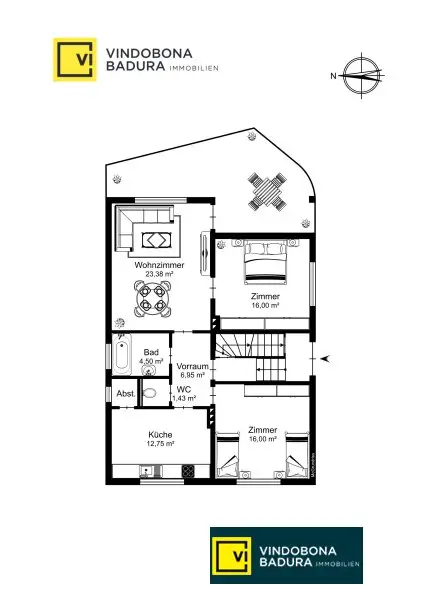
Erdgeschoss: Stiegenhaus (8,00m²), Vorraum (6,95m²), Badezimmer (4,50m²), WC (1,43m²), Abstellraum (1,10m²), Küche (16,00m²), Zimmer 1 (16,00m²), Zimmer 2 (16,00m²), Wohnzimmer (23,38m²);
Obergeschoss: Stiegenhaus (8,00m²), Vorraum (4,95m²), Badezimmer (4,50m²), WC (1,43m²), Abstellraum (1,10m²), Küche (12,75m²), Zimmer 1 (16,00m²), Zimmer 2 (16,00m²), Wohnzimmer (23,38m²);
Keller

Bebauungsbestimmungen:
3 WE möglich, BK I/II, 30%

***Lassen Sie sich zu einer Besichtigung einladen und vereinbaren Sie mit uns einen individuellen Termin***

IHRE FINANZIERUNG IST GESICHERT?

Ein gutes Geschäft haben Sie erst gemacht, wenn alles zusammenpasst. Die Immobilie, der Kaufpreis, die Finanzierung und die Abwicklung. Damit Sie ihr neues Zuhause auch genießen können kommt es gerade auf die ideale Finanzierung an.
Wir vermitteln Ihnen nicht nur die passende Immobilie, wir verhelfen Ihnen auch zur maßgeschneiderten Finanzierung.
Nützen Sie unser kostenloses Finanzservice! Sie werden begeistert sein! Unverbindliche Finanzierungsangebote erhalten Sie innerhalb von 3-5 Werktage ab Erhalt aller notwendigen Unterlagen!

Hinweis gemäß Energieausweisvorlagegesetz: Ein Energieausweis wurde vom Eigentümer bzw. Verkäufer, nach unserer Aufklärung über die generell geltende Vorlagepflicht, sowie Aufforderung zu seiner Erstellung noch nicht vorgelegt. Daher gilt zumindest eine dem Alter und der Art des Gebäudes entsprechende Gesamtenergieeffizienz als vereinbart. Wir übernehmen keinerlei Gewähr oder Haftung für die tatsächliche Energieeffizienz der angebotenen Immobilie.

Der Vermittler ist als Doppelmakler tätig.

Infrastruktur / Entfernungen

Gesundheit
Arzt <500m
Apotheke <1.500m
Klinik <1.000m
Krankenhaus <2.500m

Kinder & Schulen
Schule <1.000m
Kindergarten <500m
Höhere Schule <9.500m
Universität <10.000m

Nahversorgung
Supermarkt <500m
Bäckerei <1.500m
Einkaufszentrum <6.000m

Sonstige
Bank <1.000m
Geldautomat <1.000m
Post <1.000m
Polizei <1.500m

Verkehr
Bus <500m
Bahnhof <1.500m
Autobahnanschluss <3.000m
Straßenbahn <1.500m
Flughafen <4.500m

Angaben Entfernung Luftlinie / Quelle: OpenStreetMap
Beschreibung weiterlesen

Lage und Verkehrsanbindung

Grüne, ruhige Wohnlage mit Nähe zu Parkanlagen und Naherholungsgebieten.

Gute Anbindung an den öffentlichen Verkehr:
• Der Baden Bahnhof ist gut erreichbar – mit Zugverbindungen nach Wien und anderen Regionen.
• Zusätzlich gibt es lokale Haltestellen wie Baden Josefsplatz (Straßenbahn/Badener Bahn).

Nahversorgung & Infrastruktur sind in Baden sehr gut: Geschäfte des täglichen Bedarfs, Supermärkte, Schulen, Kindergärten, Ärztepraxen und Apotheken sind in der Stadt gut verteilt und meist schnell erreichbar.
Pendler-Freundlich: Die Nähe zur A2 Südautobahn und zur Bahnverbindung macht Baden attraktiv für Personen mit Arbeitsort Wien oder anderen Zentren.

Grundrisse

Lageplan

2500 Baden | Baden

Lade...
Oliver Badura

Oliver Badura
Geschäftsführer

Badura Immobilien GmbH

Lade...

Fotomix

Bild 1 Bild 2 Bild 3 Bild 4 Bild 5 Bild 6 Bild 7 Bild 8 Bild 9 Bild 10 Bild 11 Bild 12 Bild 13 Bild 14 Bild 15 Bild 16 Bild 17 Bild 18