NEU - SCHEIBBS XVI/2, geförderte Mietwohnung mit Kaufoption, 1/5, 1000/00010330/00001105

Wohnung zur Miete in 3270 Scheibbs - Gesamtmiete: 1.112,53 €
Ausstattung: Außenparkplatz

Preisinformationen

Gesamtmiete:
1.112,53 € / Monat
Vermittlungsprovision:
Ja

Fakten

Objekttyp:
Wohnung
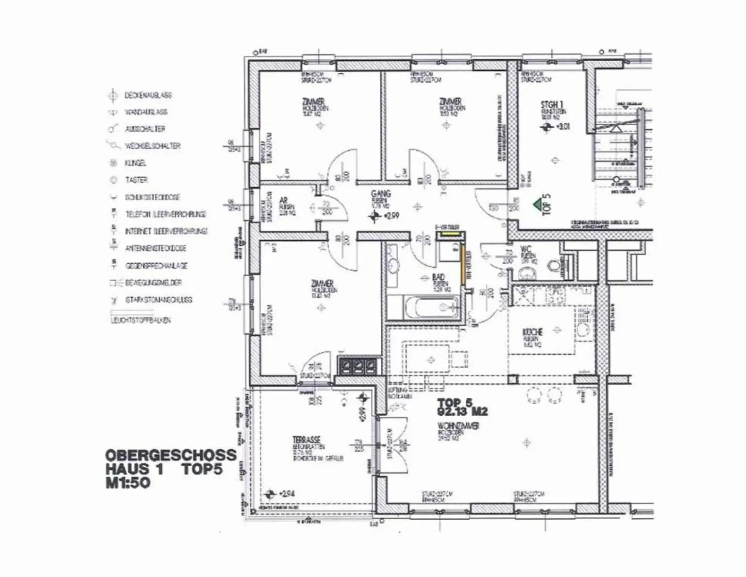
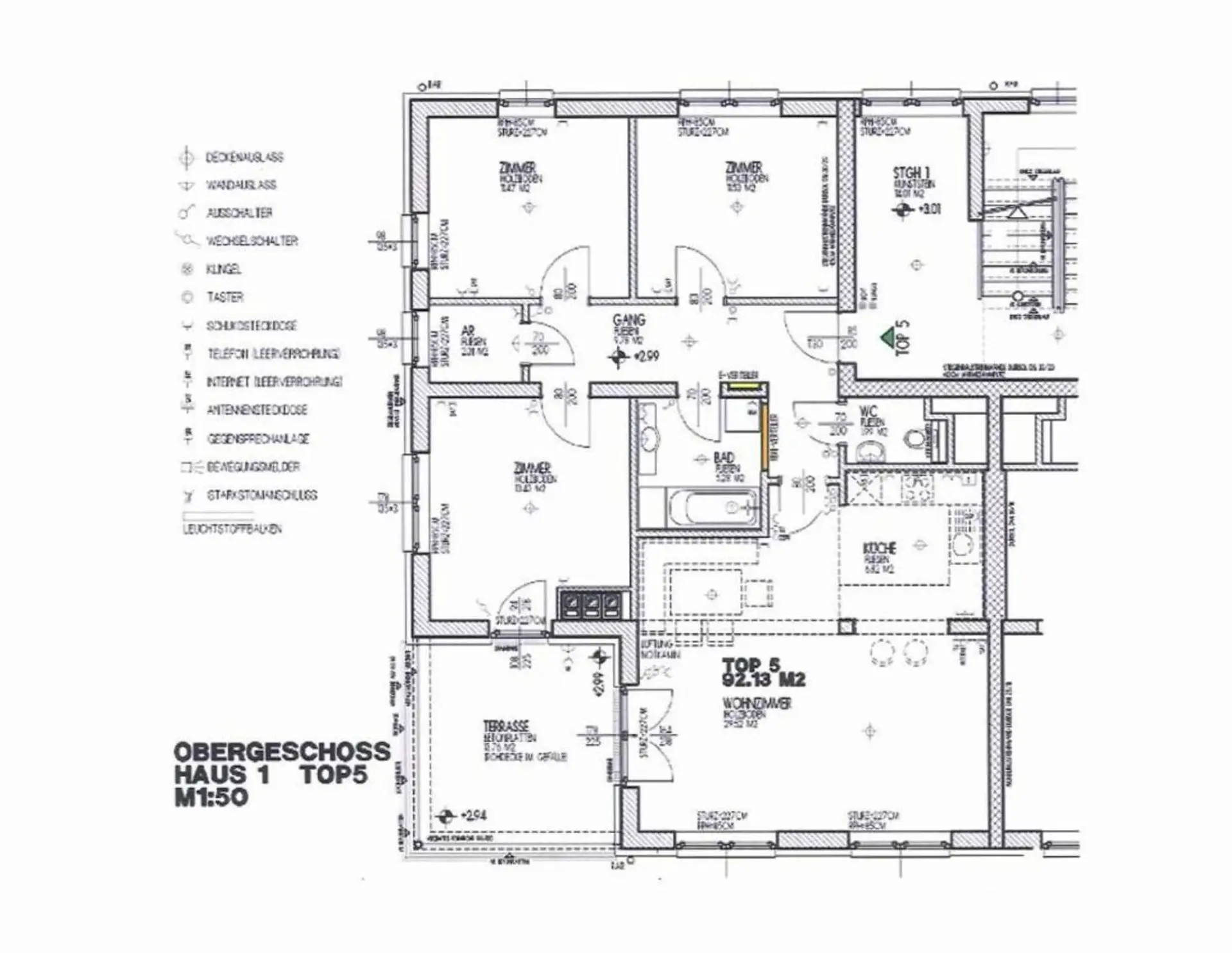
Nutzfläche:
92 m²
Zimmer:
4
Neubau:
Ja
Verfügbarkeit:
Verfügbar

Beschreibung

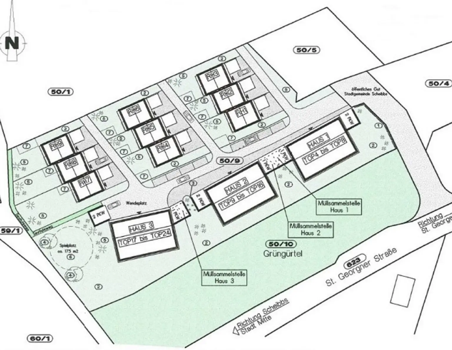
Auf den Edenberggründen in Scheibbs wurden 24 Wohnungen sowie 9 Reihenhäuser in Niedrigenergiebauweise mit kontrollierter Wohnraumlüftung errichtet. Die Einheiten haben Balkone/Loggien und teilweise Eigengärten mit Terr…
Beschreibung weiterlesen

Alpenland, Gemeinnützige Bau-, Wohn- und Siedlungsgenossenschaft

Lade...

Fotomix

Bild 1 Bild 2 Bild 3 Bild 4 Bild 5 Bild 6