NEU - Schneebergblick - 3 Zimmer Mietwohnung mit Parkplatz auf ca. 82m² Wfl.!

Wohnung zur Miete in 2811 Wiesmath - Gesamtmiete: 699,00 € / Objektnummer: 3127
Ausstattung: Boden Bad Parkplatz Außenparkplatz Zentralheizung

Preisinformationen

Gesamtmiete:
699,00 € / Monat
Betriebskosten netto:
144,43 € / Monat
Heizkosten netto:
100,00 €
Kaution:
2.097,00 €
Provision:
Gemäß Erstauftraggeberprinzip bezahlt der Abgeber die Provision.

Fakten

Objektnummer:
3127
Objekttyp:
Wohnung
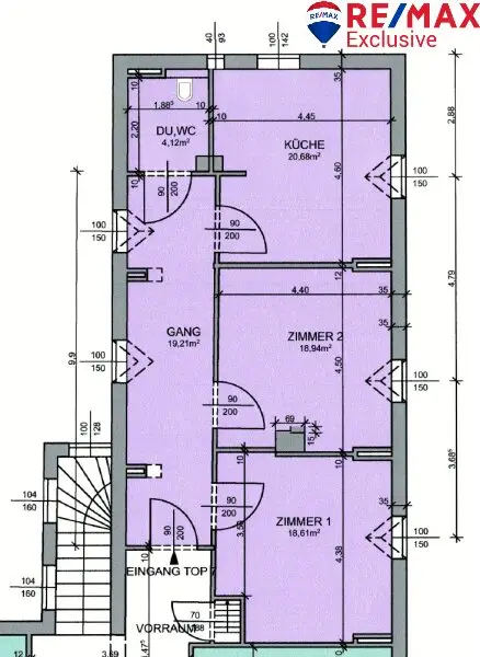
Wohnfläche:
81,56 m²
Zimmer:
3
Badezimmer:
1
Toilette:
1
Stockwerk:
2
Baujahr:
1910
Verfügbarkeit:
Verfügbar

Beschreibung

Diese helle und hochwertig sanierte Dachgeschosswohnung in Wiesmath überzeugt durch ihren Erstbezugszustand, eine angenehme Raumaufteilung und einen beeindruckenden Panoramablick auf Schneeberg und Rax.

Die Wohnung befindet sich im 2. Stock (Dachgeschoss) eines gepflegten Wohnhauses und bietet eine Wohnfläche von ca. 81,56 m². Große Fensterflächen sorgen für eine freundliche, lichtdurchflutete Atmosphäre.

Ein besonderes Highlight ist die neue Küche inkl. aller Geräte (2025). Die Wohnung wurde 2024/2025 umfassend saniert:

* Elektrik vollständig erneuert (Leitungen, Steckdosen, Schalter, Beleuchtung)
* Elektrobefund vorhanden
* Wohnung frisch ausgemalt
* Echtholzdielenböden geschliffen und eingelassen (2025)
* neuer Warmwasserboiler
* neue Sicherheitstüre
* Kunststofffenster mit Doppelverglasung

Die Beheizung erfolgt über Fernwärme, welche aliquot über die Betriebskosten abgerechnet und bereits in der monatlichen Miete inkludiert ist.

Zur Wohnung gehören ein Parkplatz im Innenhof sowie ein Kellerabteil, das derzeit neu situiert wird.

Eine Bushaltestelle mit direkter Anbindung zum Bahnhof Wiener Neustadt liegt nur wenige Schritte (ca. 20 m) von der Wohnung entfernt.

Diese Mietwohnung eignet sich ideal für alle, die ruhiges Wohnen und einen einzigartigen Bergblick in naturnaher Umgebung suchen.

 

Einfach anrufen und einen Besichtigungstermin für weiter Details vereinbaren.

Monatliche Miete: € 699,00,- (inkl. BK, Parkplatz & Heizkosten)

Die Wohnung ist ab sofort verfügbar.

 

Aufgrund der Nachweispflicht gegenüber dem Eigentümer ersuchen wir um Verständnis, dass nur Anfragen mit der Angabe der vollständigen Anschrift und Telefonnummer bearbeitet werden können.

Wir weisen auf Ihre 14-tägige Rücktrittsfrist (gemäß § 11 FAGG ) hin. Um Ihre Rechte zu wahren, können nur Anfragen mit vollständigen Kontaktdaten (Name, Adresse, Telefon, Email) beantwortet werden.

Vor Ablauf der 14-tägigen Rücktrittsfrist werden wir gerne für Sie tätig, wenn Sie gesetzeskonform (FAGG) uns ausdrücklich (am einfachsten per E-Mail) dazu auffordern.

Wenn der Kaufvertrag/der Mietvertrag nicht zustande kommt, bleibt unsere Tätigkeit für Sie vollkommen kostenlos.

Gewährleistung:

Die Verkäuferseite gewährleistet, dass der Vertragsgegenstand ihr unbeschränktes Eigentum und frei von Geldlasten, Bestandrechten und sonstigen Rechten Dritter ist.

Ansonsten wird jede Gewährleistung der Verkäuferseite ausgeschlossen und festgestellt, dass sich dieser Gewährleistungsausschluss sowohl auf bestimmte als auch auf gewöhnlich vorausgesetzte Eigenschaften des Vertragsgegenstandes wie beispielsweise Lage, Größe, Zustand, Abnützung, Widmung, Beschaffenheit, Ertrag und Verwendungsmöglichkeit bezieht.

Der Immobilienmakler erklärt, dass er – entgegen dem in der Immobilienwirtschaft üblichen Geschäftsgebrauch des Doppelmaklers – einseitig nur für den Vermieter tätig ist.

Infrastruktur / Entfernungen

Gesundheit
Arzt <500m

Kinder & Schulen
Schule <500m
Kindergarten <500m
Universität <9.500m

Nahversorgung
Supermarkt <500m
Bäckerei <500m

Sonstige
Bank <500m
Geldautomat <500m
Post <7.500m
Polizei <500m

Verkehr
Bus <500m
Autobahnanschluss <8.000m

Angaben Entfernung Luftlinie / Quelle: OpenStreetMap
Beschreibung weiterlesen

Lage und Verkehrsanbindung

Durch die zentrale Lage der Wohnung befinden sich zahlreiche Einrichtungen des täglichen Bedarfs in unmittelbarer Nähe, darunter ein ADEG-Markt, das Gemeindeamt, Zahnarzt, Schule und Kindergarten, Physiotherapie, Rotes Kreuz, Feuerwehr, Bank, Baustoffhandel, Glaserei, Gastronomiebetriebe, eine Tankstelle, eine Konditorei sowie ein Autohändler.

Adeg, Gemeindeamt, Bank

Energieeffizienz

HWB:
269 kWh/(m²*a)
HWB Klasse:
G
fGEE:
2,76
fGEE Klasse:
E
Energieausweisart:
Energiebedarfs-ausweis
Gültig bis:
07.07.2031

Dokumente

Grundriss

Lageplan

2811 Wiesmath | Wiener Neustadt (Land)

Lade...
Florian Skalnik, BSc MBA

Florian Skalnik, BSc MBA
Immobilienberater

RE/MAX Exclusive Brugger KG

Lade...

Fotomix

Bild 1 Bild 2 Bild 3 Bild 4 Bild 5 Bild 6 Bild 7 Bild 8 Bild 9 Bild 10 Bild 11 Bild 12 Bild 13 Bild 14 Bild 15 Bild 16 Bild 17