NEU - Schöne 2-Zimmer-Wohnung mit Terrasse!

Wohnung zur Miete in 1170 Wien - Gesamtmiete: 944,88 € / Objektnummer: 247/22077
Ausstattung: Fahrstuhl Terrasse
Außenansicht
Wohnzimmer
Wohnzimmer I
Schalfzimmer
Schalfzimmer I
Badezimmer
Küche
Balkon
Küche I
Vorraum
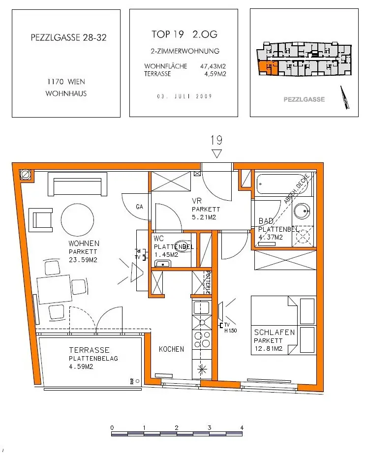
Plan
Lageplan

Preisinformationen

Gesamtmiete:
944,88 € / Monat
Nettomiete:
746,72 € / Monat
Betriebskosten netto:
112,26 € / Monat
Umsatzsteuer:
85,90 €
Preisinfos:
Abwicklung und Durchführung Mietvertrag: € 375,-
Kaution:
3.000,00 €

Fakten

Objektnummer:
247/22077
Objekttyp:
Wohnung
Terrasse:
1
Wohnfläche:
47,43 m²
Zimmer:
2
Badezimmer:
1
Toilette:
1
Stockwerk:
2
Baujahr:
2009/Neubau
Neubau:
Ja
Verfügbarkeit:
Verfügbar

Beschreibung

Zur Anmietung nach Absprache steht diese super aufgeteilte 2-Zimmer-Wohnung mit Terrasse in der Pezzlgasse im 17. Bezirk, für Sie bereit. Bitte zu beachten - die Wohnung ist noch bewohnt - daher müssen wir uns mit Terminen ein wenig gedulden. Die ca. 47 m² große Wohnung im 2. Obergeschoss eines gepflegten Neubaus umfasst einen Vorraum, eine Wohnküche, ein Schlafzimmer, ein Badezimmer und eine separate Toilette. Einige Highlights: - hervorragender Grundriss - ca. 4 m² großer Terrasse - voll ausgestattete Küche - Badezimmer mit Badewanne und Waschmaschinenanschluss - optimale öffentliche Anbindungen (Straßenbahnlinien 9 und 43) - Restaurants, Cafés und Einkaufsmöglichkeiten in unmittelbarer Nähe Selbstverständlich stehen sowohl Fernseh- als auch Internetanschluss sowie Lift und ein Kellerabteil zur Verfügung. Der Mietzins beläuft sich auf Euro 944,88 inkl. Betriebskosten und Umsatzsteuer. Die Heiz- und Warmwasserversorgung erfolgt per Gaszentralheizung. Die Kosten dafür betragen: - Heizung: Euro 35,86 inkl. USt. - Warmwasser: Euro 18,26 inkl. USt. Somit beläuft sich die monatliche Gesamtbelastung dieser Wohnung auf Euro 999,- inkl. Betriebskosten, Heizung, Warmwasser und Umsatzsteuer. Per Telefon werden keine Termine vergeben! Wir bitten Sie, ausschließlich das Kontaktformular der Immobilienplattformen für Anfragen zu nutzen. Nach Erhalt unserer E-Mail antworten Sie bitte auf dieses E-Mail mit Ihrem Besichtigungswunsch. Wir möchten darauf hinweisen, dass unsere Antwort möglicherweise in Ihrem Spamordner landen könnte. Wir freuen uns auf Ihre Anfrage und einen gemeinsamen Besichtigungstermin!
Beschreibung weiterlesen

Lage und Verkehrsanbindung

Kalvarienberggasse, Elterleinplatz

Energieeffizienz

HWB:
41,91 kWh/(m²*a)
HWB Klasse:
B
fGEE:
0,85
fGEE Klasse:
A

Grundrisse

Tina Rivic

Tina Rivic

IMV Immobilienmakler

Lade...

Fotomix

Außenansicht Wohnzimmer Wohnzimmer I Schalfzimmer Schalfzimmer I Badezimmer Küche Balkon Küche I Vorraum