NEU - Schöne 2 Zimmerwohnung mit Loggia nähe Hauptbahnhof

Wohnung zur Miete in 1100 Wien - Gesamtmiete: 928,99 € / Objektnummer: 23390
Ausstattung: Barrierefrei Boden Fahrstuhl Wohnküche / offene Küche Bad Abstellraum Zentralheizung Loggia

Preisinformationen

Gesamtmiete:
928,99 € / Monat
Betriebskosten netto:
101,62 € / Monat
Umsatzsteuer:
84,45 €
Kaution:
2.786,97 €
Provision:
Gemäß Erstauftraggeberprinzip bezahlt der Abgeber die Provision.

Fakten

Objektnummer:
23390
Objekttyp:
Wohnung
Loggia:
1
Wohnfläche:
50,23 m²
Loggia Fläche:
3,27 m²
Zimmer:
2
Badezimmer:
1
Toilette:
1
Stockwerk:
3
Neubau:
Ja
Zustand:
Gepflegt
Verfügbarkeit:
Verfügbar

Beschreibung

Schöne 2 Zimmerwohnung mit Loggia nähe Hauptbahnhof

Mit dem einen Fuß mitten in einem spannenden neuen Stadtteil, mit dem anderen fast im Herzen des alten Wien: Direkt bei der BahnhofCity und zugleich in Belvedere- und Zentrumsnähe ist in einem chancenreichen, urbanen Wohnviertel eine Wohnanlage entstanden. Zwischen Wiedner Gürtel, Sonnenwendgasse und der Gudrunstraße gelegen, bietet diese Wohnung beste Infrastruktur und Lebensqualität. Geschäfte des täglichen Bedarfs sind ebenso vorhanden, wie eine attraktive Shopping- und Gastronomiezeile, die an die nahe BahnhofCity angeschlossen ist. Der einmalige Mix aus Urbanität, Zentrumsnähe und bester Infrastruktur ist hier zu 100 % gegeben. Darüber hinaus macht ein acht Hektar großer Park das pulsierende neue Wohnviertel besonders attraktiv und ein gut ausgebautes Rad- und Fußwegenetz sorgt für grünen Touch und hohe Lebensqualität.

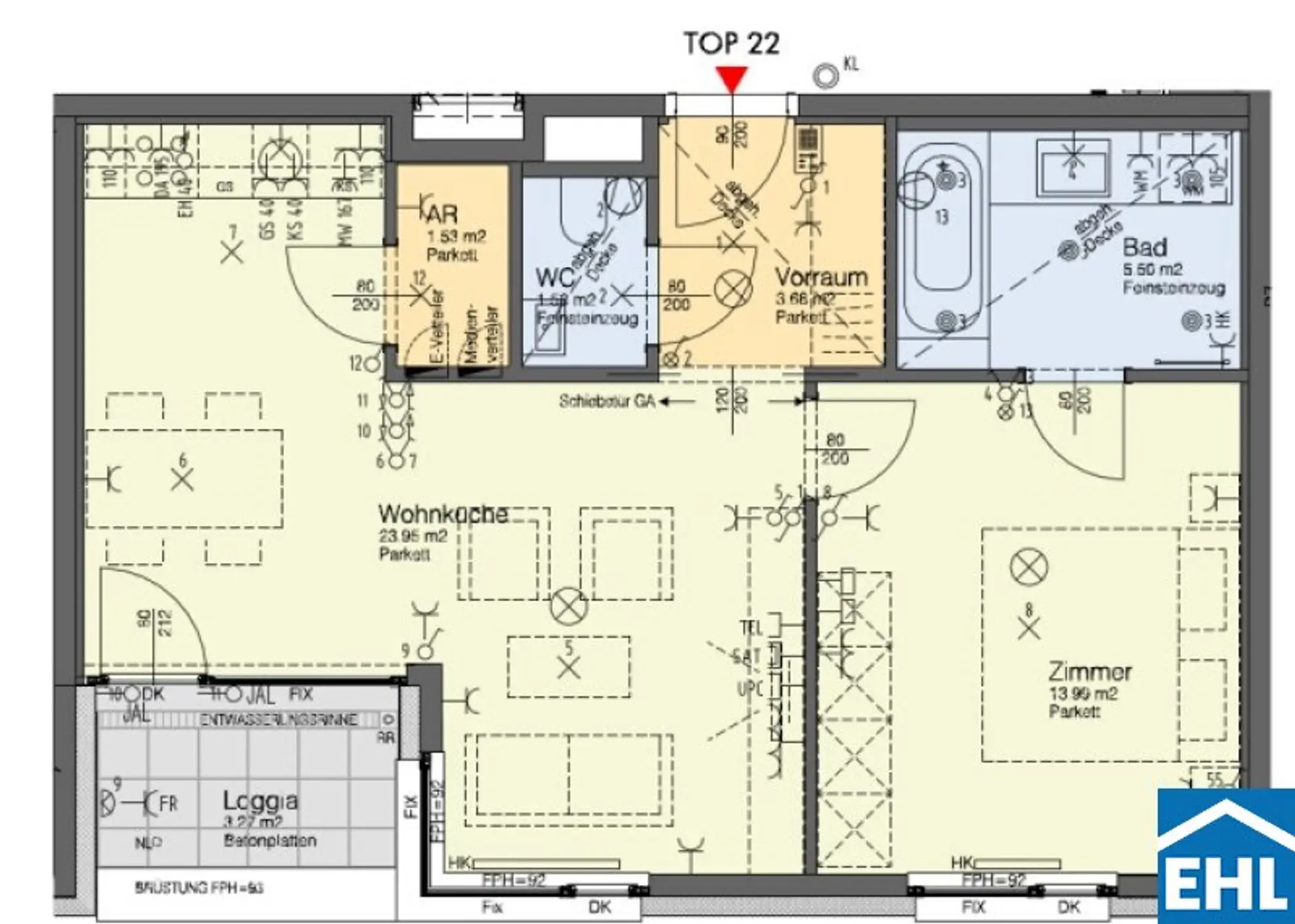
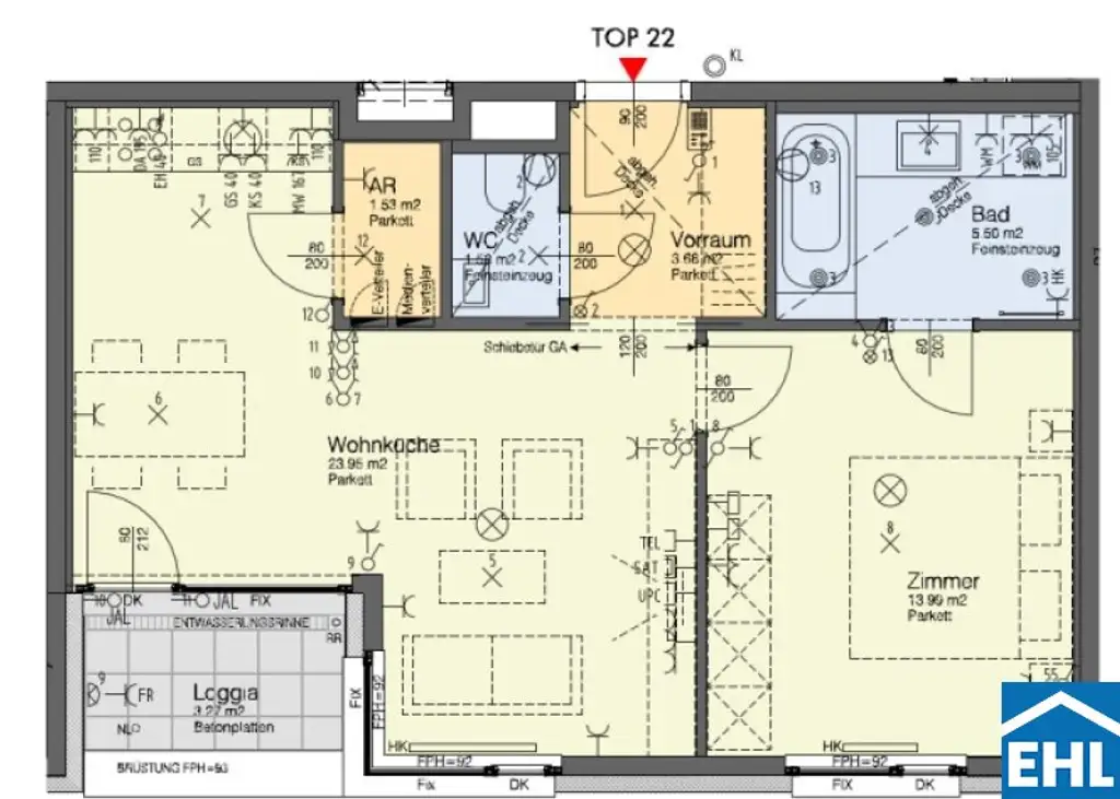
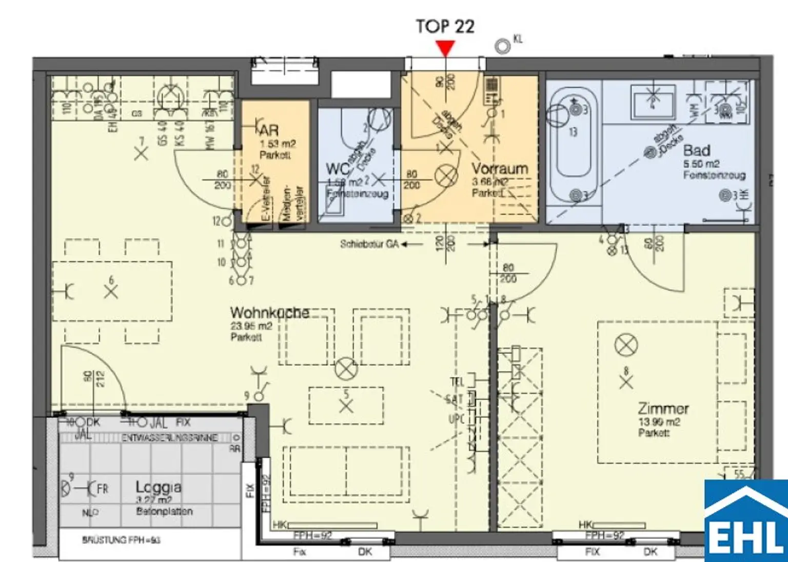
Die Wohnung im 3. Obergeschoss verfügt über eine großzügige Wohnküche, ein Schlafzimmer, ein Badezimmer mit Wanne, ein separates WC, einen Abstellraum, einen Vorraum und eine Loggia.

Aktuell ist die Wohnung noch bewohnt, kann aber nach Absprache mit dem derzeitigen Mieter besichtigt werden.

Bei den Fotos handelt es sich um Fotos einer plangleichen Wohnung der selben Stiege.

Ausstattung

* vollausgestattete Einbauwohnküche
* hochwertiges Parkett in den Wohnräumen, edles Feinsteinzeug in den Sanitärräumen
* Wannenbad mit Waschmaschinenanschluss, separates WC
* Telefon, Kabel und SAT-Anschlüsse
* Kinderwagen- und Fahrradabstellraum, Waschküche, Lift, Kellerabteil für jede Wohnung

Das Gebäude ist nicht barrierefrei.

Öffentliche Verkehrsmittel

* U-Bahnlinie U1 "Hauptbahnhof"
* Straßenbahnlinie: O, D, 18
* Buslinie: 13A, 69A
* Schnell- und Regionalzüge ab Hauptbahnhof

Befristung: 5 Jahre, 1 Jahr Kündigungsverzicht, 3 Monate Kündigungsfrist

Heizung und Warmwasser werden nach Verbrauch abgerechnet.

Nebenkosten
3 BMM Kaution, Vertragserrichtungskosten

Wir weisen darauf hin, dass zwischen dem Vermittler und dem zu vermittelnden Dritten ein familiäres oder wirtschaftliches Naheverhältnis besteht.

Der Immobilienmakler erklärt, dass er – entgegen dem in der Immobilienwirtschaft üblichen Geschäftsgebrauch des Doppelmaklers – einseitig nur für den Vermieter tätig ist.

Infrastruktur / Entfernungen

Gesundheit
Arzt <250m
Apotheke <500m
Klinik <250m
Krankenhaus <1.500m

Kinder & Schulen
Schule <750m
Kindergarten <500m
Universität <1.250m
Höhere Schule <1.500m

Nahversorgung
Supermarkt <250m
Bäckerei <250m
Einkaufszentrum <500m

Sonstige
Geldautomat <250m
Bank <250m
Post <500m
Polizei <250m

Verkehr
Bus <250m
U-Bahn <500m
Straßenbahn <250m
Bahnhof <250m
Autobahnanschluss <1.750m

Angaben Entfernung Luftlinie / Quelle: OpenStreetMap
Beschreibung weiterlesen

Lage und Verkehrsanbindung

BahnhofCity

Energieeffizienz

HWB:
29,1 kWh/(m²*a)
HWB Klasse:
B
fGEE:
0,87
fGEE Klasse:
B
Energieausweisart:
Energiebedarfs-ausweis
Gültig bis:
17.03.2025

Grundriss

Lageplan

1100 Wien | Wien 10., Favoriten

Lade...
Egon-Adrian Toth, B.A.

Egon-Adrian Toth, B.A.
Mietwohnungen

EHL Wohnen GmbH

Lade...

Fotomix

Bild 1 Bild 2 Bild 3 Bild 4 Bild 5 Bild 6 Bild 7 Hausansicht