NEU - Schöne 3-Zimmerwohnung mit großer Terrasse in zentraler Lage

Wohnung zum Kauf in 8010 Graz - Kaufpreis: 199.000 € / Objektnummer: 11720
Ausstattung: Wohnküche / offene Küche Bad Terrasse

Preisinformationen

Kaufpreis:
199.000 €
Betriebskosten netto:
145,81 € / Monat

Fakten

Objektnummer:
11720
Objekttyp:
Wohnung
Terrasse:
1
Keller Fläche:
2,39 m²
Wohnfläche:
43,16 m²
Zimmer:
2
Badezimmer:
1
Toilette:
1
Stockwerk:
3
Baujahr:
2010
Zustand:
Gepflegt
Verfügbarkeit:
Verfügbar

Beschreibung

Die im Jahr 2010 errichtete Wohnanlage besteht aus vier Gebäuden, die durch eine gemeinsame Tiefgarage miteinander verbunden sind. Die Häuser verfügen über maximal vier Obergeschosse mit Lift und fügen sich harmonisch in die urbane Umgebung ein.

Jede Wohnung verfügt über eine moderne, möblierte Küche inklusive E-Geräten, sowie ein stilvoll ausgestattetes Badezimmer. Für zusätzlichen Stauraum sorgt ein eigenes Kellerabteil, das sich bequem im 1. Kellergeschoss befindet. Alle Wohnungen sind mit großzügigen Terrassen ausgestattet, die viel Freiraum im Freien bieten. Besonders hervorzuheben sind die fünf Penthouse-Wohnungen, die durch großzüge Grundrisse und herrliche Ausblicke überzeugen.

Grünflächen in den schönen Innenhöfen schaffen eine angenehme Atmosphäre und bieten Raum zur Erholung – ideal für Familien, Paare und alle, die Wert auf zeitgemäßes Wohnen mit hoher Lebensqualität legen.

Die Liegenschaft bietet ein Zuhause zum Wohlfühlen – mitten in Graz und doch im Grünen.

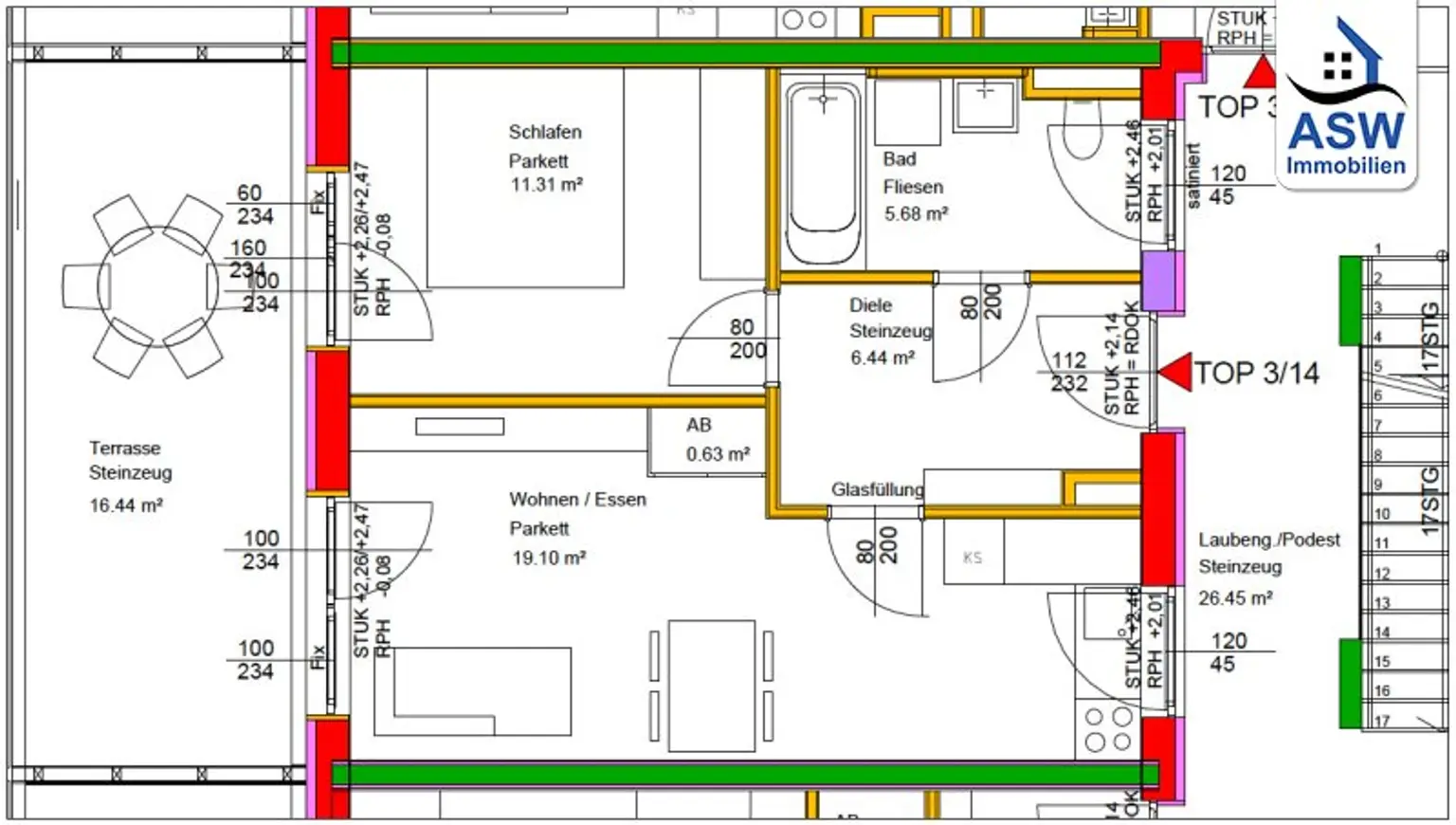
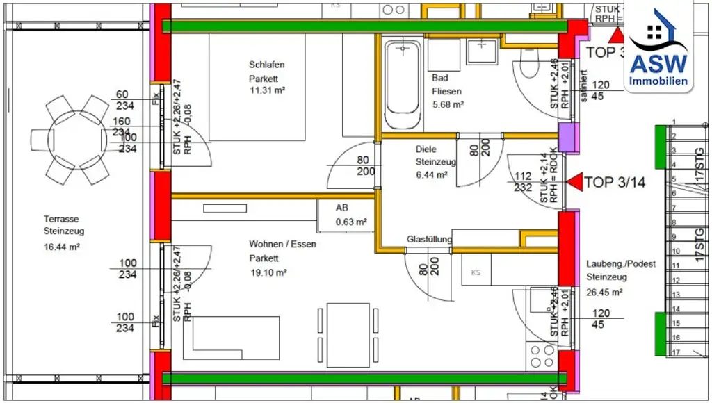
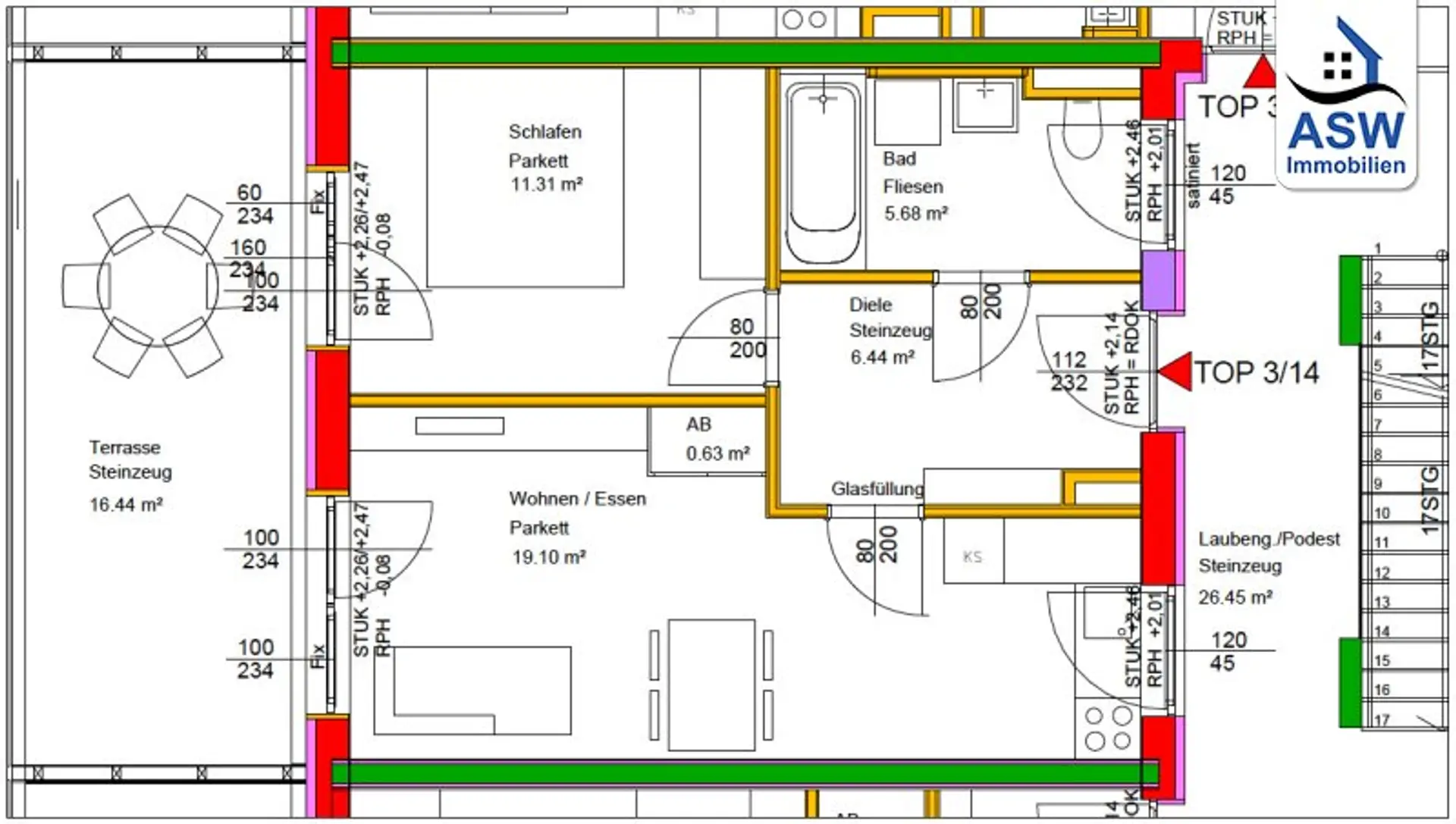
Diese perfekt aufgeteilte 3-Zimmerwohnung in einer sehr zentral gelegenen Wohnsiedlung im Bezirk Geidorf steht zum Verkauf:

- Wohn-/Essbereich mit Komplettküche inkl. E-Geräten
- 2 Schlafzimmer
- Badezimmer mit Badewanne und Waschmaschinenanschluss
- getrennte Toilette, Abstellraum
- großzügige, sonnige Terrasse

Ein Stellplatz in der hauseigenen Tiefgarage ist verpflichtend anzukaufen.
Es handelt sich um ebene Stellplätze (Kaufpreis ab € 16.000,–)

Lassen auch Sie sich von dieser Neubauwohnung überzeugen und vereinbaren Sie einen unverbindlichen Beratungs- und Besichtigungstermin per E-Mail unter office@aswimmo.at
Wir möchten höflich darauf hinweisen, dass im Falle eines Kaufs eine ortsübliche Maklerprovision zu bezahlen ist.

Wir weisen darauf hin, dass zwischen dem Vermittler und dem zu vermittelnden Dritten ein familiäres oder wirtschaftliches Naheverhältnis besteht.

Der Vermittler ist als Doppelmakler tätig.

Infrastruktur / Entfernungen

Gesundheit
Arzt 250m
Apotheke 750m
Klinik 750m
Krankenhaus 750m

Kinder & Schulen
Schule 500m
Kindergarten 250m
Universität 250m
Höhere Schule 500m

Nahversorgung
Supermarkt 750m
Bäckerei 750m
Einkaufszentrum 2.250m

Sonstige
Geldautomat 750m
Bank 750m
Post 750m
Polizei 1.500m

Verkehr
Bus 250m
Straßenbahn 750m
Bahnhof 1.500m
Autobahnanschluss 5.750m

Angaben Entfernung Luftlinie / Quelle: OpenStreetMap
Beschreibung weiterlesen

Lage und Verkehrsanbindung

Das Objekt liegt im beliebten Bezirk Geidorf, einer der gefragtesten Wohngegenden von Graz.
Die zentrale, aber ruhige Lage bietet eine perfekte Anbindung an Bus und Straßenbahn sowie kurze Wege zu WIFI Steiermark, FH Campus 02 und dem Hansa Privatklinikum.
Außerdem ist eine schnelle Verbindung ins Stadtzentrum sowie zu allen wichtigen Einrichtungen gegeben.
Der Schlossberg und die Murpromenade befinden sich ganz in der Nähe und laden zu vielfältigen Freizeitaktivitäten ein.
Geidorf überzeugt mit hoher Lebensqualität, grüner Umgebung und urbanem Flair – ideal für Wohnen mit Komfort und Lebensnähe.

Wifi Steiermark

Energieeffizienz

HWB:
60 kWh/(m²*a)
HWB Klasse:
C
fGEE:
1,02
fGEE Klasse:
C
Energieausweisart:
Energiebedarfs-ausweis
Gültig bis:
09.01.2032

Grundriss

Lageplan

8010 Graz | Graz (Stadt)

Lade...
ASW Immobilien Service & Consulting GmbH Geschäftsstelle Wien

ASW Immobilien Service & Consulting GmbH Geschäftsstelle Wien

ASW Immobilien Service & Consulting GmbH

Anrufen
Lade...

Fotomix

Bild 1 Bild 2 Bild 3 Bild 4 Bild 5 Bild 6 Bild 7 Bild 8