NEU - Schöne 3 Zimmerwohnung mit Küche - WG geeignet

Wohnung zur Miete in 4040 Linz - Gesamtmiete: 999,00 € / Objektnummer: 452
Ausstattung: Boden Wohnküche / offene Küche Bad Fahrradraum Fernwärme
Küche
Esszimmer
Wohnzimmer
Schlafzimmer
Vorzimmer
Bad/WC

Preisinformationen

Gesamtmiete:
999,00 € / Monat
Betriebskosten netto:
141,37 € / Monat
Umsatzsteuer:
90,82 €
Kaution:
3.500,00 €
Provision:
Gemäß Erstauftraggeberprinzip bezahlt der Abgeber die Provision.

Fakten

Objektnummer:
452
Objekttyp:
Wohnung
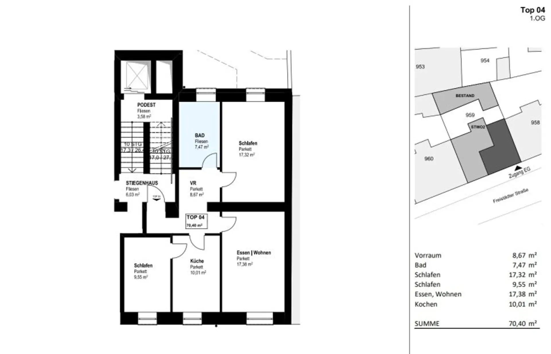
Wohnfläche:
70,4 m²
Zimmer:
3
Badezimmer:
1
Stockwerk:
1
Altbau:
Ja
Letzte Sanierung:
2019
Verfügbarkeit:
Verfügbar

Beschreibung

Diese attraktive 3-Zimmer-Wohnung befindet sich in der sanierten Wohnhausanlage in der Freistädterstraße 123 in Linz-Urfahr. Der Standort zeichnet sich durch seine tolle Anbindung an das öffentliche Verkehrsnetz wie auch an den Individualverkehr aus. Die Wohnung mit einer Wohnfläche von ca. 70,4 m² befindet sich im 1.OG und wurde 2024 saniert (Zweitbezug nach Sanierung). Die Wohnung ist mit Parkettboden und Fliesenbelag sowie einer nagelneuen Tischlerküche ausgestattet. Beheizt wird die Wohnung über die 2019 neu eingeleitete Fernwärmeheizung.

Die Wohnfläche von ca. 70,40 m² teilen sich wie folgt auf:

* Wohnzimmer ~ 17,38 m²
* Küche ~ 10,01 m²
* Schlafzimmer ~ 17,32 m²
* Schlafzimmer ~ 9,55 m²
* Bad mit Dusche und WC ~ 7,47 m²
* Vorraum ~ 8,67 m²

Darüber hinaus ist der Wohnung natürlich ein Kellerabteil zugeordnet.

Verfügbarkeit der Wohnung: ab 01.03.2026
Vertragsdauer befristet auf 4 Jahre (beinhaltet Mindestmietdauer v. 12 Monate)

Die Strom- und Heizkosten werden direkt vom Versorgungsunternehmen vorgeschrieben und abgerechnet und sind in der angeführten Gesamtmiete in Höhe von € 999,00 noch nicht enthalten!.

 

ACHTUNG: Es ist zwingend erforderlich das zumindest ein Mieter Hauptwohnsitz anmeldet!

 

Bei Interesse freuen wir uns auf Ihre Anfrage. Ihr SPERER Immobilien Team 
Stefan Pichler | 0676 4630535 | s.pichler@sperer-group.com

Wir weisen darauf hin, dass zwischen dem Vermittler und dem zu vermittelnden Dritten ein wirtschaftliches Naheverhältnis mit gesellschaftlicher Verflechtung besteht.

Der Immobilienmakler erklärt, dass er – entgegen dem in der Immobilienwirtschaft üblichen Geschäftsgebrauch des Doppelmaklers – einseitig nur für den Vermieter tätig ist.

Infrastruktur / Entfernungen

Gesundheit
Arzt <325m
Apotheke <300m
Klinik <1.675m
Krankenhaus <1.900m

Kinder & Schulen
Kindergarten <200m
Schule <275m
Universität <1.125m
Höhere Schule <1.650m

Nahversorgung
Supermarkt <250m
Bäckerei <325m
Einkaufszentrum <300m

Sonstige
Bank <275m
Geldautomat <275m
Post <1.075m
Polizei <1.475m

Verkehr
Bus <100m
Straßenbahn <300m
Bahnhof <375m
Autobahnanschluss <400m
Flughafen <4.125m

Angaben Entfernung Luftlinie / Quelle: OpenStreetMap
Beschreibung weiterlesen

Energieeffizienz

HWB:
31 kWh/(m²*a)
HWB Klasse:
B
fGEE:
0,84
fGEE Klasse:
B
Energieausweisart:
Energiebedarfs-ausweis

Dokumente

Grundriss

Lageplan

4040 Linz | Linz (Stadt)

Lade...
Stefan Pichler

Stefan Pichler
Projektleitung | Verkauf

SPERER Immobilien GmbH

Lade...

Fotomix

Küche Esszimmer Wohnzimmer Schlafzimmer Vorzimmer Bad/WC Bild 7 Bild 8 Bild 9 Bild 10