NEU - Schöne, sonnendurchflutete, ruhige und junge 94,00m² 3 Zi Wohnung in Viktring - Rekabachweg

Wohnung zum Kauf in 9073 Klagenfurt-Viktring - Kaufpreis: 298.000 € / Objektnummer: 1273745
Ausstattung: Barrierefrei Boden Fahrstuhl Wohnküche / offene Küche Bad Kabel/Satelliten-TV Tiefgarage Parkplatz Fernwärme Zentralheizung Loggia

Preisinformationen

Kaufpreis:
298.000 €
Vermittlungsprovision:
Ja
Provision:
3% des Kaufpreises zzgl. 20% USt.

Fakten

Objektnummer:
1273745
Objekttyp:
Wohnung
Loggia:
1
Keller Fläche:
8,6 m²
Loggia Fläche:
15,14 m²
Nutzfläche:
93,83 m²
Zimmer:
3
Badezimmer:
1
Toilette:
1
Baujahr:
2005
Neubau:
Ja
Zustand:
Gepflegt
Verfügbarkeit:
Verfügbar

Beschreibung

SCHÖNE, SONNENDURCHFLUTETE, RUHIGE UND JUNGE 94,00M² 3 ZI WOHNUNG IN VIKTRING - REKABACHWEG

Lage: Sonnige und ruhige Aussichtslage auf die Karawanken in Viktring - Rekabachweg

Nähe: Eurospar Viktring

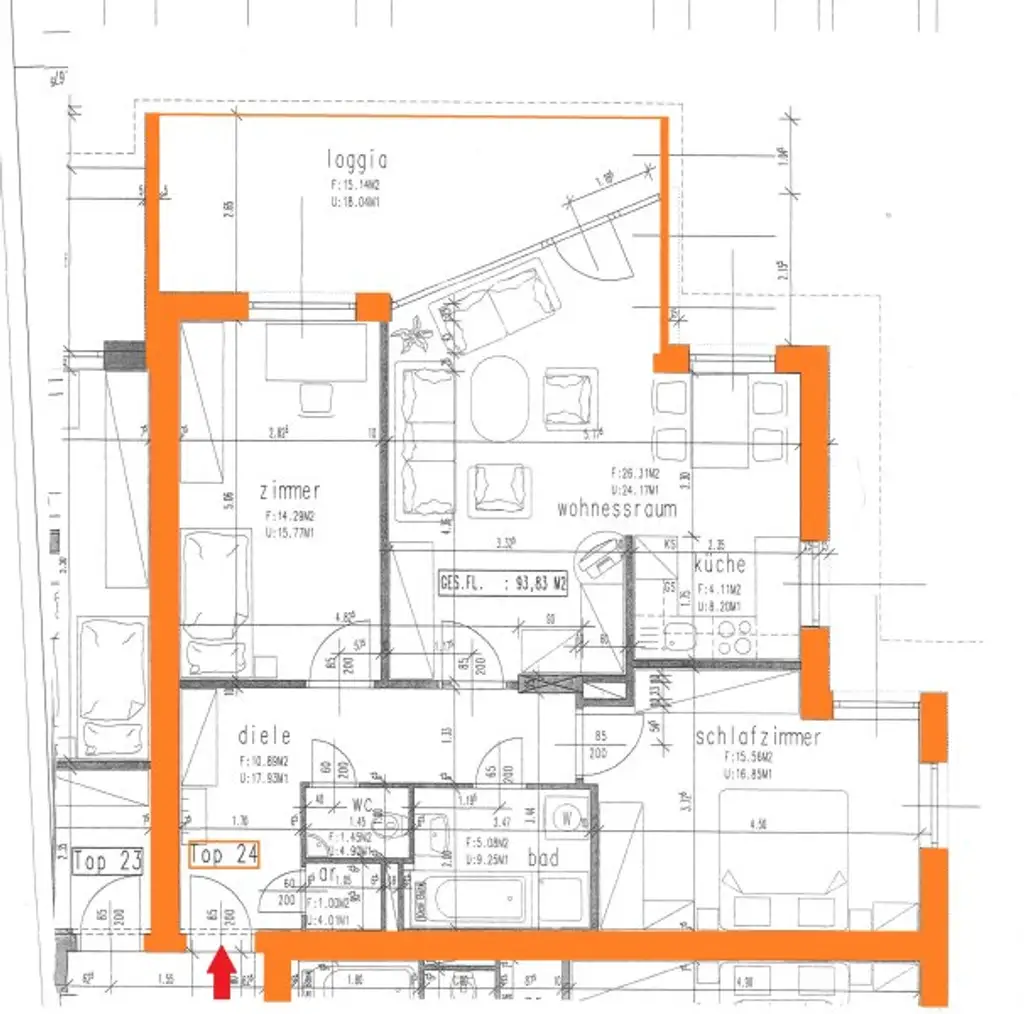
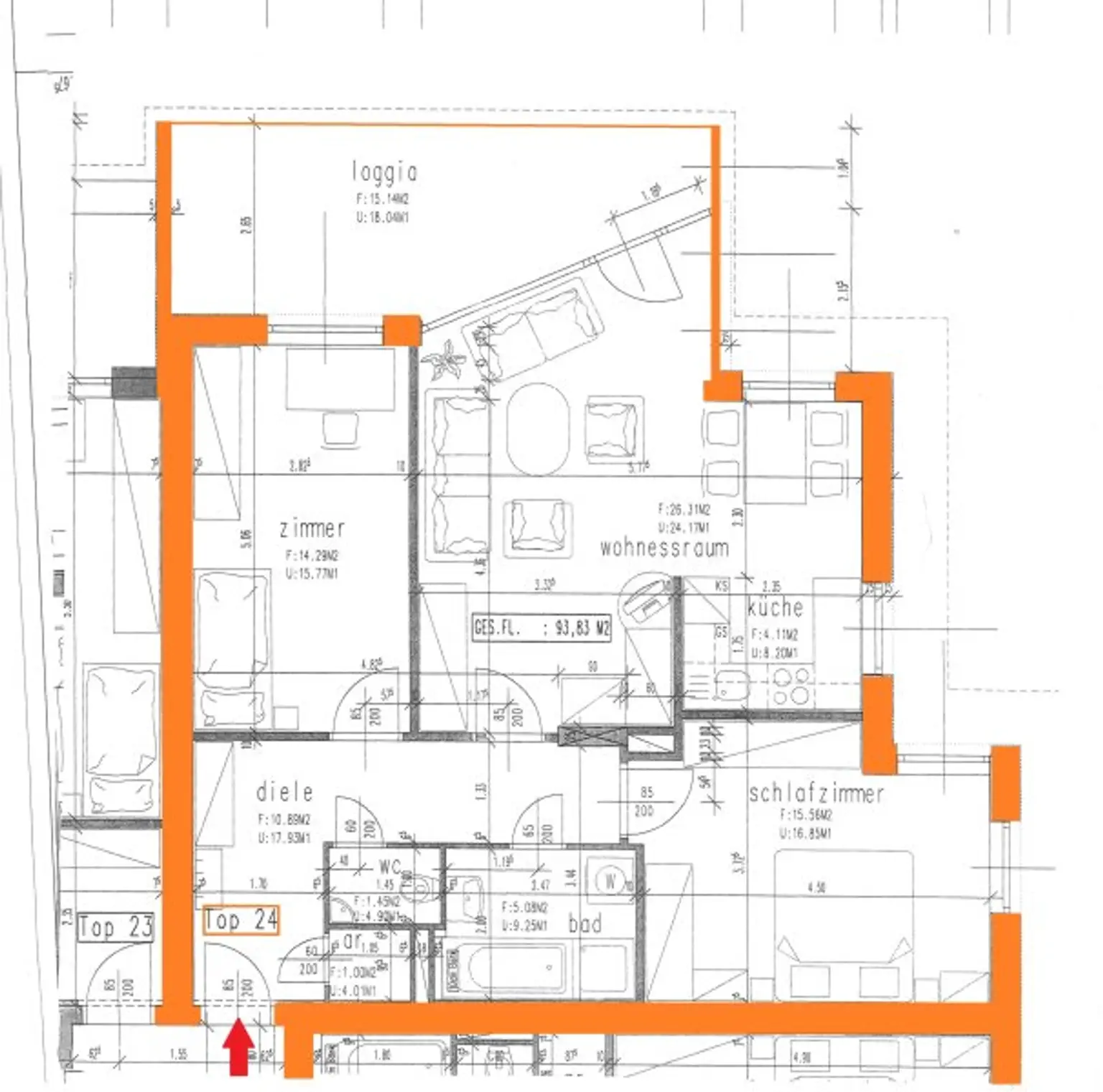
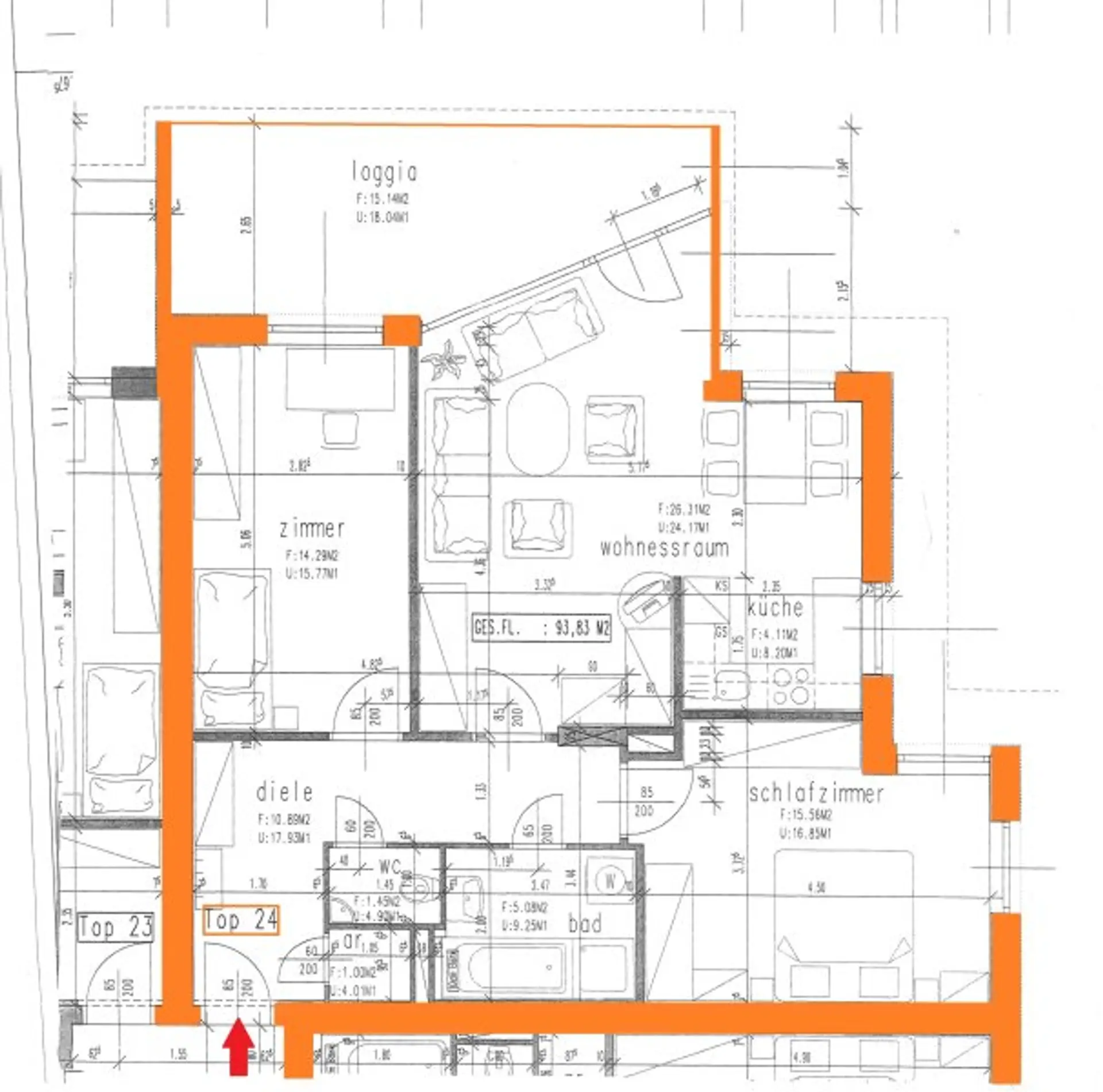
Wohn-/Nutzfläche ca.: 93,83m² inkl. ca. 15,14m² Süd-/Westloggia

Baujahr: Um die 2005 - sehr gepflegte Wohnhausanlage REALWOHNBAU - Massive und solide Bauqualität

Stockwerk: 3. OG - Wohnung TOP 24, Süd-/Westausrichtung

Ausstattung & Highlights: Große Loggia mit herrlichem freien Ausblick auf die Karawanken

Lift: JA - Barrierefrei

Beschreibung:

Schöne, sonnendurchflutete und ruhige 3 Zimmer Wohnung mit XL-Loggia in Viktring am Rekabachweg, in einer jungen und gepflegten Wohnhausanlage. Genießen Sie die sonnige und ruhige XL-Loggia mit herrlichem Ausblick auf die Karawanken und den Blick ins Grüne. Die Wohnung bietet viel Platz und ist wie folgt aufgeteilt, großer Vorraum/Diele (10,89m²), großes Wohn-/Esszimmer mit offener Küche (30,42m²) mit Ausgang zur SüdLoggia (15,14m²), Elternschlafzimmer (15,56m², Kinderzimmer (14,29m²), großes Bad mit Badewanne, Dusche (5,08m²), WC extra (1,45m²) und Abstellraum (1,00m²). Weiters gehört zur Wohnung ein Kellerabteil TOP 24 mit ca. 8,60m². Alle Flächenangaben lt. Plan und Nutzwertgutachten und ohne Gewähr!

Stellplätze: Tiefgaragenplatz TOP 48 (16,50m²) - optional zu kaufen € 24.000,-

Zimmer: 3

Böden: schöne Parkett- und Fliesenböden

Fenster: Kunststofffenster

Heizung: Heizung und Warmwasser mittels Fernwärme

Bad: Bad mit Badewanne und Dusche ausgestattet

Möblierung: Küche mit Geräten

Zustand: Sehr Gut

Beziehbar: SOFORT!

Betriebskosten dzt. ca.:

* € 283,15 für Whg. TOP 24 inkl. Heizung, Warmwasser, Lift und Rücklage (Günstige BK)
* € 15,40 für TG TOP 48 inkl. Rücklage

Kaufpreis: € 298.000,- für Whg. TOP 24 € 24.000,- für TG TOP 48
 

Vermittlungshonorar: 3,0% vom Kaufpreis zzgl. 20% USt.
 

Besichtigungstermine: Besichtigungen können jederzeit nach telefonischer Vereinbarung getroffen werden! Wir bitten Sie um keine Direktkontakte oder ähnliches!

Kaufnebenkosten:
3,5% Grunderwerbssteuer
1,1% Grundbucheintragungsgebühr (Eigentumsrecht)
3,0% zzgl. 20% USt. Maklerhonorar
2,0% Kaufvertragskosten laut Notartarif zzgl. 20% USt.
0,1% Barauslagen für Beglaubigungen
1,2% Eintragung des Darlehens ins Grundbuch

Ansprechpartner:

Manfred NEUHAUSER
T: +43 (0) 664.400 77 70
Wir freuen uns auf Ihren Anruf!
-----------------

weitere Angebote unter:

www.neuhauser-immobilien.at [http://www.neuhauser-immobilien.at]
NEUHAUSER IMMOBILIEN KLAGENFURT
-----------------

SIE WOLLEN...
Ihre Immobilie verkaufen oder bewerten lassen, dann sind Sie bei uns um HÄUSER besser dran! Einfach anrufen!

WIDERRUFSRECHT/RÜCKTRITTSRECHT BEI FERN- UND AUSWÄRTSGESCHÄFTEN:
Der Interessent/in wünscht mit der Kontaktaufnahme ein vorzeitiges Tätigwerden des Immobilienbüros NEUHAUSER IMMOBILIEN, Siebenhügelstrasse 107, 9020 Klagenfurt am Wörthersee innerhalb der offenen Rücktrittsfrist und nimmt zur Kenntnis, dass er damit bei vollständiger Vertragserfüllung (Namhaftmachung) das Rücktrittsrecht vom Maklervertrag gem. § 11  FAGG verliert. Eine Pflicht zur Zahlung der Provision besteht aber erst nach Zustandekommen des vermittelten Geschäfts (Kaufvertrag, Mietvertrag) aufgrund der verdienstlichen, kausalen Tätigkeit des Maklers.

ALLGEMEINER HINWEIS:
Die Firma NEUHAUSER IMMOBILIEN, Siebenhügelstrasse 107, 9020 Klagenfurt am Wörthersee ist beauftragt, die oben genannte Immobilie zu vermitteln. Alle Angaben, speziell wie, Flächen, Baujahr, Zustand, Beschaffenheit und Ertrag, etc. sind ohne Gewähr und basieren ausschließlich auf Informationen, die uns von unserem Auftraggeber übermittelt wurden. Wir übernehmen keine Gewähr für die Vollständigkeit, Richtigkeit und Aktualität dieser Angaben. Änderungen, Irrtümer und Zwischenverkauf bleiben vorbehalten. Die Weitergabe und Vervielfältigung dieses Exposees an Dritte ohne unsere Zustimmung löst gegebenenfalls Vermittlungshonorar- bzw. Schadensersatzansprüche aus. Im Übrigen gelten unsere Allgemeinen Geschäftsbedingungen (AGB) lt. Exposé der Firma NEUHAUSER IMMOBILIEN.

Der Vermittler ist als Doppelmakler tätig.

Infrastruktur / Entfernungen

Gesundheit
Arzt <500m
Apotheke <500m
Krankenhaus <3.500m
Klinik <3.500m

Kinder & Schulen
Schule <1.000m
Kindergarten <500m
Universität <2.500m
Höhere Schule <4.000m

Nahversorgung
Supermarkt <500m
Bäckerei <500m
Einkaufszentrum <4.500m

Sonstige
Bank <500m
Geldautomat <500m
Post <500m
Polizei <500m

Verkehr
Bus <500m
Autobahnanschluss <3.500m
Bahnhof <2.000m
Flughafen <7.500m

Angaben Entfernung Luftlinie / Quelle: OpenStreetMap
Beschreibung weiterlesen

Lage und Verkehrsanbindung

Nähe Eurospar Viktring

Eurospar

Energieeffizienz

HWB:
37 kWh/(m²*a)
HWB Klasse:
B
fGEE:
0,77
fGEE Klasse:
A
Energieausweisart:
Energiebedarfs-ausweis
Gültig bis:
09.03.2033

Dokumente

Grundrisse

Lageplan

9073 Klagenfurt-Viktring | Klagenfurt Land

Lade...
Manfred NEUHAUSER

Manfred NEUHAUSER
Geschäftsinhaber

NEUHAUSER IMMOBILIEN

Lade...

Fotomix

Schöne, sonnendurchflutete, ruhige und junge 94,00m² 3 Zi Wohnung in Viktring - Rekabachweg Schöne, sonnendurchflutete, ruhige und junge 94,00m² 3 Zi Wohnung in Viktring - Rekabachweg Schöne, sonnendurchflutete, ruhige und junge 94,00m² 3 Zi Wohnung in Viktring - Rekabachweg Schöne, sonnendurchflutete, ruhige und junge 94,00m² 3 Zi Wohnung in Viktring - Rekabachweg Schöne, sonnendurchflutete, ruhige und junge 94,00m² 3 Zi Wohnung in Viktring - Rekabachweg Schöne, sonnendurchflutete, ruhige und junge 94,00m² 3 Zi Wohnung in Viktring - Rekabachweg Schöne, sonnendurchflutete, ruhige und junge 94,00m² 3 Zi Wohnung in Viktring - Rekabachweg Schöne, sonnendurchflutete, ruhige und junge 94,00m² 3 Zi Wohnung in Viktring - Rekabachweg Schöne, sonnendurchflutete, ruhige und junge 94,00m² 3 Zi Wohnung in Viktring - Rekabachweg Schöne, sonnendurchflutete, ruhige und junge 94,00m² 3 Zi Wohnung in Viktring - Rekabachweg Schöne, sonnendurchflutete, ruhige und junge 94,00m² 3 Zi Wohnung in Viktring - Rekabachweg Schöne, sonnendurchflutete, ruhige und junge 94,00m² 3 Zi Wohnung in Viktring - Rekabachweg Schöne, sonnendurchflutete, ruhige und junge 94,00m² 3 Zi Wohnung in Viktring - Rekabachweg Schöne, sonnendurchflutete, ruhige und junge 94,00m² 3 Zi Wohnung in Viktring - Rekabachweg Schöne, sonnendurchflutete, ruhige und junge 94,00m² 3 Zi Wohnung in Viktring - Rekabachweg Schöne, sonnendurchflutete, ruhige und junge 94,00m² 3 Zi Wohnung in Viktring - Rekabachweg Schöne, sonnendurchflutete, ruhige und junge 94,00m² 3 Zi Wohnung in Viktring - Rekabachweg Schöne, sonnendurchflutete, ruhige und junge 94,00m² 3 Zi Wohnung in Viktring - Rekabachweg Schöne, sonnendurchflutete, ruhige und junge 94,00m² 3 Zi Wohnung in Viktring - Rekabachweg Schöne, sonnendurchflutete, ruhige und junge 94,00m² 3 Zi Wohnung in Viktring - Rekabachweg Schöne, sonnendurchflutete, ruhige und junge 94,00m² 3 Zi Wohnung in Viktring - Rekabachweg Schöne, sonnendurchflutete, ruhige und junge 94,00m² 3 Zi Wohnung in Viktring - Rekabachweg Schöne, sonnendurchflutete, ruhige und junge 94,00m² 3 Zi Wohnung in Viktring - Rekabachweg Schöne, sonnendurchflutete, ruhige und junge 94,00m² 3 Zi Wohnung in Viktring - Rekabachweg Bild 25 Schöne, sonnendurchflutete, ruhige und junge 94,00m² 3 Zi Wohnung in Viktring - Rekabachweg