NEU - Schöner Wohnen nahe Wiens beliebtester Einkaufsmeile (Mietbeginn 01.06.2026)

Wohnung zur Miete in 1060 Wien - Gesamtmiete: 1.317,94 € / Objektnummer: 98796
Ausstattung: Barrierefrei Boden Fahrstuhl Wohnküche / offene Küche Bad Garage Parkplatz Zentralheizung

Preisinformationen

Gesamtmiete:
1.317,94 € / Monat
Betriebskosten netto:
156,56 € / Monat
Umsatzsteuer:
119,82 €
Kaution:
3 Bruttomonatsmieten
Provision:
Gemäß Erstauftraggeberprinzip bezahlt der Abgeber die Provision.

Fakten

Objektnummer:
98796
Objekttyp:
Wohnung
Nutzfläche:
60,15 m²
Zimmer:
2
Badezimmer:
1
Toilette:
1
Stockwerk:
2
Neubau:
Ja
Verfügbarkeit:
Verfügbar
Verfügbar ab:
01.06.2026

Beschreibung

Wohnen nahe dem größten innerstädtischen Markt dem 'Naschmarkt'!
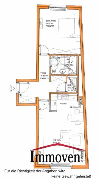
Die 2-Zimmerwohnung befindet sich im 2. Obergeschoss (Liftvorhanden) und bietet eine Nutzfläche von ca. 60 m².

Raumaufteilung:
- Wohnküche
-1  Zimmer 
- Bad mit Wanne
- Toilette mit Handwaschbecken
- Vorraum

Die Wohnung befindet sich in einer ausgesprochen guten Wohngegend, zudem ist das Schlafzimmer in den absolut ruhigen Innenhof ausgerichtet. Eine Siemens-Markenküche ist bereits im Wohnraum integriert und mit allen Elektro-Geräten ausgestattet. Elektrische Rollläden, wunderschöner Echtholz-Parkett, moderner Sanitärbereich, sowie eine Video-Gegensprechanlage und Sicherheitstüre lassen keine Wünsche mehr offen.

Wichtiger Hinweis:
Zur monatliche Gesamtmiete werden noch die Akontozahlung für Warmwasser in der Höhe von € 30,61 (inkl. USt.) und Heizung in der Höhe von € 37,80 (inkl. USt.) eingehoben.
Wir möchten darauf hinweisen, dass es sich bei den Bildern, um Symbolfotos einer ähnlichen Wohnung im selben Haus handelt.

Top- Wohngegend
Eine Top-Wohngegend nahe der Mariahilfer Straße und dem Naschmarkt - alles was das Herz begehrt bzw. für den täglichen Bedarf gebraucht wird, liegt nur wenige Minuten von der Wohnung entfernt. Geschäfte wie zB Spar, Hofer, Apotheke, Bank & Co sind nahegelegen, ebenso wie das kulinarische Angebot an Gastrolokalen sowie die zahlreichen Lokale am Naschmarkt.

Schulen befinden sich ebenfalls in der Nachbarschaft (zB Volksschule Mariahilf und Corneliusgasse, Amerlinggymnasium), sowie auch das Haus des Meeres und das Apollokino für die Freizeitgestaltung.

Öffentliche Anbindungen:
- Autobusse: 13A, 14A, 57A
- U-Bahnen: U4 Station Pilgramgasse

_ _ _ _ _ _ _ _ _ _ _ _ _ _ _ 

Für weitere Informationen und Fragen stehe ich Ihnen gerne per Email oder Telefon zur Verfügung!

Mag. Christian Neissl
+43 (0)664 888 73 054
c.neissl@immovent.at

Die obigen Angaben über dieses Objekt erfolgen mit der Sorgfalt eines ordentlichen Immobilienmaklers und basieren auf den Angaben und Informationen des Eigentümers. Daher können wir keine Gewähr für die Richtigkeit der Angaben leisten.

Der Immobilienmakler erklärt, dass er – entgegen dem in der Immobilienwirtschaft üblichen Geschäftsgebrauch des Doppelmaklers – einseitig nur für den Vermieter tätig ist.

Infrastruktur / Entfernungen

Gesundheit
Arzt <250m
Apotheke <250m
Klinik <250m
Krankenhaus <500m

Kinder & Schulen
Schule <250m
Kindergarten <250m
Universität <1.000m
Höhere Schule <750m

Nahversorgung
Supermarkt <250m
Bäckerei <250m
Einkaufszentrum <750m

Sonstige
Geldautomat <250m
Bank <250m
Post <250m
Polizei <500m

Verkehr
Bus <250m
U-Bahn <250m
Straßenbahn <1.000m
Bahnhof <250m
Autobahnanschluss <4.000m

Angaben Entfernung Luftlinie / Quelle: OpenStreetMap
Beschreibung weiterlesen

Lage und Verkehrsanbindung

U-Bahnstation Pilgramgasse

Energieeffizienz

HWB:
37,5 kWh/(m²*a)
HWB Klasse:
B
fGEE:
0,96
fGEE Klasse:
B
Energieausweisart:
Energiebedarfs-ausweis
Gültig bis:
09.11.2030

Dokumente

Grundriss

Lageplan

1060 Wien | Wien 6., Mariahilf

Lade...
Christian Neissl

Christian Neissl
Makler

Immovent GmbH

Lade...

Fotomix

Bild 1 Bild 2 Bild 3 Bild 4 Bild 5 Bild 6 Bild 7 Bild 8 Bild 9