NEU - Schönes 3-Raum-Büro mit Terrasse und Garten Nähe Linzer Straße (befristet vermietet)

Immobilie zum Kauf in 1150 Wien - Kaufpreis: 252.000 € / Objektnummer: 11346
Ausstattung: Boden Fahrstuhl Wohnküche / offene Küche Bad Zentralheizung Terrasse Garten

Preisinformationen

Kaufpreis:
252.000 €
Betriebskosten netto:
182,22 € / Monat
Preisinfos:
Die Rücklage ist ein Vorschauwert. DIe genaue Berechnung erfolgt von der Hausverwaltung.
Vermittlungsprovision:
Ja
Provision:
9.072,00 € inkl. 20% USt.

Fakten

Objektnummer:
11346
Terrasse:
1
Keller Fläche:
1,5 m²
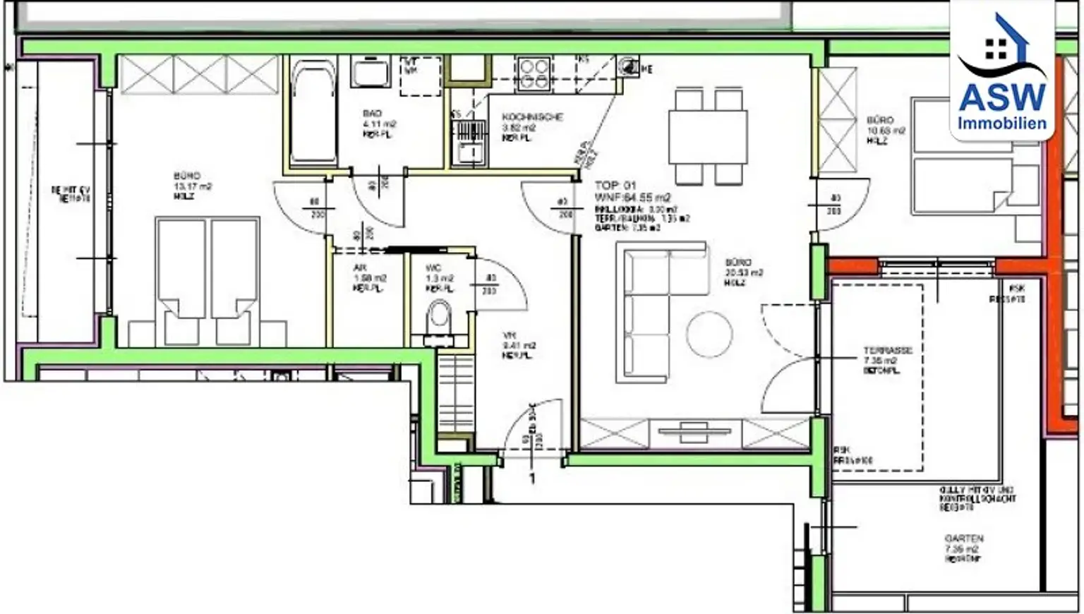
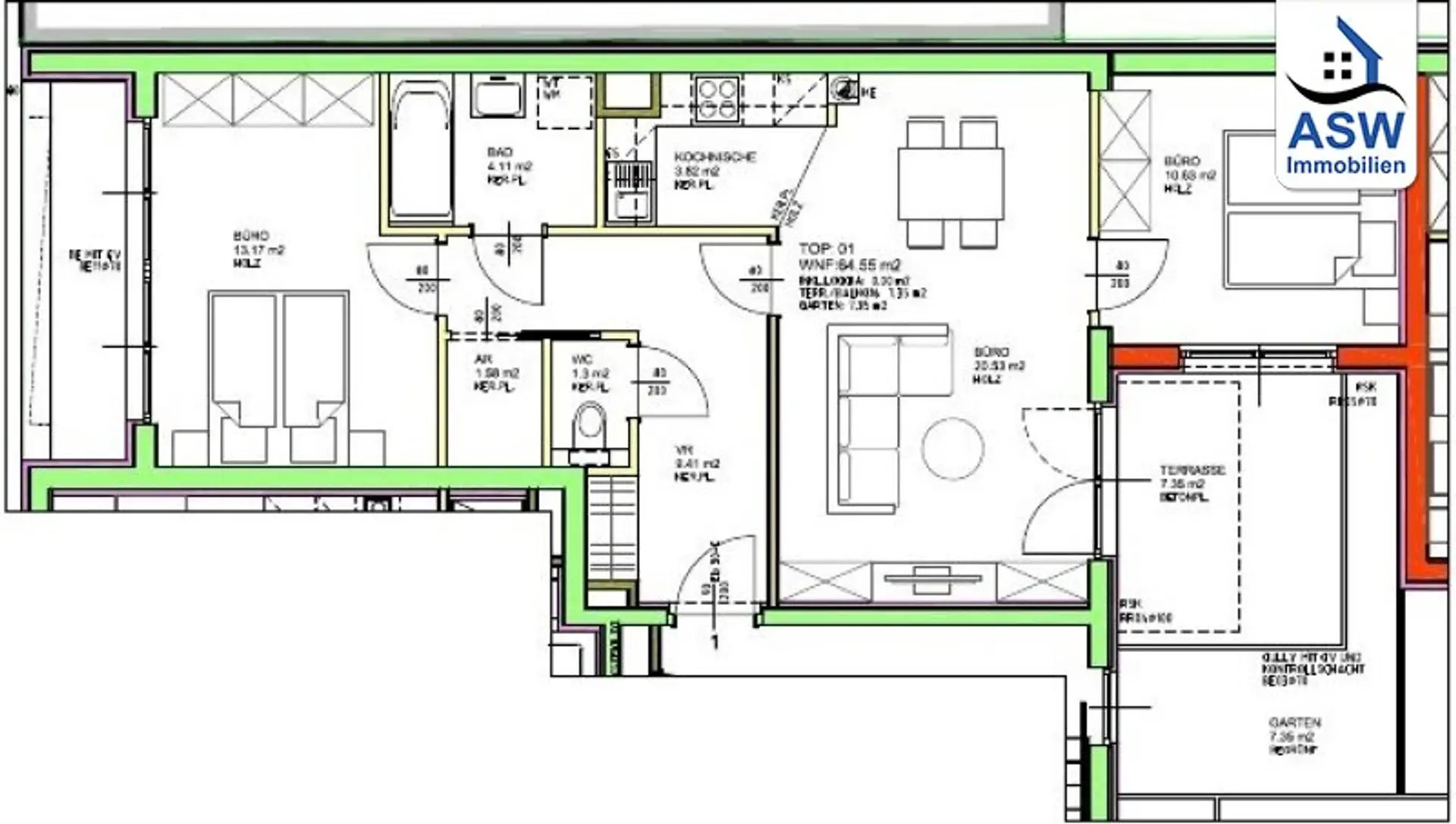
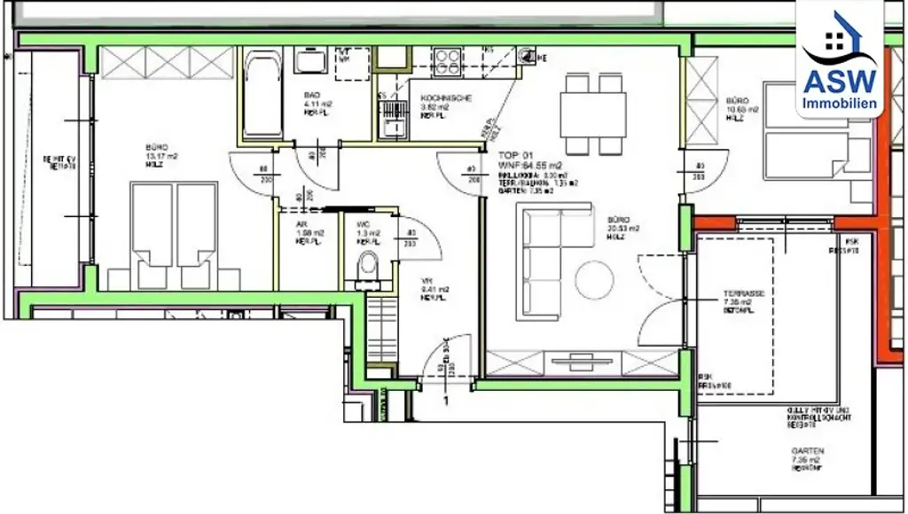
Bürofläche:
64,55 m²
Gartenfläche:
7,35 m²
Zimmer:
3
Badezimmer:
1
Toilette:
1
Baujahr:
2011
Neubau:
Ja
Zustand:
Neuwertig
Verfügbarkeit:
Verfügbar

Beschreibung

Die im Jahr 2011 fertiggestellte Liegenschaft besteht aus 15 Wohnungen und 7 Büros. Aufgeteilt ist das Objekt in den Straßentrakt und den Gartentrakt mit 4 Wohnungen. 

Das Objekt erstreckt sich vom Keller über das Erdgeschoß, 5 Regelgeschosse und 1 Dachgeschoss. Im Keller befinden sich die Tiefgarage mit 19 Stellplätzen (ebene Stellplätze/ Stapelparkplätze) und die Parteienkeller (PK). Ein Personenlift verbindet alle Stockwerke miteinander. Die Wohnungen sind mit Parkettböden und verfliesten Nassräumen ausgestattet. Eine möblierte Küche mit E-Geräten komplettiert das Angebot. Ansonsten verfügen die Wohnungen überwiegend über Loggien, Balkon- oder Terrassen. Im Gartentrakt gibt es außerdem Gartenflächen.

Diese perfekt aufgeteilte Büro in einem im Jahr 2011 erbauten, Wohnhaus steht zum Verkauf.
Das Büro ist bis 31.07.2027 zu einem Nettomietzins von € 648,36 befristet vermietet.

- großzügiger Büroraum mit Kochnische (Küche inkl. E-Geräten)
- 2 Büros
- Vorraum/Eingangsbereich mit Abstellraum
- Badezimmer mit Badewanne, Waschmaschinenanschluss, getrennte Toilette
- Terrasse und kleiner Garten

Ein Stellplatz in der hauseigenen Tiefgarage ist verpflichtend anzukaufen.
Es handelt sich um Stapelparkplätze und ebene Parkplätze (Kaufpreis ab € 17.000,–)

Lassen auch Sie sich von dieser Neubauwohnung überzeugen und vereinbaren Sie einen unverbindlichen Beratungs- und Besichtigungstermin per E-Mail unter office@aswimmo.at
Wir möchten höflich darauf hinweisen, dass im Falle eines Kaufs eine ortsübliche Maklerprovision zu bezahlen ist.

 

Wir weisen darauf hin, dass zwischen dem Vermittler und dem zu vermittelnden Dritten ein familiäres oder wirtschaftliches Naheverhältnis besteht.

Der Vermittler ist als Doppelmakler tätig.

Infrastruktur / Entfernungen

Gesundheit
Arzt <500m
Apotheke <500m
Klinik <1.000m
Krankenhaus <1.750m

Kinder & Schulen
Schule <250m
Kindergarten <250m
Universität <750m
Höhere Schule <1.750m

Nahversorgung
Supermarkt <250m
Bäckerei <250m
Einkaufszentrum <750m

Sonstige
Geldautomat <500m
Bank <750m
Post <750m
Polizei <750m

Verkehr
Bus <250m
U-Bahn <500m
Straßenbahn <250m
Bahnhof <500m
Autobahnanschluss <4.250m

Angaben Entfernung Luftlinie / Quelle: OpenStreetMap
Beschreibung weiterlesen

Lage und Verkehrsanbindung

Die Liegenschaft befindet sich im 15. Wiener Gemeindebezirk, nördlich vom Schlosspark Schönbrunn und westlich des Wiener Westbahnhofes.
Geschäfte des täglichen Bedarfes, Ärzte, Restaurants sowie Schulen und Kindergärten sind fußläufig in wenigen Minuten erreichbar.
Durch die unmittelbare Nähe zum Bahnhof Penzing und der Straßenbahnhaltestelle Reinlgasse bietet das Objekt eine perfekte Anbindung an das öffentliche Verkehrsnetz. 
Der Reinlpark sowie weitere Grünanlagen befinden sich unweit vom Objekt.
Auch ist man schnell beim Schlosspark Schönbrunn, eines der berühmtesten Wahrzeichen Wiens.

Bahnhof Penzing, Linzer Straße, Johnstraße, Reinlpark, Straßenbahn 10/52

Energieeffizienz

HWB:
74 kWh/(m²*a)
HWB Klasse:
C
fGEE:
0,82
fGEE Klasse:
A
Energieausweisart:
Energiebedarfs-ausweis
Gültig bis:
14.03.2032

Grundriss

Lageplan

1150 Wien | Wien 15., Rudolfsheim-Fünfhaus

Lade...
Alexander Sigon

Alexander Sigon
Prokurist

ASW Immobilien Service & Consulting GmbH

Lade...

Fotomix

Bild 1 Bild 2 Bild 3 Bild 4 Bild 5 Bild 6 Bild 7 Bild 8 Bild 9 Bild 10 Bild 11 Bild 12 Bild 13