NEU - Schubertring/Kärtnerstraße: Altbaubüro in Traumlage - 5.OG - gesamte Etage!!

Büro zur Miete in 1010 Wien - Gesamtmiete: 20.948,11 € / Objektnummer: 8233
Ausstattung: Fahrstuhl Teeküche Klimaanlage Zentralheizung
Plan5
IMMY Preisträger
Fotos-auf-Anfrage

Preisinformationen

Gesamtmiete:
20.948,11 € / Monat
Gesamtmiete (exkl. USt.):
17.456,76 € / Monat
Betriebskosten netto:
2.258,94 € / Monat
Umsatzsteuer:
3.491,35 €
Provision:
68688.58

Fakten

Objektnummer:
8233
Objekttyp:
Büro
Nutzfläche:
700 m²
Bürofläche:
700 m²
Zimmer:
17
Altbau:
Ja
Zustand:
Gepflegt
Verfügbarkeit:
Verfügbar

Beschreibung

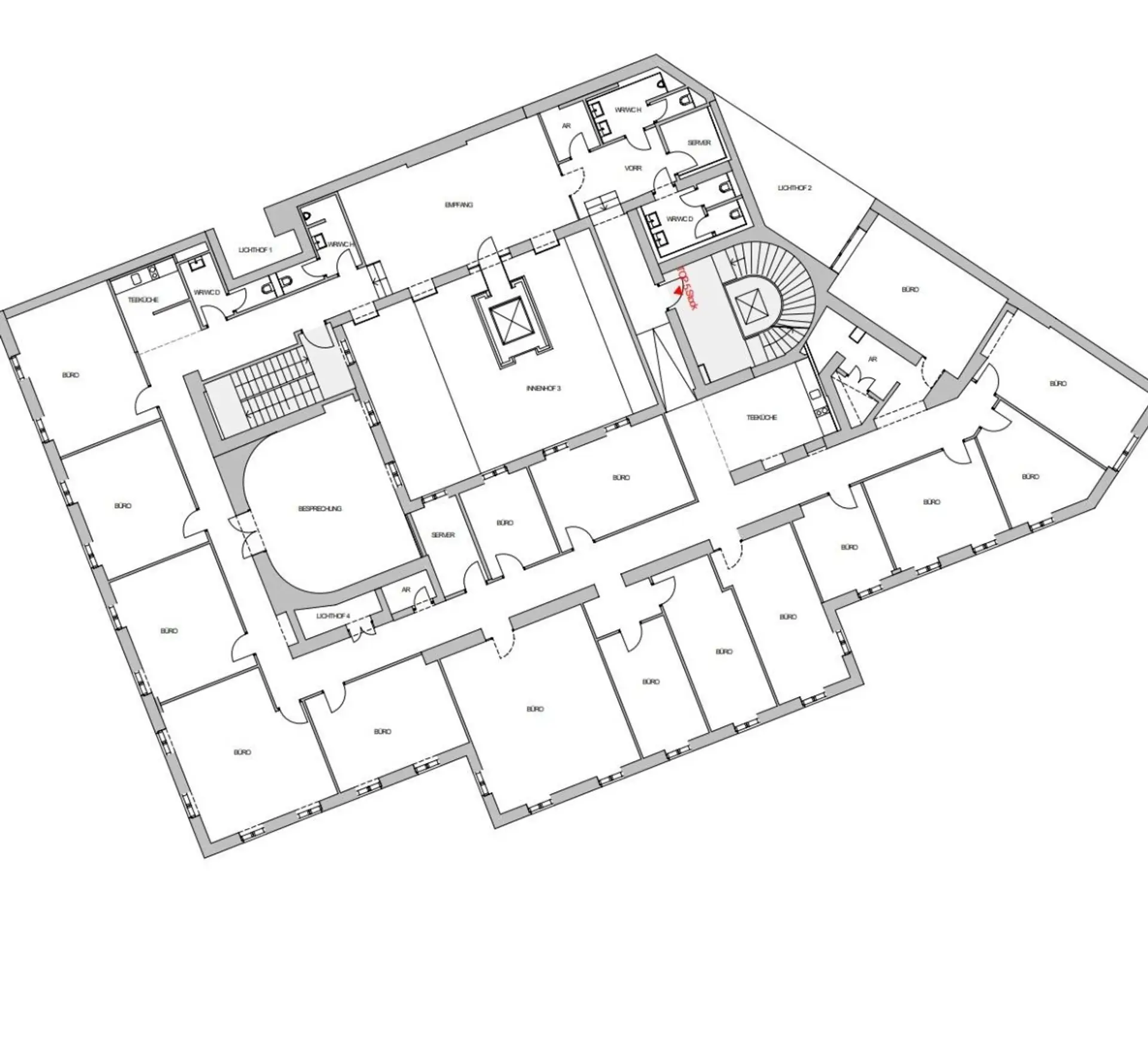
Zur Vermietung gelangt dieses wunderschöne Altbaubüro direkt am Schubertring/ Kärtner Ring im 1. Bezirk.

Es umfasst 16 Büroeinheiten samt Empfang mehreren Abstell- und Archivräumen.

Ein großer Besprechungsraum, 2 Teeküchen und ausreichend Toilettenanlagen für Damen und Herren zählen ebenfalls zur Ausstattung.

Beheizt werden die Räumlichkeiten mit Fernwärme. Eine Kühlung ist ebenfalls vorhanden.

INFRASTRUKTUR + HIGHLIGHTS AUF EINEN BLICK
• repräsentativer Altbau
• Top-Firmenandresse
• Kühlung (Fancoils)
• Zentralheizung mit Fernwärme
• öffenbare Fenster
• Damen und Herren Toilette
• Teeküche
• DV Verkabelung
• sehr gute Raumaufteilung
• große Auswahl an Gastronomie-Einrichtungen
• ausgezeichnete Nahversorgung (Bank, Apotheke, Postamt, uvm.)
• sehr gute, öffentliche Verkehrsanbindung (U1, U2, U4 Karlsplatz, Straßenbahn, Bus)



Ich freue mich über Ihre Kontaktaufnahme und garantiere stets eine schnelle Antwort!

Robert Fried
Tel.: 0664 88 296 010
robert.fried@hubner-immobilien.com


__
Angaben gemäß gesetzlichem Erfordernis:
Miete 15197,82 zzgl 20% USt.
Betriebskosten 2258,94 zzgl 20% USt.
Umsatzsteuer 3491,35
---------------------------------
Gesamtbetrag 20948,11
---------------------------------
Heizwärmebedarf: 96.3 kWh/(m²a)
Klasse Heizwärmebedarf: C
Faktor Gesamtenergieeffizienz: 1.39
Klasse Faktor Gesamtenergieeffizienz: C
Beschreibung weiterlesen

Energieeffizienz

HWB:
96,3 kWh/(m²*a)
HWB Klasse:
C
fGEE:
1,39
fGEE Klasse:
C
Energieausweisart:
Energiebedarfs-ausweis
Robert Fried

Robert Fried

Hubner Immobilien GmbH

Lade...

Fotomix

Plan5 IMMY Preisträger Fotos-auf-Anfrage