NEU - Seestadt Aspern - Perfekt aufgeteilte 2-Zimmer Wohnung nahe U2!

Wohnung zur Miete in 1220 Wien - Gesamtmiete: 975,00 € / Objektnummer: 36225
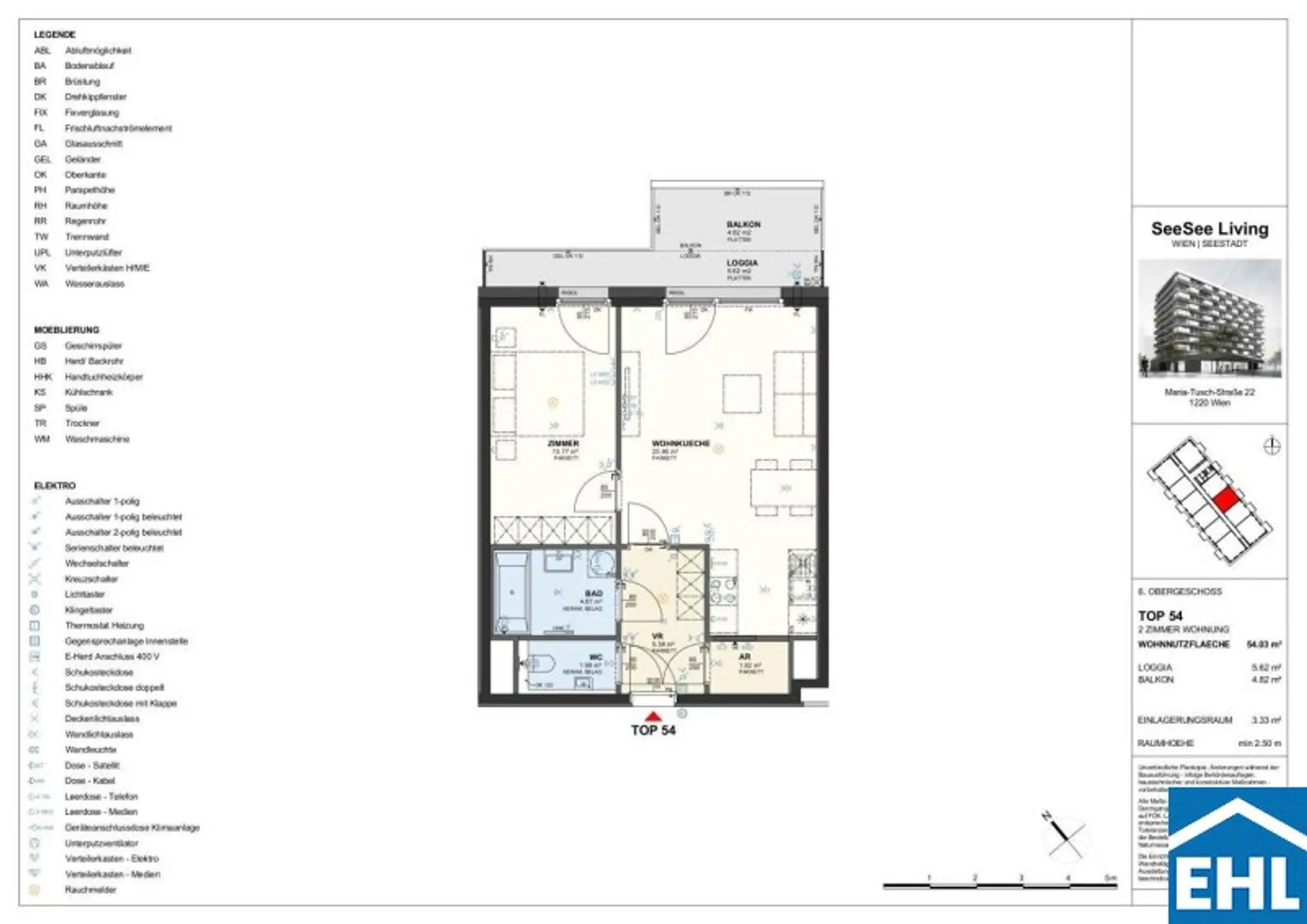
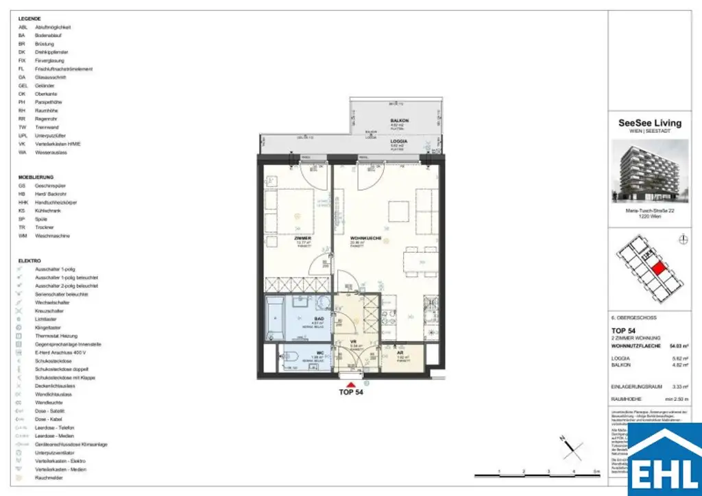
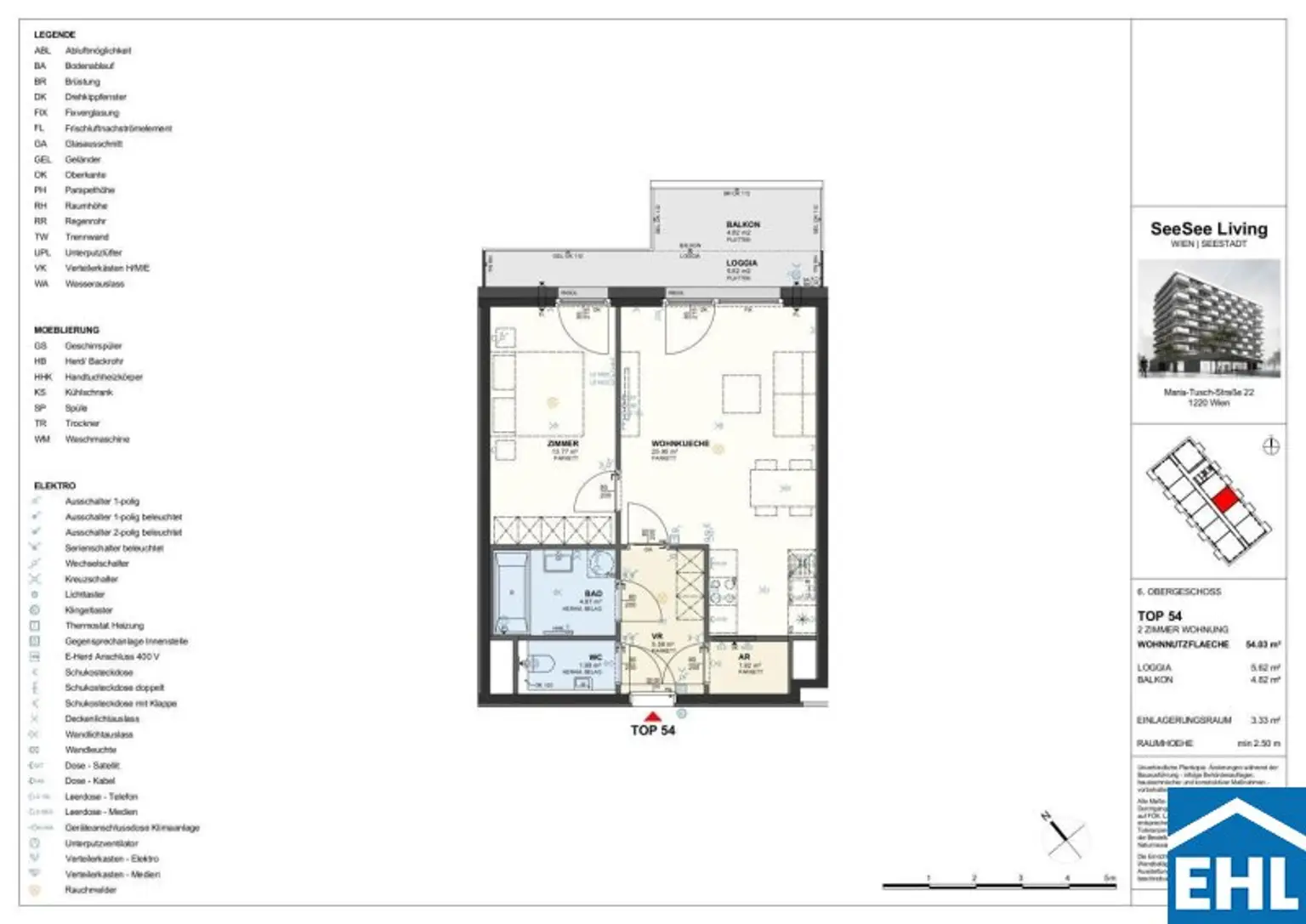
Ausstattung: Boden Fahrstuhl Wohnküche / offene Küche Bad Abstellraum Fußbodenheizung Balkon Loggia
Wohnraum
Schlafzimmer
Musterküche
Badezimmer
Musterbalkon

Preisinformationen

Gesamtmiete:
975,00 € / Monat
Betriebskosten netto:
129,80 € / Monat
Umsatzsteuer:
88,64 €
Kaution:
2.925,00 €
Provision:
Gemäß Erstauftraggeberprinzip bezahlt der Abgeber die Provision.

Fakten

Objektnummer:
36225
Objekttyp:
Wohnung
Balkon:
1
Loggia:
1
Balkonfläche:
4,82 m²
Keller Fläche:
3,33 m²
Wohnfläche:
54,03 m²
Loggia Fläche:
5,62 m²
Nutzfläche:
59,68 m²
Zimmer:
2
Badezimmer:
1
Toilette:
1
Stockwerk:
6
Baujahr:
2016
Neubau:
Ja
Zustand:
Gepflegt
Verfügbarkeit:
Verfügbar

Beschreibung

Seestadt Aspern -  2 Zimmerwohnung mit Freifläche

Alle Wohneinheiten sind so ausgerichtet, dass Sie jeden Tag mit einem Blick ins Grüne oder Richtung Seepark beginnen – so lässt sich das Leben genießen. Mit dem See fast vor der Haustüre, der nahegelegenen Alten Donau oder der Lobau ist Erholung garantiert. Zahlreiche Freizeit- und Erholungsmöglichkeiten, einen Bildungscampus und einen Kindergarten in unmittelbarer Nähe sowie eine gute Verkehrsanbindung sorgt zusätzlich für ein erstklassiges Wohngefühl.

Die Wohnung im 6. Obergeschoss verfügt über eine großzügige Wohnküche, einem getrennt begehbaren Schlafzimmer mit direktem Zugang auf den Balkon, ein Badezimmer mit Wanne und Waschmaschinenanschluss, ein separates WC, einen Abstellraum, sowie einen Vorraum. Der nette Balkon mit Loggia bietet Ihnen erholsame Stunden an der frischen Luft. 

Ausstattung

* moderne, voll ausgestattete Küche 
* Bad mit Wanne und Waschmaschinenanschluss
* Fußbodenheizung
* Parkett in den Wohnräumen, edles Feinsteinzeug in den Sanitärräumen

Optional kann ein Autoabstellplatz für € 110,- brutto im Monat angemietet werden
 

Öffentliche Verkehrsanbindung:

* U2 Station „Seestadt“
* Buslinien 84A und 88B, 

Warmwasser, Heizung und Strom werden nach Verbrauch abgerechnet.

Befristung: 5 Jahre, 1 Jahr Kündigungsverzicht, 3 Monate Kündigungsfrist

Nebenkosten
3 BMM Kaution, Vertragserrichtungskosten

Wir weisen darauf hin, dass zwischen dem Vermittler und dem zu vermittelnden Dritten ein familiäres oder wirtschaftliches Naheverhältnis besteht.

Der Immobilienmakler erklärt, dass er – entgegen dem in der Immobilienwirtschaft üblichen Geschäftsgebrauch des Doppelmaklers – einseitig nur für den Vermieter tätig ist.

Infrastruktur / Entfernungen

Gesundheit
Arzt <250m
Apotheke <250m
Klinik <250m
Krankenhaus <3.000m

Kinder & Schulen
Schule <500m
Kindergarten <250m
Universität <750m
Höhere Schule <750m

Nahversorgung
Supermarkt <250m
Bäckerei <250m
Einkaufszentrum <3.750m

Sonstige
Geldautomat <1.500m
Bank <250m
Post <250m
Polizei <250m

Verkehr
Bus <250m
U-Bahn <500m
Straßenbahn <1.000m
Bahnhof <500m
Autobahnanschluss <3.500m

Angaben Entfernung Luftlinie / Quelle: OpenStreetMap
Beschreibung weiterlesen

Lage und Verkehrsanbindung

U2 Seestadt, Seepark

Energieeffizienz

HWB:
16,14 kWh/(m²*a)
HWB Klasse:
A
fGEE:
0,76
fGEE Klasse:
A
Energieausweisart:
Energiebedarfs-ausweis
Gültig bis:
14.09.2026

Grundriss

Lageplan

1220 Wien | Wien 22., Donaustadt

Lade...
Andreas Minarik

Andreas Minarik
Immobilienberater

EHL Wohnen GmbH

Lade...

Fotomix

Wohnraum Schlafzimmer Musterküche Badezimmer Bild 5 Bild 6 Musterbalkon Bild 8