NEU - Sehr große Wohnung im Zentrum von Bozen zu verkaufen

Wohnung zum Kauf in 39100 Bozen - Kaufpreis: 950.000 € / Objektnummer: 1777
DSC04318
DSC04319
DSC04310
DSC04322
DSC04332
DSC04342
DSC04344
DSC04345
DSC04351
DSC04355
DSC04359
DSC04363
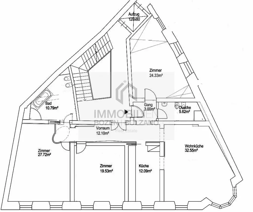
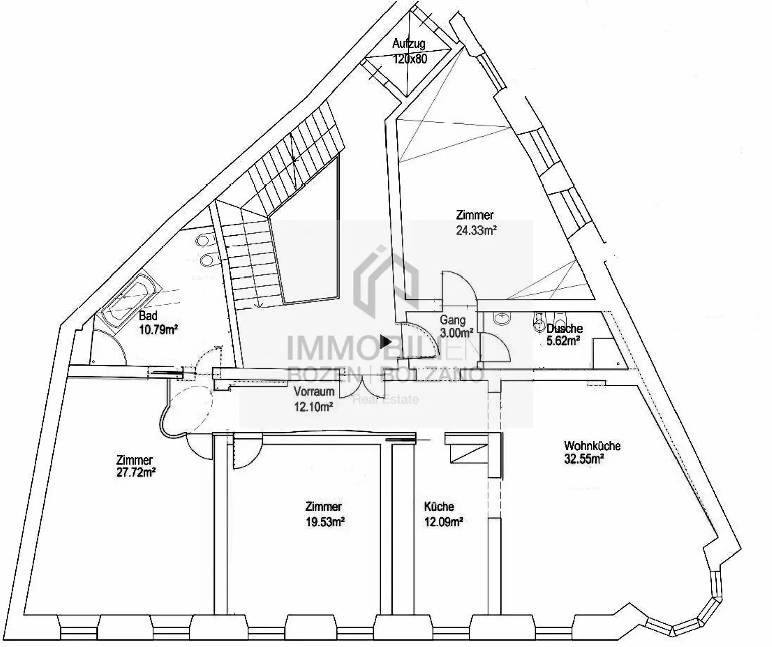
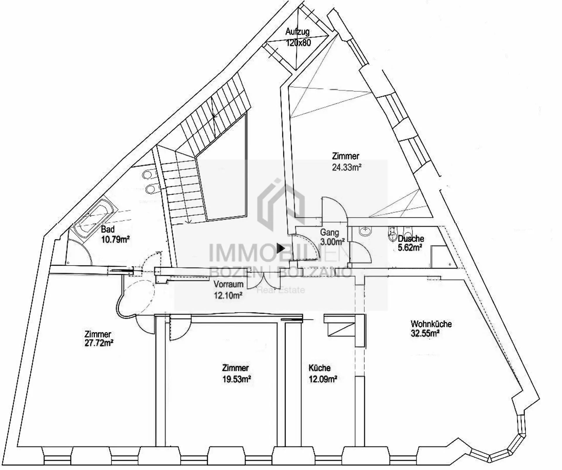
GR neu

Preisinformationen

Kaufpreis:
950.000 €

Fakten

Objektnummer:
1777
Objekttyp:
Wohnung
Wohnfläche:
150 m²
Zimmer:
5
Schlafzimmer:
3
Badezimmer:
2
Stockwerk:
2
Verfügbarkeit:
Verfügbar

Beschreibung

Schöne 5-Zimmerwohnung im Zentrum von Bozen zu verkaufen. Die Immobilie befindet sich im 2. Stock eines Gebäudes mit der Energieklasse „E“ und hat eine Fläche von ca. 196 m². Sie ist nach Nord-Süd-West ausgerichtet und ist wie folgt unterteilt: Eingangsbereich mit Flur, Wohnzimmer, Küche, 3 Schlafzimmer und 2 Badezimmer. Sie ist mit hochwertigen Einbaumöbeln ausgestattet und befindet sich unter Denkmalschutz. Die Deckenhöhe von ca. 3,20 Metern und der schmuckvolle Stuck verleihen der Wohnung einen Charm. Die angegebenen Informationen sind indikativ und können Abänderungen unterliegen.
Beschreibung weiterlesen

Lage und Verkehrsanbindung

Stadtzentrum / Centro Città

Energieeffizienz

Energieeffizienzklasse:
E
Gebäudeart:
Wohnen

Grundriss

Lageplan

39100 Bozen

Lade...
Heidi Scheiflinger

Heidi Scheiflinger

Immobilien Bozen GmbH

Lade...

Fotomix

DSC04318 DSC04319 DSC04310 DSC04322 DSC04332 DSC04342 DSC04344 DSC04345 DSC04351 DSC04355 DSC04359 DSC04363